名古屋市緑区砂田1丁目
名鉄名古屋本線 有松駅 バス16分 砂田一丁目 停歩4分 名古屋市営バス「砂田一丁目」停 徒歩4分
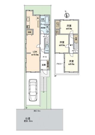
3LDK
建物面積:94.36㎡
土地面積:100㎡
1998年08月築
2,799万円



| 物件種別 | 中古戸建 |
| 所在地 | GoogleMaps |
| 交通 | |
| 間取り | 3LDK |
| 建物面積 | 87.07㎡(約26.33坪) |
| 土地面積 | 100.08㎡(約30.27坪) |
| 築年月 | 1992年07月築 |
-物件のおすすめポイント- ▼立地 ・第一種低層住居専用地域の閑静な住宅街 ・高台に位置するため日当たり、通風良好です ▼建物の特徴 ・令和8年3月リフォーム完成 3LDK ・ビルトインガレージ付(車庫面積17.01平米) ・広々としたLDK約18.0帖 ・2階全居室約6.0帖 ・キッチン、洗面室、浴室には換気に便利な窓付 ・玄関収納、階段下収納があり収納豊富です ▼リフォーム内容(令和8年3月) ・キッチン交換、給湯器交換 ・浴室交換 ・トイレ交換 ・洗面台交換 ・クロス、フローリング貼替 ・ハウスクリーニング等 ▼設備 ・食器洗乾燥機、浄水器 ・浴室乾燥機、オートバス ・温水洗浄便座 ・TVモニタ付インターホン ▼周辺環境 ・名古屋市立常安小学校まで徒歩6分(約410m) ・徒歩12分圏内にスーパー3箇所ございます ・ヒルズウォーク徳重ガーデンまで徒歩15分(約1150m) ■ ご希望の住まい探しをお手伝いします ━━━━━・・・ 物件の詳細・ご相談はお気軽にお問い合わせください。
| 所在地 | GoogleMaps |
| 価格 | 2,799万円 |
| 交通 | |
| その他費用 | - |
| 間取り | 3LDK |
| 建物面積 | 87.07㎡(約26.33坪) |
| 土地面積 | 100.08㎡(約30.27坪) |
| 築年月 | 1992年07月築 |
| 建物構造 | 木造2階建 |
| 現況 | 空家 |
| 駐車場 | 有 |
| 土地権利 | 所有権 |
| 地目 | 宅地 |
| 接道状況 | 南西側: 約 6m (公道) |
| 建ぺい率 | 50% |
| 容積率 | 150% |
| 用途地域 | 第一種低層住居専用地域 |
| 都市計画 | 市街化区域 |
| 備考 | ※小学校について 通学路の指定につきましては各学校、教育委員会へご確認ください。 ※本物件は、建築基準法に定める道路に接道していないため原則として建物の建築・増築・改築はできません。 建築基準法43条2項1号の認定を受けた場合には、建築物の建築・増築・改築が可能となります。 |
| 引渡時期 | 相談 |
| 取引態様 | 仲介 |
| 更新日 | 2026年05月14日 |
| 次回更新予定 | 2026年05月28日 |
| 物件番号 | FA5BBA05 |
最新のAI技術を活用した相談サービスです。
お客様一人ひとりのニーズに合わせて最適な情報をご提供します。
リハウスAIチャットの詳しい説明はこちら
GoogleMaps
| スーパー | 旬楽膳滝ノ水店 約790m(徒歩10分) |
| スーパー | 西友鳴海店 約870m(徒歩11分) |
| スーパー | ヤマナカ滝ノ水店 約890m(徒歩12分) |
| 公園 | 鳴丘東公園 約580m(徒歩8分) |
| 病院 | 徳重おかもとクリニック 約610m(徒歩8分) |
| 小学校 | 常安小学校 約410m(徒歩6分) |
| 中学校 | 扇台中学校 約980m(徒歩13分) |
| その他利便施設1 | V・drug緑鳴丘店 約820m(徒歩11分) |
| その他利便施設2 | ファミリーマート緑徳重店 約1100m(徒歩14分) |
| その他利便施設3 | ヒルズウォーク徳重ガーデンズ 約1150m(徒歩15分) |
| その他利便施設4 | 西松屋名古屋滝ノ水店 約1000m(徒歩13分) |
0120-16-0031
0120-16-0031
物件の売却をご検討の方は、 はやめの査定依頼がおすすめです!
買い替えをご検討の方はこちら0120-16-0031

