船橋市小室町
北総鉄道 小室駅 徒歩13分
3LDK
建物面積:103.7㎡
土地面積:171.67㎡
築1年未満
5,980万円



| 物件種別 | 中古戸建 |
| 所在地 | GoogleMaps |
| 交通 | 東武野田線 馬込沢駅 徒歩14分 |
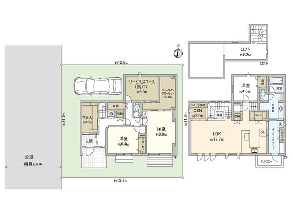
| 間取り | 3SLDK ※S・サービススペースは納戸です |
| 建物面積 | 138.07㎡(約41.76坪) |
| 土地面積 | 151.2㎡(約45.73坪) |
| 築年月 | 2021年07月築 |
返済計画を入力すると毎月のお支払い目安を表示できます
-物件のおすすめポイント- ▼立地 ・東武鉄道野田線 馬込沢駅 徒歩14分 ▼おすすめポイント ・三井ホーム(株)施工の築浅住宅 ・3SLDK+ロフト+DENのゆったりとした間取り ・収納充実(ウォークインクローゼット、パントリー等) ・調理しやすいコの字型のシステムキッチン ・洗い物の時間を短縮!食洗機ついています ・2×6工法 高断熱仕様 ・家じゅう温度差のない全館空調 ・太陽光発電システム、HEMS搭載の近代的住宅 ・認定長期優良住宅 ・クラウド蓄電池搭載で非常時も安心です。 ・駐車スペース1台分あり(車種制限あり) ■ ご希望の住まい探しをお手伝いします ━━━━━・・・ 物件の詳細・ご相談はお気軽にお問い合わせください。
| 所在地 | GoogleMaps |
| 価格 | 5,980万円 |
| 交通 | 東武野田線 馬込沢駅 徒歩14分 |
| その他費用 | - |
| 間取り | 3SLDK ※S・サービススペースは納戸です |
| 建物面積 | 138.07㎡(約41.76坪) |
| 土地面積 | 151.2㎡(約45.73坪) |
| 築年月 | 2021年07月築 |
| 建物構造 | 木造2階建 |
| 現況 | 居住中 |
| 駐車場 | - |
| 土地権利 | 所有権 |
| 地目 | 宅地 |
| 接道状況 | 西側: 約 6m (公道) |
| 建ぺい率 | 50% |
| 容積率 | 100% |
| 用途地域 | 第一種低層住居専用地域 |
| 都市計画 | 市街化区域 |
| 備考 | - |
| 引渡時期 | 相談 |
| 取引態様 | 仲介 |
| 更新日 | 2025年11月06日 |
| 次回更新予定 | 2025年11月20日 |
| 物件番号 | FL7ATA1F |
GoogleMaps
| スーパー | ヨークマート藤原店 約920m(徒歩12分) |
| スーパー | サミットストア 馬込沢駅前店 約1120m(徒歩14分) |
| 小学校 | 市立法典小学校 約630m(徒歩8分) |
| 中学校 | 市立旭中学校 約380m(徒歩5分) |
| その他利便施設1 | 東武野田線「馬込沢」駅 約1100m(徒歩14分) |
| その他利便施設2 | セブンイレブン船橋馬込沢店 約830m(徒歩11分) |
| その他利便施設3 | ウエルシア船橋藤原店 約600m(徒歩8分) |
| その他利便施設4 | マツモトキヨシ 馬込沢店 約1210m(徒歩16分) |
0120-612-231
0120-612-231
物件の売却をご検討の方は、 はやめの査定依頼がおすすめです!
買い替えをご検討の方はこちら0120-612-231
