蕨市北町4丁目
京浜東北・根岸線 蕨駅 徒歩18分
3SLDK
建物面積:91.12㎡
土地面積:81.81㎡
2026年06月築(予定)
3,980万円



| 物件種別 | 中古戸建 |
| 所在地 | GoogleMaps |
| 交通 | |
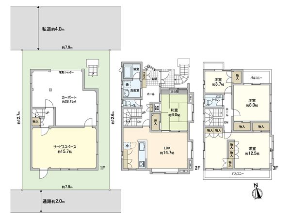
| 間取り | 4SLDK ※S・サービススペースは納戸です |
| 建物面積 | 172.66㎡(約52.22坪) |
| 土地面積 | 101.81㎡(約30.79坪) ※別途私道約15.63㎡有 |
| 築年月 | 1993年12月築 |
-物件のおすすめポイント- ▼立地 ・JR京浜東北・根岸線 蕨駅 徒歩17分 ▼建物の特徴 ・住友林業施工 鉄骨木造の3階建て ・カーポートに電動シャッター付 ・カースペース2台駐車可能(車種制限有) ・南側に通路があり陽当り・通風良好 ▼お部屋の特徴 ・LDKと隣接した和室(約6帖) ・ゆとりあるサービススペース 約15.7帖 ・3階洋室 約8帖と約12.5帖 ・バルコニー2か所 ・クローゼット等収納豊富 ▼周辺環境 ・セブンイレブンさいたま文蔵5丁目店・・・約90m ・マルエツ蕨北町店・・・・・・・・・・・・約470m ■ ご希望の住まい探しをお手伝いします ━━━━━・・・ 物件の詳細・ご相談はお気軽にお問い合わせください。
室内を内覧しているように物件を見学することができます。
| 所在地 | GoogleMaps |
| 価格 | 3,980万円 |
| 交通 | |
| その他費用 | - |
| 間取り | 4SLDK ※S・サービススペースは納戸です |
| 建物面積 | 172.66㎡(約52.22坪) |
| 土地面積 | 101.81㎡(約30.79坪) ※別途私道約15.63㎡有 |
| 築年月 | 1993年12月築 |
| 建物構造 | 鉄骨造3階建 |
| 現況 | 空家 |
| 駐車場 | 有 |
| 土地権利 | 所有権 |
| 地目 | 宅地 |
| 接道状況 | 北側: 約 4m (私道) |
| 建ぺい率 | 60% |
| 容積率 | 200% |
| 用途地域 | 第一種住居地域 |
| 都市計画 | 市街化区域 |
| 備考 | ※鉄骨木造 上記建物面積のうち1F車庫面積28.15㎡含む |
| 引渡時期 | 相談 |
| 取引態様 | 仲介 |
| 更新日 | 2026年05月21日 |
| 次回更新予定 | 2026年06月04日 |
| 物件番号 | FLEBDA04 |
最新のAI技術を活用した相談サービスです。
お客様一人ひとりのニーズに合わせて最適な情報をご提供します。
リハウスAIチャットの詳しい説明はこちら
GoogleMaps
| スーパー | マルエツ蕨北町店 約470m(徒歩6分) |
| スーパー | マミーマート芝園店 約780m(徒歩10分) |
| 公園 | 北町ふれあい公園 約140m(徒歩2分) |
| 病院 | 蕨市立病院 約750m(徒歩10分) |
| 小学校 | 北小学校 約840m(徒歩11分) |
| 中学校 | 第二中学校 約800m(徒歩10分) |
| その他利便施設1 | セブンイレブンさいたま文蔵5丁目店 約90m(徒歩2分) |
| その他利便施設2 | サンドラッグ蕨北町店 約340m(徒歩5分) |
| その他利便施設3 | ウエルシア蕨北町店 約360m(徒歩5分) |
| その他利便施設4 | デイリーヤマザキ蕨北店 約380m(徒歩5分) |
0120-959-531
0120-959-531
物件の売却をご検討の方は、 はやめの査定依頼がおすすめです!
買い替えをご検討の方はこちら0120-959-531

