世田谷区成城7丁目
小田急電鉄小田原線 成城学園前駅 徒歩14分
3LDK
建物面積:102.95㎡
土地面積:133.71㎡
新築
18,900万円



| 物件種別 | 中古戸建 |
| 所在地 | GoogleMaps |
| 交通 | 小田急電鉄小田原線 成城学園前駅 徒歩12分 |
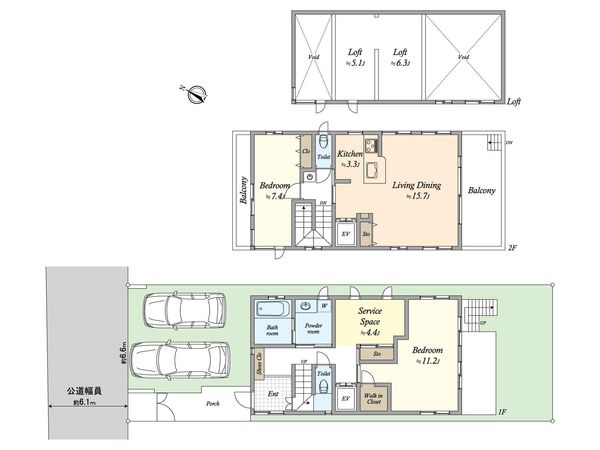
| 間取り | 2SLDK ※S・サービススペースは納戸です |
| 建物面積 | 108㎡(約32.67坪) |
| 土地面積 | 136.67㎡(約41.34坪) |
| 築年月 | 2009年03月築 |
■ アクセス ━━━━━━━━━━━━━━━・・・・・ ○ 小田急線「成城学園前」駅 徒歩12分 ■ おすすめポイント ━━━━━━━━━━━━━━━・・・・・ ○ 北西側約6.1m公道に約6.6m接道、開放感のある立地 ○ 鉄筋コンクリート造(RC造)2階建 ○ 2022年に内外装リフォーム実施済み(キッチン・クロス・外壁など多数) ○ 天井高のある大空間リビング&ダイニングで開放感があります ○ ホームエレベーター付き ○ 車2台駐車可能(車種制限あり) ○ 高松建設のRC住宅ブランド「JPホーム」設計・施工 ○ 全室ペアガラス採用で断熱・防音性向上 ■ リフォーム内容 ━━━━━━━━━━━━━━━・・・・・ ▼令和4年1月実施済 ・温水洗浄便座交換(1・2F) ・浴室水栓交換 ・照明交換 ・巾木交換 ・全室クロス貼替 ・ロフトフロアタイル張替 ・カーテンレール交換 ▼令和4年5月実施済 ・システムキッチン交換 ・玄関ドア交換 ・1階ウッドデッキ新設 ・門扉新設 ・外壁塗装 ・シーリング打替 ■ ライフインフォメーション ━━━━━━━━━━━━━━━・・・・・ ○ まいばすけっと成城通り店・・・約360m(徒歩5分) ○ 八百幸成城店・・・約600m(徒歩8分) ○ 成城コルティ・・・約980m(徒歩13分) ○ セブンイレブン世田谷成城8丁目店・・・約420m(徒歩6分) ○ ココカラファイン入間町店・・・約410m(徒歩6分) ○ 成城郵便局・・・約290m(徒歩4分) ○ 千歳小学校・・・約900m(徒歩12分) ○ 千歳中学校・・・約2,300m(徒歩29分)
| 所在地 | GoogleMaps |
| 価格 | 18,900万円 |
| 交通 | 小田急電鉄小田原線 成城学園前駅 徒歩12分 |
| その他費用 | - |
| 間取り | 2SLDK ※S・サービススペースは納戸です |
| 建物面積 | 108㎡(約32.67坪) |
| 土地面積 | 136.67㎡(約41.34坪) |
| 築年月 | 2009年03月築 |
| 建物構造 | 鉄筋コンクリート造2階建 |
| 現況 | 空家 |
| 駐車場 | 有 |
| 土地権利 | 所有権 |
| 地目 | 宅地 |
| 接道状況 | - |
| 建ぺい率 | 40% |
| 容積率 | 80% |
| 用途地域 | 第一種低層住居専用地域 |
| 都市計画 | 市街化区域 |
| 備考 | - |
| 引渡時期 | 相談 |
| 取引態様 | 仲介 |
| 更新日 | 2026年05月24日 |
| 次回更新予定 | 2026年06月07日 |
| 物件番号 | FQ7BGA1E |
最新のAI技術を活用した相談サービスです。
お客様一人ひとりのニーズに合わせて最適な情報をご提供します。
リハウスAIチャットの詳しい説明はこちら
GoogleMaps
| スーパー | まいばすけっと成城通り店 約360m(徒歩5分) |
| スーパー | 八百幸成城店 約600m(徒歩8分) |
| 小学校 | 世田谷区立千歳小学校 約900m(徒歩12分) |
| 中学校 | 世田谷区立千歳中学校 約2300m(徒歩29分) |
| その他利便施設1 | 成城学園前駅 約920m(徒歩12分) |
| その他利便施設2 | セブンイレブン世田谷成城8丁目店 約420m(徒歩6分) |
| その他利便施設3 | 成城郵便局 約290m(徒歩4分) |
| その他利便施設4 | 成城コルティ 約980m(徒歩13分) |
| その他利便施設5 | ココカラファイン入間町店 約410m(徒歩6分) |
三井不動産リアルティ株式会社
国土交通大臣(15)第777号
0120-81-3101
0120-81-3101
物件の売却をご検討の方は、 はやめの査定依頼がおすすめです!
買い替えをご検討の方はこちら0120-81-3101

