川口市鳩ヶ谷本町4丁目
埼玉高速鉄道 鳩ヶ谷駅 徒歩15分
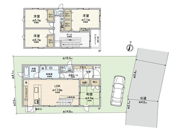
4LDK
建物面積:102.06㎡
土地面積:104.26㎡
2025年11月築(予定)
5,980万円



| 物件種別 | 中古戸建 |
| 所在地 | GoogleMaps |
| 交通 | 日暮里舎人ライナー 見沼代親水公園駅 徒歩10分 |
| 間取り | 4LDK |
| 建物面積 | 106.72㎡(約32.28坪) |
| 土地面積 | 116.62㎡(約35.27坪) |
| 築年月 | 2021年06月築 |
返済計画を入力すると毎月のお支払い目安を表示できます
-物件のおすすめポイント- ▼立地 ・日暮里舎人ライナー「見沼代親水公園」駅 徒歩10分 ・区画整理地内の綺麗な街並み ▼建物の特徴 ・令和3年6月築、高い断熱・気密性能がある一条工務店施工のアイスマート注文住宅 ・全館床暖房・床冷房につき一年中快適な室内環境 ・LDKは約17帖、リビング階段部分に吹抜を採用 ・センサー付タッチレス水栓付のキッチン ・1階洗面室の他、2階にも手洗い場を設置 ・浴室はゆとりある約1.25坪 ・2階洋室と和室は全室二面採光で収納豊富 ・カースペース1台分(車種による) ・太陽光パネル、蓄電池付 ・玄関・リビングに脱臭効果のあるナノイー発生機付 ・全館空調付 ・セルフクリーニング機能がある高性能な外壁タイル仕様 ▼設備 ・IHクッキングヒーター ・食器洗浄乾燥機 ・玄関収納 ・TVモニター付きインターホン ▼周辺環境 ・コモディイイダ・・・約340m(徒歩5分) ・セブンイレブン・・・約350m(徒歩5分) ■ ご希望の住まい探しをお手伝いします ━━━━━・・・ 物件の詳細・ご相談はお気軽にお問い合わせください。
| 所在地 | GoogleMaps |
| 価格 | 5,980万円 |
| 交通 | 日暮里舎人ライナー 見沼代親水公園駅 徒歩10分 |
| その他費用 | - |
| 間取り | 4LDK |
| 建物面積 | 106.72㎡(約32.28坪) |
| 土地面積 | 116.62㎡(約35.27坪) |
| 築年月 | 2021年06月築 |
| 建物構造 | 木造2階建 |
| 現況 | 居住中 |
| 駐車場 | 有 |
| 土地権利 | 所有権 |
| 地目 | 宅地 |
| 接道状況 | 東側: 約 4m (公道) |
| 建ぺい率 | 60% |
| 容積率 | 200% |
| 用途地域 | 準工業地域 |
| 都市計画 | 市街化区域 |
| 備考 | ・新郷東部第2土地区画整理事業地区内(仮換地) ・土地面積116.62平米は仮換地指定面積 ・清算金有(徴収) |
| 引渡時期 | 相談 |
| 取引態様 | 仲介 |
| 更新日 | 2025年10月26日 |
| 次回更新予定 | 2025年11月09日 |
| 物件番号 | FRPASA02 |
GoogleMaps
| スーパー | コモディイイダ 約340m(徒歩5分) |
| スーパー | オーケー 約610m(徒歩8分) |
| 公園 | 榛松第一公園 約620m(徒歩8分) |
| 病院 | はえまつ内科・外科クリニック 約440m(徒歩6分) |
| 小学校 | 東本郷小学校 約600m(徒歩8分) |
| 中学校 | 榛松中学校 約870m(徒歩11分) |
| その他利便施設1 | 川口榛松郵便局 約290m(徒歩4分) |
| その他利便施設2 | セブンイレブン 約350m(徒歩5分) |
| その他利便施設3 | スギドラッグ 約500m(徒歩7分) |
| その他利便施設4 | 島忠ホームズ 約610m(徒歩8分) |
0120-923-679
0120-923-679
物件の売却をご検討の方は、 はやめの査定依頼がおすすめです!
買い替えをご検討の方はこちら0120-923-679
