京田辺市同志社山手四丁目 中古一戸建
4LDK/116.75㎡(約35.31坪)
3,890万円



物件情報
おすすめポイント
周辺情報
取扱店舗
| 物件種別 | 中古戸建 |
| 所在地 | GoogleMaps |
| 交通 | |
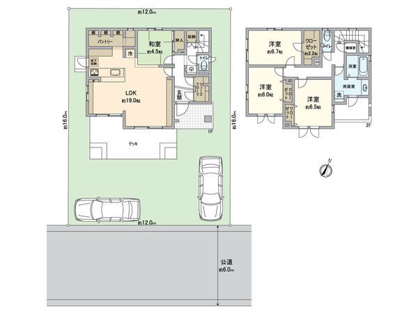
| 間取り | 4LDK |
| 建物面積 | 116.75㎡(約35.31坪) |
| 土地面積 | 192㎡(約58.08坪) |
| 築年月 | 2016年03月築 |
この物件情報を共有する
毎月のお支払い目安
返済計画を入力すると毎月のお支払い目安を表示できます
- ローン109,809円
- 管理費+修繕積立金0円
- その他費用0円
お支払い目安109,809円
おすすめポイント
設備
- 食器洗乾燥機
特徴
- 前面道路幅員6m以上
■おすすめポイント ━━━━━・・・ ○2路線2駅利用可 ・学研都市線「JR三山木」駅 徒歩22分 ・近鉄京都線「三山木」駅 徒歩23分 〇LDK部分広々約19帖 〇駐車スペース2台分有(車種による制限有) 〇対面キッチン 〇各居室収納あり 〇全館換気空調システム完備 〇三井ホーム施工のお家
物件情報
| 所在地 | GoogleMaps |
| 価格 | 3,890万円 |
| 交通 | |
| その他費用 | - |
| 間取り | 4LDK |
| 建物面積 | 116.75㎡(約35.31坪) |
| 土地面積 | 192㎡(約58.08坪) |
| 築年月 | 2016年03月築 |
| 建物構造 | 木造2階建 |
| 現況 | 居住中 |
| 駐車場 | 有 |
| 土地権利 | 所有権 |
| 地目 | 宅地 |
| 接道状況 | 南東側: 約 6m (公道) |
| 建ぺい率 | 50% |
| 容積率 | 80% |
| 用途地域 | 第一種低層住居専用地域 |
| 都市計画 | 市街化区域 |
| 備考 | - |
| 引渡時期 | 2026年03月下旬以降 |
| 取引態様 | 仲介 |
| 更新日 | 2025年10月31日 |
| 次回更新予定 | 2025年11月14日 |
| 物件番号 | FSXATA30 |
周辺情報
GoogleMaps
| スーパー | バロー京田辺店 約840m(徒歩11分) |
| 小学校 | 京田辺市立三山木小学校 約1900m(徒歩24分) |
| 中学校 | 京都市立田辺中学校 約2900m(徒歩37分) |
| その他利便施設1 | 学研都市線「JR三山木」駅 約1700m(徒歩22分) |
| その他利便施設2 | 近鉄京都線「三山木」駅 約1800m(徒歩23分) |
| その他利便施設3 | ドラッグストアコスモス同志社山手店 約740m(徒歩10分) |
| その他利便施設4 | セブンイレブン同志社山手店 約740m(徒歩10分) |
| その他利便施設5 | 京都信用金庫三山木支店 約1800m(徒歩23分) |
| その他利便施設6 | 田辺三山木郵便局 約1500m(徒歩19分) |
取扱店舗
三井のリハウス 京都伏見センター
- 営業時間
- 10:00~18:00
- 定休日
- 毎週火曜日・水曜日
- 住所
- 京都府京都市伏見区観音寺町210-1 プリシード桃山御陵ビル1F
三井不動産リアルティ株式会社
国土交通大臣(15)第777号
三井のリハウス 京都伏見センター
- 営業時間10:00~18:00
- 定休日毎週火曜日・水曜日
0120-983-941
京田辺市の物件情報
この物件を見学してみませんか?
この物件についてお問い合わせ
物件・住環境の詳しい情報、購入・ローン相談など、ささいなことでもお気軽にお問い合わせください。三井のリハウス 京都伏見センター
- 営業時間10:00~18:00
- 定休日毎週火曜日・水曜日
0120-983-941

物件の売却をご検討の方は、 はやめの査定依頼がおすすめです!
買い替えをご検討の方はこちら見学予約
お問い合わせ
0120-983-941
- 営業時間 10:00~18:00
- 定休日 毎週火曜日・水曜日

