兵庫区水木通4丁目 戸建
3LDK/258.16㎡(約78.09坪)
8,900万円



物件情報
おすすめポイント
取扱店舗
| 物件種別 | その他(一棟) |
| 所在地 | GoogleMaps |
| 交通 | |
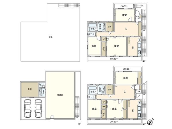
| 間取り | 3LDK |
| 建物面積 | 258.16㎡(約78.09坪) |
| 土地面積 | 145.95㎡(約44.14坪) |
| 築年月 | 1996年10月築 |
| 想定賃料 (年間) | 6,444,000円(満室時想定) |
| 想定利回り | 6.8% |
| 賃貸状況 | 総戸数3戸、稼働戸数3戸 ※総戸数には住戸数以外の店舗等の戸数も含まれています。 |
| 備考 | ※利回りは、販売価格に対する年間の賃料収入(共益費等を含む)の割合で、公租公課その他当該物件を維持するために必要な費用の控除前のものです。なお、想定賃料・想定利回りは、賃料相場をもとに空室部分の賃料を加え満室時を想定して算出したものです。 ※賃料収入は、将来にわたって確実に得られることを保証するものではありません。 (調査日: 2025年09月28日現在) |
この物件情報を共有する
毎月のお支払い目安
返済計画を入力すると毎月のお支払い目安を表示できます
- ローン251,234円
- 管理費+修繕積立金0円
- その他費用0円
お支払い目安251,234円
おすすめポイント
特徴
- 前面道路幅員6m以上
▼オーナーチェンジ物件 〇予定年間収入:6,684,000円(予定利回り7.5%) ▼おすすめポイント 〇2沿線2駅利用可 ・神戸高速鉄道南北線「新開地」駅 徒歩6分 ・神戸高速鉄道東西線「大開」駅 徒歩7分 〇土地間口:約12.9m 〇前面道路幅員:約6.0m 〇南東向き/陽当たり良好 〇令和7年7月リフォーム完了済み ・外壁塗装・バルコニー防水・屋上防水 【3階部分】 ・浴室新調・洗面化粧台新調・トイレ新調・フローリング張替(全居室)・クロス張替(全居室)・CF張替(洗面、トイレ) 【2階部分】 ・浴室新調・洗面化粧台新調・トイレ新調・フローリング張替(全居室)・クロス張替(全居室)・CF張替(洗面、トイレ)
物件情報
| 所在地 | GoogleMaps |
| 価格 | 8,900万円 |
| 交通 | |
| その他費用 | - |
| 間取り | 3LDK |
| 建物面積 | 258.16㎡(約78.09坪) |
| 土地面積 | 145.95㎡(約44.14坪) |
| 築年月 | 1996年10月築 |
| 建物構造 | 鉄骨造3階建 |
| 現況 | 賃貸中 |
| 駐車場 | 有 |
| 土地権利 | 所有権 |
| 地目 | 宅地 |
| 接道状況 | 南東側: 約 6m (公道) |
| 建ぺい率 | 60% |
| 容積率 | 200% |
| 用途地域 | 第二種住居地域 |
| 都市計画 | 市街化区域 |
| 備考 | ※間取りの詳細は、事務所×1戸+住居×2戸 ※建物3室中 3室賃貸中(賃貸借契約引継ぎ要) |
| 引渡時期 | 相談 |
| 取引態様 | 仲介 |
| 更新日 | 2025年12月06日 |
| 次回更新予定 | 2025年12月20日 |
| 物件番号 | FY1AQA14 |
取扱店舗
三井のリハウス 神戸三宮センター
- 営業時間
- 10:00~18:00
- 定休日
- 毎週火曜日・水曜日
- 住所
- 兵庫県神戸市中央区小野柄通7-1-18 三宮ビル北館5F
三井不動産リアルティ株式会社
国土交通大臣(15)第777号
三井のリハウス 神戸三宮センター
- 営業時間10:00~18:00
- 定休日毎週火曜日・水曜日
0120-9332-31
神戸市兵庫区の物件情報
この物件のリノベーションに関する問い合わせはこちらから。
リノベーション工事の可能範囲については、本物件の管理組合規約等により一定の制限が加わる場合がございます。詳細については、工事内容の確定後に判明する部分もありますので、この点については事前にお含みおきください。
リノベーションに関するお問い合わせこの物件を見学してみませんか?
この物件についてお問い合わせ
物件・住環境の詳しい情報、購入・ローン相談など、ささいなことでもお気軽にお問い合わせください。三井のリハウス 神戸三宮センター
- 営業時間10:00~18:00
- 定休日毎週火曜日・水曜日
0120-9332-31

物件の売却をご検討の方は、 はやめの査定依頼がおすすめです!
買い替えをご検討の方はこちら見学予約
お問い合わせ
0120-9332-31
- 営業時間 10:00~18:00
- 定休日 毎週火曜日・水曜日

