安城市東町荒井
名鉄西尾線 桜井駅 徒歩8分
3LDK
建物面積:81.14㎡
土地面積:130.19㎡
1991年09月築
3,190万円



| 物件種別 | 中古戸建 |
| 所在地 | GoogleMaps |
| 交通 | |
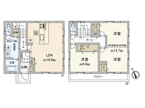
| 間取り | 2LDK |
| 建物面積 | 92.74㎡(約28.05坪) |
| 土地面積 | 133.99㎡(約40.53坪) ※路地状敷地部分約41.37㎡含む |
| 築年月 | 2019年11月築 |
予約制内覧会を開催します!
| 開催日 | 11月9日(日)10:00 ~ 17:00 11月15日(土)10:00 ~ 17:00 11月16日(日)10:00 ~ 17:00 11月22日(土)10:00 ~ 17:00 11月23日(日)10:00 ~ 17:00 |
|---|
返済計画を入力すると毎月のお支払い目安を表示できます
-物件のおすすめポイント- ▼立地 ・駐車スペース2台分有(車種によります) ・前面道路との高低差の小さい土地 ▼建物の特徴 ・令和1年(2019年)11月築 ・2LDK(3LDKに間取変更可) ・ナカオホーム建築の2×4住宅 ・令和11年(2029年)11月までの保証一部継承可 (継承のための手続き費用が別途必要となります) ・全居室複層ガラス ▼お部屋の特徴 ・明るい日差しが差し込む南東側リビング ・2階東側の広い洋室は将来的に2部屋に分けることができる間取です。(別途費用がかかります) ・全居室収納有 ■ ご希望の住まい探しをお手伝いします ━━━━━・・・ 物件の詳細・ご相談はお気軽にお問い合わせください。
| 所在地 | GoogleMaps |
| 価格 | 3,190万円 |
| 交通 | |
| その他費用 | - |
| 間取り | 2LDK |
| 建物面積 | 92.74㎡(約28.05坪) |
| 土地面積 | 133.99㎡(約40.53坪) ※路地状敷地部分約41.37㎡含む |
| 築年月 | 2019年11月築 |
| 建物構造 | 木造2階建 |
| 現況 | 空家 |
| 駐車場 | 有 |
| 土地権利 | 所有権 |
| 地目 | 宅地 |
| 接道状況 | 北西側: 約 6m (公道) |
| 建ぺい率 | 60% |
| 容積率 | 200% |
| 用途地域 | 第一種住居地域 |
| 都市計画 | 市街化区域 |
| 備考 | - |
| 引渡時期 | 相談 |
| 取引態様 | 仲介 |
| 更新日 | 2025年11月07日 |
| 次回更新予定 | 2025年11月21日 |
| 物件番号 | FZZASA02 |
GoogleMaps
| スーパー | アオキスーパー古井店 約2000m(徒歩25分) |
| 公園 | ふれあい城西公園 約450m(徒歩6分) |
| 病院 | 横山医院 約720m(徒歩9分) |
| 小学校 | 安城市立桜林小学校 約840m(徒歩11分) |
| 中学校 | 安城市立桜井中学校 約1430m(徒歩18分) |
| その他利便施設1 | アピタ安城南店 約500m(徒歩7分) |
| その他利便施設2 | ファミリーマート安城桜井町店 約550m(徒歩7分) |
| その他利便施設3 | セブンイレブン安城桜井町店 約850m(徒歩11分) |
| その他利便施設4 | スギ薬局桜井店 約640m(徒歩8分) |
三井不動産リアルティ株式会社
国土交通大臣(15)第777号
0120-61-5531
0120-61-5531
物件の売却をご検討の方は、 はやめの査定依頼がおすすめです!
買い替えをご検討の方はこちら0120-61-5531
