港区三田1丁目
東京メトロ南北線 麻布十番駅 徒歩5分
2LDK / 102.21㎡
築1年未満
98,000万円

リハウスおすすめ物件


| 物件種別 | 中古マンション |
| 所在地 | GoogleMaps |
| 交通 | |
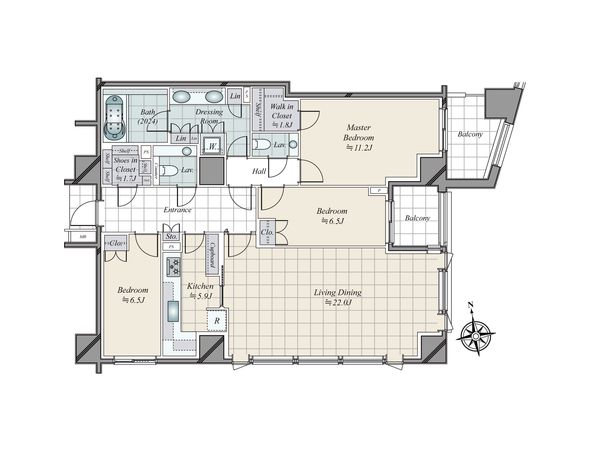
| 間取り | 3LDK |
| 専有面積 | 126.48㎡(約38.26坪) |
| 築年月 | 2015年12月築 |
| 階数 / 階建 | 3階 / 地上11階 地下1階建 |
| 向き | 東 |
返済計画を入力すると毎月のお支払い目安を表示できます
-物件のおすすめポイント- ▼立地 ・東京メトロ南北線「麻布十番」駅徒歩9分 ・都心にありながら緑溢れる住環境 ▼マンションの特徴 ・2015年築 三井不動産レジデンシャル(株)旧分譲 ・「パークマンション」シリーズ ・鹿島建設(株)旧施工 ・高級感ある外観 ・管理体制良好なマンション ▼お部屋の特徴 ・専有126.48平米のゆとりある3LDK ・3階南東角部屋 ・約22帖 最大天井高2.6mの南・東向きリビングダイニング ・イチョウ並木、綱町三井倶楽部の緑を望む眺望 ・専用使用権 機械式駐車場・トランクルーム付き ・シューズインクローゼット付き玄関収納 ・キッチンにカップボードを備え機能的な2WAY動線 ・バスルーム2024サイズ ・約11.2帖ウォークインクローゼット付きMBR 【共用施設(一部有償·予約施設あり)】 ライブラリーテラス/フィットネスサロン/ザ・サロン/ゲストルーム(プライベートヴィラ如庵)/ガーデンラウンジ/各種プライベートガーデン(ユーカリ・ウェルカム・メイブル・カスケード)/ランタンサークル/ギャラリーステアーズ等
| 所在地 | GoogleMaps |
| 価格 | 98,000万円 |
| 交通 | |
| 管理費等 | 77,150円 |
| 修繕積立金 | 28,580円 |
| その他費用 | トランクルーム 2,000円 / 月、駐車場使用料 42,000円 / 月、インターネット接続料 2,200円 / 月、トランクルーム使用料 2,000円 / 月 |
| 間取り | 3LDK |
| 専有面積 | 126.48㎡(約38.26坪) |
| 築年月 | 2015年12月築 |
| 階数 / 階建 | 3階 / 地上11階 地下1階建 |
| 向き | 東 |
| バルコニー | 12.11㎡ |
| 現況 | 居住中 |
| 駐車場 | - |
| 建物構造 | 鉄筋コンクリート造 |
| 総戸数 | 98戸 |
| 管理会社 | 三井不動産レジデンシャルサービス(株) |
| 管理形態 | 管理会社に全部委託 |
| 管理員の 勤務形態 | 常勤 |
| 土地権利 | 所有権 |
| 分譲会社 | 三井不動産レジデンシャル(株) (新築分譲時における売主) |
| 施工会社 | 鹿島建設(株) |
| 設計会社 | 鹿島建設(株)一級建築士事務所 |
| 備考 | - |
| 引渡時期 | 2026年01月上旬以降 |
| 取引態様 | 仲介 |
| 更新日 | 2025年10月30日 |
| 次回更新予定 | 2025年11月13日 |
| 物件番号 | F02ASA02 |
三井不動産リアルティ株式会社
国土交通大臣(15)第777号
0120-507-321
0120-507-321
物件の売却をご検討の方は、 はやめの査定依頼がおすすめです!
買い替えをご検討の方はこちら0120-507-321
