レーベンハイム常盤台エルステージ Ⅱ
5,780 万円



物件種別 | 中古マンション |
所在地 | GoogleMaps |
交通 | |
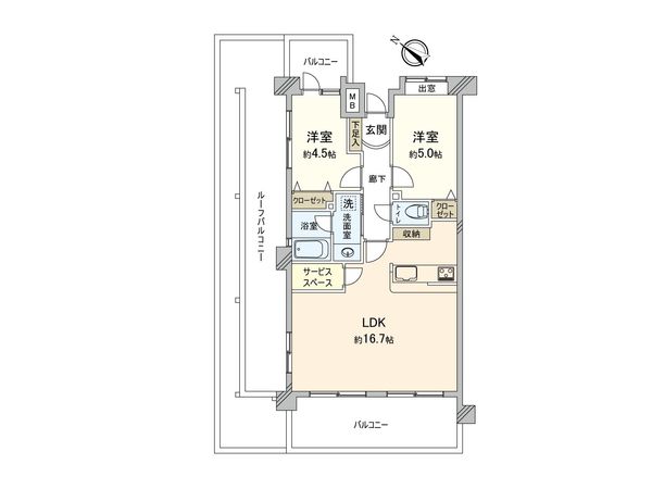
間取り | 2LDK |
専有面積 | 57.03㎡(約17.25坪) |
築年月 | 2001年08月築 |
階数 / 階建 | 5階 / 地上6階建 |
向き | 南西 |
この物件情報を共有する
毎月のお支払い目安
返済計画を入力すると毎月のお支払い目安を表示できます
- ローン 163,161円
- 管理費+修繕積立金 25,460円
- その他費用 300円
おすすめポイント
設備
- 浴室乾燥機
- オートロック
特徴
- 全居室フローリング
■ アクセス ━━━━━━━━━━━━━━━・・・・・ ○ 都営三田線「板橋本町」駅徒歩12分 ○ 東武東上線「ときわ台」駅徒歩13分 ■ おすすめポイント ━━━━━━━━━━━━━━━・・・・・ ○ 北西・南西向き角部屋 ○ 専有面積57.03平米の2LDK ○ コミュニケーションを取りながら家事ができる対面式キッチン ○ 15.42平米のルーフバルコニー付 ○ サービススペースは多用途にお使いいただけます ○ 大切なペットと共にお過ごしいただけます(細則有) ○ 快適な暮らしを守るオートロックシステム ○ 荷物の受け取りに便利な宅配ボックス ■ リフォーム内容(2025年11月リフォーム完了予定)━━━━━━━━━━━━・・・・・ ○ ハウスクリーニング ○ クロス全面貼替 ○ フローリング・フロアタイル貼替 ○ アイランドキッチン交換(タッチレス水栓) ○ カップボード交換 ○ 浴室(1317サイズ)交換 ○ 浴室換気乾燥暖房機交換 ○ タンクレストイレ・手洗い器交換 ○ ペーパーホルダー・タオルハンガー交換 ○ エアコン3基交換 ○ バルコニー・ウッドデッキ 他
リノベーション&リフォーム情報(予定含む)
全室クロス/壁紙貼り替え | 台所(キッチン)交換 |
バスルーム交換 | トイレ交換 |
床貼り替え |
水回り(キッチン、浴室、トイレ、ペーパーホルダー・タオルハンガー交換 等)(2025年11月)
内装(全室クロス、床、ハウスクリーニング、エアコン3基交換 等)(2025年11月)
物件情報
所在地 | GoogleMaps |
価格 | 5,780万円 |
交通 | |
管理費等 | 10,800円 |
修繕積立金 | 14,660円 |
その他費用 | ルーフバルコニー使用料 300円 / 月 |
間取り | 2LDK |
専有面積 | 57.03㎡(約17.25坪) |
築年月 | 2001年08月築 |
階数 / 階建 | 5階 / 地上6階建 |
向き | 南西 |
バルコニー | 14.79㎡ |
ルーフバルコニー | 15.42㎡ |
現況 | 空家 |
駐車場 | 空き無 |
建物構造 | 鉄筋コンクリート造 |
総戸数 | 30戸 |
管理会社 | (株)レーベンコミュニティー |
管理形態 | 管理会社に全部委託 |
管理員の 勤務形態 | 日勤 |
土地権利 | 所有権 |
分譲会社 | (株)タカラレーベン (新築分譲時における売主) |
施工会社 | (株)イチケン |
設計会社 | (株)ヨモプランニング |
備考 | - |
引渡時期 | 相談 |
取引態様 | 仲介 |
更新日 | 2025年10月10日 |
次回更新予定 | 2025年10月24日 |
物件番号 | F56AGAAD |
周辺情報
GoogleMaps
スーパー | ライフ前野町店 約410m(徒歩6分) |
スーパー | コモディイイダ宮本町店 約630m(徒歩8分) |
公園 | 宮本公園 約50m(徒歩1分) |
病院 | 医療法人財団朔望会常盤台外科病院 約710m(徒歩9分) |
小学校 | 板橋区立富士見台小学校 約130m(徒歩2分) |
中学校 | 板橋区立志村第一中学校 約500m(徒歩7分) |
その他利便施設1 | ローソン・スリーエフ前野町一丁目店 約170m(徒歩3分) |
その他利便施設2 | マツモトキヨシ板橋前野町店 約350m(徒歩5分) |
その他利便施設3 | 板橋富士見郵便局 約380m(徒歩5分) |
取扱店舗
- 営業時間
- 10:00~18:00
- 定休日
- 毎週火曜日・水曜日
- 住所
- 東京都板橋区常盤台2丁目5-3 アビアートときわ台1F
三井不動産リアルティ株式会社
国土交通大臣(15)第777号
三井のリハウス ときわ台センター
- 営業時間10:00~18:00
- 定休日毎週火曜日・水曜日
0120-929-231
あなたへのおすすめ
板橋区の物件情報
この物件のリノベーションに関する問い合わせはこちらから。
リノベーション工事の可能範囲については、本物件の管理組合規約等により一定の制限が加わる場合がございます。詳細については、工事内容の確定後に判明する部分もありますので、この点については事前にお含みおきください。
リノベーションに関するお問い合わせこの物件を見学してみませんか?
この物件についてお問い合わせ
物件・住環境の詳しい情報、購入・ローン相談など、ささいなことでもお気軽にお問い合わせください。三井のリハウス ときわ台センター
- 営業時間10:00~18:00
- 定休日毎週火曜日・水曜日
0120-929-231

物件の売却をご検討の方は、 はやめの査定依頼がおすすめです!
買い替えをご検討の方はこちら見学予約
お問い合わせ
0120-929-231
- 営業時間 10:00~18:00
- 定休日 毎週火曜日・水曜日