ガーデンヴィラ芦花公園
7,980 万円



| 物件種別 | 中古マンション |
| 所在地 | GoogleMaps |
| 交通 | |
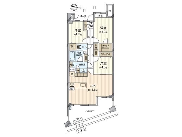
| 間取り | 3LDK |
| 専有面積 | 72.03㎡(約21.78坪) |
| 築年月 | 2005年07月築 |
| 階数 / 階建 | 1階 / 地上10階 地下1階建 |
| 向き | 東 |
この物件情報を共有する
毎月のお支払い目安
返済計画を入力すると毎月のお支払い目安を表示できます
- ローン 225,264円
- 管理費+修繕積立金 33,010円
- その他費用 150円
おすすめポイント
設備
- 床暖房
- ウォークインクローゼット
- ディスポーザー
- 浴室乾燥機
- 食器洗乾燥機
特徴
- 全居室フローリング
- 玄関ポーチ付
-物件のおすすめポイント- ▼立地 ・京王線2駅利用可能 特急停車駅「千歳烏山」駅徒歩15分 「芦花公園」駅徒歩16分 ▼マンションの特徴 ・総戸数132戸のビッグコミュニティ ・重厚感のある外観、洗練されたエントランス ・風景式庭園をイメージした中庭「ROCA'S GARDEN」 緑あふれる空間が暮らしにゆとりをもたらします ・1階部分東向き住戸 ・お部屋位置が高くなっているため目の前が気になりません ・モニター付きオートロックでセキュリティも安心 ・(株)長谷工コミュニティによる全部委託管理 ・充実した共用施設あり(一部有償) マナーズラウンジ、ライブラリー、音響シアタールーム、スタジオルーム、地下駐車場、車寄せ、24時間セキュリティシステム ・ペット飼育可(細則あり) ▼お部屋の特徴 ・約15.6帖のゆったりしたLDK ・リビングの窓は明るく開放的な一面ガラス窓 ・掃除がしやすい全居室フローリング仕様 ・通風良好な東向き住戸 ▼設備 ・家族との会話が弾む対面式キッチン ・十分な作業スペースを確保できる2446サイズのキッチン ・キッチンにはディスポーザー・食洗機付き ・雨の日の洗濯にも便利な浴室乾燥機付き ・リビングは寒い日でも暖かく過ごせる床暖房付き ・全居室クローゼットあり ・約6.0帖の洋室にはWICあり ・廊下部分に多用途に使える収納スペース2ヵ所あり ・玄関ポーチ横に使い勝手のよいトランクルームあり ・バルコニーに便利なスロップシンクあり 【世田谷区エリアで新しい暮らしをお考えの皆さまへ】 「家を買い替えたいけど、売却が先?購入が先?何から始めればいいの?」そんなお悩みをお持ちの方も、どうぞお気軽にご相談ください。 初めての方でも安心して一歩を踏み出せるよう、丁寧にサポートいたします。また、世田谷区エリア以外の不動産についても、売却のご相談を承っております。 まずは、お電話でご所有不動産の概要をお聞かせください。 無料査定のお申し込みは フリーコール:0120-921-031までお気軽にお問い合わせください。 ご自宅の「売却」も、安心と信頼の【三井のリハウス】にお任せください。
リノベーション&リフォーム情報(予定含む)
全室クロス/壁紙貼り替え | 台所(キッチン)交換 |
バスルーム交換 | トイレ交換 |
洗面化粧台交換 | 床貼り替え |
給湯器交換 | 扉交換 |
水回り(キッチン、浴室、トイレ、洗面所、給湯器)(2025年12月)
内装(全室クロス、床、建具)(2025年12月)
物件情報
| 所在地 | GoogleMaps |
| 価格 | 7,980万円 |
| 交通 | |
| 管理費等 | 16,680円 |
| 修繕積立金 | 16,330円 |
| その他費用 | 町会費 150円 / 月 |
| 間取り | 3LDK |
| 専有面積 | 72.03㎡(約21.78坪) |
| 築年月 | 2005年07月築 |
| 階数 / 階建 | 1階 / 地上10階 地下1階建 |
| 向き | 東 |
| バルコニー | 13.48㎡ |
| 現況 | 空家 |
| 駐車場 | 敷地内有 (賃貸) 空き:8台有り 月額 10,000円〜26,000円 (確認日:西暦2025年10月24日現在) |
| 建物構造 | 鉄筋コンクリート造 |
| 総戸数 | 132戸 |
| 管理会社 | (株)長谷工コミュニティ |
| 管理形態 | 管理会社に全部委託 |
| 管理員の 勤務形態 | 日勤 |
| 土地権利 | 所有権 |
| 分譲会社 | トータルハウジング(株) (新築分譲時における売主) |
| 施工会社 | 清水建設(株) |
| 設計会社 | 清水建設(株) |
| 備考 | ※専有面積72.03平米 (トランクルーム0.73平米を含む) |
| 引渡時期 | 相談 |
| 取引態様 | 仲介 |
| 更新日 | 2025年10月24日 |
| 次回更新予定 | 2025年11月07日 |
| 物件番号 | FKKAGA46 |
周辺情報
GoogleMaps
| スーパー | 業務スーパー粕谷店 約470m(徒歩6分) |
| スーパー | サミットストア千歳台店 約530m(徒歩7分) |
| 公園 | 蘆花恒春園 約240m(徒歩3分) |
| 病院 | 世田谷千歳クリニック 約330m(徒歩5分) |
| 小学校 | 世田谷区立芦花小学校 約710m(徒歩9分) |
| 中学校 | 世田谷区立芦花中学校 約710m(徒歩9分) |
| その他利便施設1 | ツルハドラッグ世田谷千歳台店 約600m(徒歩8分) |
| その他利便施設2 | 世田谷千歳台郵便局 約620m(徒歩8分) |
| その他利便施設3 | 芦花公園駅(京王線) 約1380m(徒歩18分) |
| その他利便施設4 | 千歳烏山駅(京王線) 約1260m(徒歩16分) |
取扱店舗
- 営業時間
- 10:00~18:00
- 定休日
- 毎週火曜日・水曜日
- 住所
- 東京都世田谷区南烏山4-11-5 烏山倉林ビル4F・B1F
三井不動産リアルティ株式会社
国土交通大臣(15)第777号
三井のリハウス 烏山センター
- 営業時間10:00~18:00
- 定休日毎週火曜日・水曜日
0120-921-031
あなたへのおすすめ
世田谷区の物件情報
この物件のリノベーションに関する問い合わせはこちらから。
リノベーション工事の可能範囲については、本物件の管理組合規約等により一定の制限が加わる場合がございます。詳細については、工事内容の確定後に判明する部分もありますので、この点については事前にお含みおきください。
リノベーションに関するお問い合わせこの物件を見学してみませんか?
この物件についてお問い合わせ
物件・住環境の詳しい情報、購入・ローン相談など、ささいなことでもお気軽にお問い合わせください。三井のリハウス 烏山センター
- 営業時間10:00~18:00
- 定休日毎週火曜日・水曜日
0120-921-031

物件の売却をご検討の方は、 はやめの査定依頼がおすすめです!
買い替えをご検討の方はこちら見学予約
お問い合わせ
0120-921-031
- 営業時間 10:00~18:00
- 定休日 毎週火曜日・水曜日








