豊島区高田2丁目
東京メトロ副都心線 雑司が谷駅 徒歩3分
2LDK / 63.99㎡
2008年02月築
11,980万円



| 物件種別 | 中古マンション |
| 所在地 | GoogleMaps |
| 交通 | |
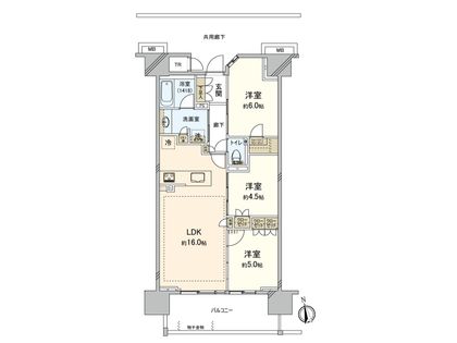
| 間取り | 3LDK |
| 専有面積 | 71.69㎡(約21.68坪) |
| 築年月 | 2022年01月築 |
| 階数 / 階建 | 9階 / 地上15階建 |
| 向き | 南 |
予約制内覧会を開催します!
| 開催日 | 11月8日(土)11:00 ~ 17:00 11月9日(日)11:00 ~ 17:00 11月15日(土)11:00 ~ 17:00 11月16日(日)11:00 ~ 17:00 11月22日(土)11:00 ~ 17:00 |
|---|
返済計画を入力すると毎月のお支払い目安を表示できます
■ ここがポイント! ━━━━━━━━━━━━━━━・・・・・ ○ 南向きバルコニーの明るい住空間 ○ 9階部分につき眺望良好 ○ LDKはゆったり約16帖 ○ WIC等豊富な収納スペース(トランクルームあり) ○ 都心の利便性と落ち着いた環境が両立する文教地区 ■ ご確認いただきたい特徴 ━━━━━━━━━━━━━━━・・・・・ ○ 東京建物(株)旧分譲 ○ 令和4年1月築 ○ 総戸数454戸のビックコミュニティ ○ ペット飼育可能(細則有) ■ 設備・仕様 ━━━━━━━━━━━━━━━・・・・・ ○ 温水式床暖房(リビング) ○ 対面式システムキッチン ○ 食器洗い乾燥機 ○ ディスポーザー ○ 浄水器一体型シャワー水栓 ○ 節水トイレ ○ 浴室暖房換気乾燥機 ○ 魔法びん浴槽 ○ カラーモニター付きインターホン ○ ハンズフリーキー ○ トリプルセキュリティシステム ○ 宅配ボックス ■ 共用施設(一部有償) ━━━━━━━━━━━━━━━・・・・・ ○ ライブラリーラウンジ ○ キッズスタジオ ○ シェアキッチン ○ ゲストルーム ○ フォレストリビング ○ マルチスタジオ ○ グランドエントランス ○ コワーキングラウンジ 等
| 所在地 | GoogleMaps |
| 価格 | 11,980万円 |
| 交通 | |
| 管理費等 | 21,510円 |
| 修繕積立金 | 5,740円 |
| その他費用 | 解体準備積立金 7,590円 / 月、口座振替手数料 88円 / 月、町会費 200円 / 月、インターネット 1,353円 / 月 |
| 間取り | 3LDK |
| 専有面積 | 71.69㎡(約21.68坪) |
| 築年月 | 2022年01月築 |
| 階数 / 階建 | 9階 / 地上15階建 |
| 向き | 南 |
| バルコニー | 11.6㎡ |
| 現況 | 空家 |
| 駐車場 | 敷地内有 (賃貸) 空き:6台有り 月額 29,000円〜34,000円 (確認日:西暦2025年07月17日現在) |
| 建物構造 | 鉄筋コンクリート造 |
| 総戸数 | 454戸 |
| 管理会社 | (株)東京建物アメニティサポート |
| 管理形態 | 管理会社に全部委託 |
| 管理員の 勤務形態 | 日勤 |
| 土地権利 | 定期借地権(賃借権) 借地期間・借地料(月額) 2092年05月まで 8,230円 |
| 分譲会社 | 東京建物(株) (新築分譲時における売主) |
| 施工会社 | (株)長谷工コーポレーション |
| 設計会社 | (株)長谷工コーポレーション |
| 備考 | 上記専有面積には、トランクルーム面積1.05平米を含みます 土地権利:借地権設定登記可、賃料改定は3年毎に改定、改定後賃料は事前協議により決定、借地権の譲渡・転貸可(転貸主承諾、承諾要、承諾料不要) |
| 引渡時期 | 即時 |
| 取引態様 | 仲介 |
| 更新日 | 2025年11月01日 |
| 次回更新予定 | 2025年11月15日 |
| 物件番号 | FP8APA0A |
GoogleMaps
| スーパー | まいばすけっと面影橋駅東店 約300m(徒歩4分) |
| スーパー | よしやセーヌ目白高田店 約290m(徒歩4分) |
| 公園 | 甘泉園公園 約300m(徒歩4分) |
| 病院 | 町のクリニック目白 約220m(徒歩3分) |
| 小学校 | 豊島区立高南小学校 約450m(徒歩6分) |
| 中学校 | 豊島区立千登世橋中学校 約500m(徒歩7分) |
| その他利便施設1 | ファミリーマート豊島高田一丁目店 約350m(徒歩5分) |
| その他利便施設2 | ココカラファイン目白高田店 約300m(徒歩4分) |
| その他利便施設3 | 豊島高田郵便局 約350m(徒歩5分) |
0120-313-720
0120-313-720
物件の売却をご検討の方は、 はやめの査定依頼がおすすめです!
買い替えをご検討の方はこちら0120-313-720
