大阪市西区江戸堀2丁目
大阪メトロ四つ橋線 肥後橋駅 徒歩8分
2LDK / 54.13㎡
2012年01月築
6,080 万円



| 物件種別 | 中古マンション |
| 所在地 | GoogleMaps |
| 交通 | |
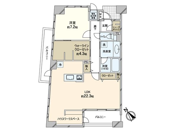
| 間取り | 1SLDK ※S・サービススペースは納戸です |
| 専有面積 | 74.06㎡(約22.4坪) |
| 築年月 | 2005年09月築 |
| 階数 / 階建 | 8階 / 地上15階 地下1階建 |
| 向き | 南西 |
返済計画を入力すると毎月のお支払い目安を表示できます
-物件のおすすめポイント- ▼立地 ・大阪メトロ四つ橋線「肥後橋」駅 徒歩6分 ・大阪メトロ御堂筋線「淀屋橋」駅 徒歩11分 ・京阪本線「淀屋橋」駅 徒歩11分 ▼マンションの特徴 ・3路線3駅利用可能な好立地 ・ペット飼育可能(規約制限あり) ・オートロック付マンションでセキュリティも安心 ・周辺に生活便利施設多数あり ▼お部屋の特徴 ・8階部分南西・北西角部屋につき陽当たり・通風良好 ・専有面積74.06平米の1SLDK ・広々としたリビング約18.1帖 ・リビングにハウスワークスペースがあり在宅ワーク等に便利です ▼設備 ・料理をしながら会話が楽しめる対面式キッチン ・洋室と廊下の両方からアクセス可能な約4.3帖のウォークインクローゼット ▼周辺環境 ・ライフ土佐堀店 約200m ・ローソン江戸堀センタービル 約70m ■ ご希望の住まい探しをお手伝いします ━━━━━・・・ 物件の詳細・ご相談はお気軽にお問い合わせください。
| 所在地 | GoogleMaps |
| 価格 | 6,080万円 |
| 交通 | |
| 管理費等 | 11,850円 |
| 修繕積立金 | 20,740円 |
| その他費用 | - |
| 間取り | 1SLDK ※S・サービススペースは納戸です |
| 専有面積 | 74.06㎡(約22.4坪) |
| 築年月 | 2005年09月築 |
| 階数 / 階建 | 8階 / 地上15階 地下1階建 |
| 向き | 南西 |
| バルコニー | 12.04㎡ |
| 現況 | 居住中 |
| 駐車場 | 敷地内有 (所有権) 空き:12台有り 月額 16,000円〜18,000円 (確認日:西暦2025年10月20日現在) |
| 建物構造 | 鉄筋コンクリート造 |
| 総戸数 | 77戸 |
| 管理会社 | 関電コミュニティ(株) |
| 管理形態 | 管理会社に全部委託 |
| 管理員の 勤務形態 | 日勤 |
| 土地権利 | 所有権 |
| 分譲会社 | アーバンライフ(株) (新築分譲時における売主) |
| 施工会社 | (株)新井組 |
| 設計会社 | (株)新井組 |
| 備考 | 専有面積には電気温水器置場専有面積0.88平米を含みます。 |
| 引渡時期 | 相談 |
| 取引態様 | 仲介 |
| 更新日 | 2025年10月27日 |
| 次回更新予定 | 2025年11月10日 |
| 物件番号 | FSLASA0A |
GoogleMaps
| スーパー | ライフ土佐堀店 約200m(徒歩3分) |
| 公園 | 靭本町公園 約280m(徒歩4分) |
| 公園 | 西船場公園 約230m(徒歩3分) |
| 病院 | 一般財団法人住友病院 約640m(徒歩8分) |
| 小学校 | 西船場小学校 約160m(徒歩2分) |
| 中学校 | 花乃井中学校 約350m(徒歩5分) |
| その他利便施設1 | キリン堂肥後橋店 約480m(徒歩6分) |
| その他利便施設2 | ローソン江戸堀センタービル 約70m(徒歩1分) |
| その他利便施設3 | ファミリーマート江戸堀なにわ筋店 約70m(徒歩1分) |
| その他利便施設4 | 大阪江戸堀郵便局 約100m(徒歩2分) |
三井不動産リアルティ株式会社
国土交通大臣(15)第777号
0120-9881-77
リノベーション工事の可能範囲については、本物件の管理組合規約等により一定の制限が加わる場合がございます。詳細については、工事内容の確定後に判明する部分もありますので、この点については事前にお含みおきください。
リノベーションに関するお問い合わせ0120-9881-77
物件の売却をご検討の方は、 はやめの査定依頼がおすすめです!
買い替えをご検討の方はこちら0120-9881-77
