リバーサイドともぶち第一住宅第34号棟
3LDK/93.49㎡(約28.28坪)
3,280万円



物件情報
おすすめポイント
取扱店舗
| 物件種別 | 中古マンション |
| 所在地 | GoogleMaps |
| 交通 | |
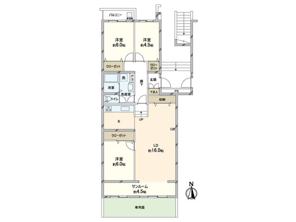
| 間取り | 3LDK |
| 専有面積 | 93.49㎡(約28.28坪) |
| 築年月 | 1984年05月築 |
| 階数 / 階建 | 1階 / 地上5階建 |
| 向き | 南 |
この物件情報を共有する
毎月のお支払い目安
返済計画を入力すると毎月のお支払い目安を表示できます
- ローン92,590円
- 管理費+修繕積立金12,800円
- その他費用200円
お支払い目安105,590円
おすすめポイント
設備
- 専用庭
- 食器洗乾燥機
特徴
- 全居室フローリング
■ おすすめポイント ━━━━━━━━━━━━━━━・・・・・ ○ 内装リフォーム済み物件 ○ 専用庭あり ○ 1階部分のお部屋です ○ 専有面積:93.49平米の3LDK ○ 南向き住戸につき陽当り良好 ○ 油や煙が広がりにくい独立型キッチン ○ 各居室に収納有り ○ 現況空室につき随時ご内覧可能です ■ リフォーム内容(2025年10月完成) ━━━━━━━━━━━━━━━・・・・・ ○ キッチン新調 ○ ユニットバス新調 ○ 洗面台新調 ○ トイレ新調 ○ 建具新調 ○ クロス貼替え(全室) ○ フローリング張替え(LDK・各洋室・廊下) ○ クッションフロア貼替え(洗面所・トイレ) ○ ハウスクリーニング
リノベーション&リフォーム情報
台所(キッチン)交換 | バスルーム交換 |
トイレ交換 | 洗面化粧台交換 |
水回り(キッチン、浴室、トイレ、洗面所)(2025年10月)
内装(全面)(2025年10月)
物件情報
| 所在地 | GoogleMaps |
| 価格 | 3,280万円 |
| 交通 | |
| 管理費等 | 5,000円 |
| 修繕積立金 | 7,800円 |
| その他費用 | 組合運営費 200円 / 月 |
| 間取り | 3LDK |
| 専有面積 | 93.49㎡(約28.28坪) |
| 築年月 | 1984年05月築 |
| 階数 / 階建 | 1階 / 地上5階建 |
| 向き | 南 |
| バルコニー | - |
| 専用庭 | 13㎡ |
| 現況 | 空家 |
| 駐車場 | 空き無 |
| 建物構造 | 鉄筋コンクリート造 |
| 総戸数 | 61戸 |
| 管理会社 | 日本ハウズイング(株) |
| 管理形態 | 管理会社に全部委託 |
| 管理員の 勤務形態 | 日勤 |
| 土地権利 | 所有権 |
| 分譲会社 | 住宅・都市整備公団 (新築分譲時における売主) |
| 施工会社 | 富国建設(株) |
| 備考 | - |
| 引渡時期 | 相談 |
| 取引態様 | 仲介 |
| 更新日 | 2026年01月15日 |
| 次回更新予定 | 2026年01月29日 |
| 物件番号 | FXLASA0A |
この物件のことを
AIに聞いてみませんか?
最新のAI技術を活用した相談サービスです。
お客様一人ひとりのニーズに合わせて最適な情報をご提供します。
リハウスAIチャットの詳しい説明はこちら

取扱店舗
三井のリハウス 都島センター
- 営業時間
- 10:00~18:00
- 定休日
- 毎週火曜日・水曜日
- 住所
- 大阪府大阪市都島区友渕町1丁目5-1-C-4 ベルパークシティC棟1F
三井不動産リアルティ株式会社
国土交通大臣(15)第777号
三井のリハウス 都島センター
- 営業時間10:00~18:00
- 定休日毎週火曜日・水曜日
0120-9887-31
あなたへのおすすめ
大阪市都島区の物件情報
この物件を見学してみませんか?
この物件についてお問い合わせ
物件・住環境の詳しい情報、購入・ローン相談など、ささいなことでもお気軽にお問い合わせください。三井のリハウス 都島センター
- 営業時間10:00~18:00
- 定休日毎週火曜日・水曜日
0120-9887-31

物件の売却をご検討の方は、 はやめの査定依頼がおすすめです!
買い替えをご検討の方はこちら見学予約
お問い合わせ
0120-9887-31
- 営業時間 10:00~18:00
- 定休日 毎週火曜日・水曜日













