練馬区高松6丁目
都営大江戸線 光が丘駅 徒歩17分
4LDK
建物面積:99.37㎡
土地面積:110.05㎡
新築
9,280万円



| 物件種別 | 新築戸建 |
| 所在地 | GoogleMaps |
| 交通 | 都営大江戸線 光が丘駅 徒歩17分 |
| 間取り | 4LDK |
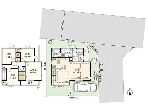
| 建物面積 | 103.18㎡(約31.21坪) |
| 土地面積 | 110.05㎡(約33.29坪) ※別途私道約29.81㎡有 (共有持分 1/10) |
| 築年月 | 2025年03月築 |
返済計画を入力すると毎月のお支払い目安を表示できます
大和ハウス分譲住宅「セキュレア」 ○練馬区高松6丁目 新築戸建 1号地 ■交通アクセス 〇都営大江戸線「光が丘」駅 徒歩17分 ■おすすめポイント ○土地面積110.05平米 (約33.29坪) ○建物面積103.18平米 (約31.21坪) ○第1種低層住居専用地域 ※建蔽率50%、容積率100% 〇北東角地 ・北向約6.0m道路・ 東向約5.0m道路に面す 〇4LDK+WIC ○約19.0帖LDK ○対面式システムキッチン ○キッチンに食品等の収納に便利なパントリーあり ○床下収納あり ○1階廊下に階段下収納あり ○駐車スペースあり(車種による) ■充実の設備 ○太陽光発電システム ○ハイブリッド給湯器 ○24時間換気システム ○録画機能付カラーモニターインターホン ○住宅用火災警報器 ○シャッタ― ○ガス温水床暖房(LD部分) ○電気自動車専用コンセント ○ビルトイン浄水器付タッチレス水栓(キッチン) ○食器洗浄機 ○断熱保温浴槽 ○浴室暖房換気乾燥機 ○宅配ボックス
| 所在地 | GoogleMaps |
| 価格 | 9,280万円 |
| 交通 | 都営大江戸線 光が丘駅 徒歩17分 |
| その他費用 | - |
| 間取り | 4LDK |
| 建物面積 | 103.18㎡(約31.21坪) |
| 土地面積 | 110.05㎡(約33.29坪) ※別途私道約29.81㎡有 (共有持分 1/10) |
| 築年月 | 2025年03月築 |
| 建物構造 | 軽量鉄骨造2階建 |
| 現況 | 空家 |
| 駐車場 | 有 |
| 土地権利 | 所有権 |
| 地目 | 宅地 |
| 接道状況 | 北側: 約 6m (公道)、東側: 約 5m (公道) |
| 建ぺい率 | 50% |
| 容積率 | 100% |
| 用途地域 | 第一種低層住居専用地域 |
| 都市計画 | 市街化区域 |
| 備考 | ※ゴミ置場2.84平米のうち1/10持分含む |
| 引渡時期 | 即時 |
| 取引態様 | 仲介 |
| 更新日 | 2025年11月10日 |
| 次回更新予定 | 2025年11月24日 |
| 物件番号 | F22AGAAF |
最新のAI技術を活用した相談サービスです。
お客様一人ひとりのニーズに合わせて最適な情報をご提供します。
GoogleMaps
| スーパー | オーケー土支田店 約430m(徒歩6分) |
| 公園 | 大通り南公園 約640m(徒歩8分) |
| 病院 | 高松医院 約420m(徒歩6分) |
| 小学校 | 練馬区立北原小学校 約670m(徒歩9分) |
| 中学校 | 練馬区立谷原中学校 約620m(徒歩8分) |
| その他利便施設1 | ファミリーマート高松六丁目店 約150m(徒歩2分) |
| その他利便施設2 | ウエルシア練馬高松店 約190m(徒歩3分) |
| その他利便施設3 | 練馬高松郵便局 約190m(徒歩3分) |
三井不動産リアルティ株式会社
国土交通大臣(15)第777号
0120-19-0031
0120-19-0031
物件の売却をご検討の方は、 はやめの査定依頼がおすすめです!
買い替えをご検討の方はこちら0120-19-0031
