練馬区大泉町2丁目
西武池袋・豊島線 石神井公園駅 バス16分 大泉町2丁目 停歩3分
5LDK
建物面積:104.95㎡
土地面積:116.02㎡
2025年12月築(予定)
5,790万円



| 物件種別 | 新築戸建 |
| 所在地 | GoogleMaps |
| 交通 | 西武池袋・豊島線 石神井公園駅 バス16分 大泉町2丁目 停歩3分 |
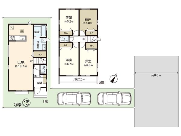
| 間取り | 3SLDK ※S・サービススペースは納戸です |
| 建物面積 | 94.39㎡(約28.55坪) |
| 土地面積 | 110.1㎡(約33.3坪) |
| 築年月 | 2025年12月築(予定) |
返済計画を入力すると毎月のお支払い目安を表示できます
■練馬区大泉町2丁目新築戸建 A号棟 ■交通アクセス ○ 西武池袋線「石神井公園」駅 バス16分 「大泉町二丁目」 停歩3分 ■おすすめポイント ○ 土地面積110.10平米(約33.30坪) ○ 建物面積94.39平米 (約28.55坪) ○ 建蔽率50%、容積率100% ○ 第一種低層住居専用地域 ○ 3SLDK ○ 前面道路北東約6.0m公道 ○ 南東向きバルコニー ○ 全居室収納あり ○ 全居室フローリング仕様 ○ 約18.7帖のリビング ○ 会話が弾む対面式システムキッチン ○ 浴室乾燥機付きユニットバス ○ 浴室に窓あり 〇 1階・2階にトイレ設置 ○ リビング階段 ○ 駐車スペース2台分あり(※車種による) ■ ご希望の住まい探しをお手伝いします ━━━━━・・・ 物件の詳細・ご相談はお気軽にお問い合わせください。
| 所在地 | GoogleMaps |
| 価格 | 5,790万円 |
| 交通 | 西武池袋・豊島線 石神井公園駅 バス16分 大泉町2丁目 停歩3分 |
| その他費用 | - |
| 間取り | 3SLDK ※S・サービススペースは納戸です |
| 建物面積 | 94.39㎡(約28.55坪) |
| 土地面積 | 110.1㎡(約33.3坪) |
| 築年月 | 2025年12月築(予定) |
| 建物構造 | 木造2階建 |
| 現況 | 未完成 |
| 駐車場 | 有 |
| 土地権利 | 所有権 |
| 地目 | 宅地 |
| 接道状況 | 北東側: 約 6m (公道) |
| 建ぺい率 | 50% |
| 容積率 | 100% |
| 用途地域 | 第一種低層住居専用地域 |
| 都市計画 | 市街化区域 |
| 建築確認番号 | 第HPA-25-09176-1号 |
| 備考 | - |
| 引渡時期 | 相談 |
| 取引態様 | 仲介 |
| 更新日 | 2025年11月10日 |
| 次回更新予定 | 2025年11月24日 |
| 物件番号 | F22AGABA |
GoogleMaps
| スーパー | ライフ土支田店 約820m(徒歩11分) |
| スーパー | オーケー土支田店 約1160m(徒歩15分) |
| 公園 | あかまつ緑地 約350m(徒歩5分) |
| 病院 | ねりま西クリニック 約770m(徒歩10分) |
| 小学校 | 練馬区立橋戸小学校 約500m(徒歩7分) |
| 中学校 | 練馬区立八坂中学校 約1420m(徒歩18分) |
| その他利便施設1 | セブンイレブン練馬大泉町2丁目店 約210m(徒歩3分) |
| その他利便施設2 | セブンイレブン練馬土支田通中央店 約570m(徒歩8分) |
| その他利便施設3 | クリエイトSD練馬土支田店 約1140m(徒歩15分) |
三井不動産リアルティ株式会社
国土交通大臣(15)第777号
0120-19-0031
0120-19-0031
物件の売却をご検討の方は、 はやめの査定依頼がおすすめです!
買い替えをご検討の方はこちら0120-19-0031
