さいたま市西区大字内野本郷
高崎線 宮原駅 徒歩27分
4LDK
建物面積:104.3㎡
土地面積:103.84㎡
新築
3,580万円



| 物件種別 | 新築戸建 |
| 所在地 | GoogleMaps |
| 交通 | 川越線 西大宮駅 徒歩30分 |
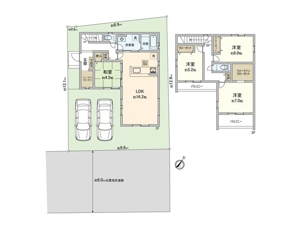
| 間取り | 4LDK |
| 建物面積 | 102.26㎡(約30.93坪) |
| 土地面積 | 122.39㎡(約37.02坪) |
| 築年月 | 2026年02月築 |
返済計画を入力すると毎月のお支払い目安を表示できます
-物件のおすすめポイント- ▼立地 ・JR川越線「西大宮」駅 徒歩30分 ▼建物の特徴 ・木造2階建・4LDK新築住宅 ・駐車スペース2台分あり ※車種による制限有 ・前面道路6m ▼お部屋の特徴 ・大きな窓が優しい採光を呼び込むリビングダイニング ・落ち着いた雰囲気の和室 ・南東に面した洋室は採光に優れた心地よい空間 ▼設備 ・家族との会話が弾む対面式キッチン ・同時調理に便利な3口コンロ ・浴室にも窓を設置し快適なバスタイムを演出 ・大切な衣類を収納できるウォークインクローゼット ・収納豊富なため各居室の居住空間を有効に活用できます ▼周辺環境 ・セキ内野本郷店まで徒歩10分(約770m) ・ミニストップ大宮内野本郷店まで徒歩12分(約890m) ■ ご希望の住まい探しをお手伝いします ━━━━━・・・ 物件の詳細・ご相談はお気軽にお問い合わせください。
| 所在地 | GoogleMaps |
| 価格 | 3,580万円 |
| 交通 | 川越線 西大宮駅 徒歩30分 |
| その他費用 | - |
| 間取り | 4LDK |
| 建物面積 | 102.26㎡(約30.93坪) |
| 土地面積 | 122.39㎡(約37.02坪) |
| 築年月 | 2026年02月築 |
| 建物構造 | 木造2階建 |
| 現況 | 空家 |
| 駐車場 | 有 |
| 土地権利 | 所有権 |
| 地目 | 宅地 |
| 接道状況 | 南東側: 約 6m (私道) |
| 建ぺい率 | 60% |
| 容積率 | 200% |
| 用途地域 | 第一種中高層住居専用地域 |
| 都市計画 | 市街化区域 |
| 備考 | - |
| 引渡時期 | 相談 |
| 取引態様 | 仲介 |
| 更新日 | 2026年02月14日 |
| 次回更新予定 | 2026年02月28日 |
| 物件番号 | F50AGBF8 |
最新のAI技術を活用した相談サービスです。
お客様一人ひとりのニーズに合わせて最適な情報をご提供します。
リハウスAIチャットの詳しい説明はこちら
GoogleMaps
| スーパー | ヤオコー西大宮店 約1400m(徒歩18分) |
| スーパー | マルエツ西大宮駅前店 約2000m(徒歩25分) |
| 公園 | 清河寺公園 約890m(徒歩12分) |
| 病院 | むらたクリニック 約600m(徒歩8分) |
| 小学校 | さいたま市立日進北小学校 約2000m(徒歩25分) |
| 中学校 | さいたま市立宮前中学校 約1600m(徒歩20分) |
| その他利便施設1 | ミニストップ大宮内野本郷店 約890m(徒歩12分) |
| その他利便施設2 | ドラッグストアセキ内野本郷店 約770m(徒歩10分) |
| その他利便施設3 | ドラッグセイムス大宮清河寺店 約1400m(徒歩18分) |
| その他利便施設4 | 大宮清河寺郵便局 約890m(徒歩12分) |
0120-031-631
0120-031-631
物件の売却をご検討の方は、 はやめの査定依頼がおすすめです!
買い替えをご検討の方はこちら0120-031-631

