松戸市栄町7丁目
千代田・常磐緩行線 馬橋駅 徒歩10分
4LDK
建物面積:101.43㎡
土地面積:100.03㎡
新築
5,399万円



| 物件種別 | 新築戸建 |
| 所在地 | GoogleMaps |
| 交通 | |
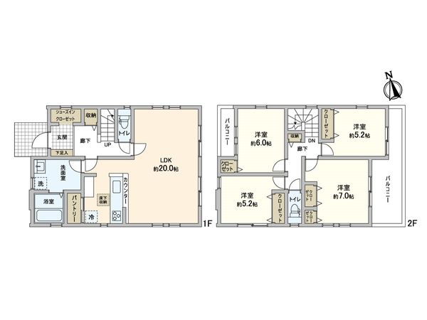
| 間取り | 4LDK |
| 建物面積 | 107.65㎡(約32.56坪) |
| 土地面積 | 170.78㎡(約51.66坪) |
| 築年月 | 2025年11月築(予定) |
返済計画を入力すると毎月のお支払い目安を表示できます
■おすすめポイント ━━━━━━━━━━━━━━━・・・・・ 〇 千代田・常磐緩行線「馬橋」駅 徒歩15分 〇 千代田・常磐緩行線「北松戸」駅 徒歩16分 〇 令和7年11月完成予定の新築戸建 〇 土地面積:170.78平米(約51.66坪) 〇 建物面積:107.65平米(約32.56坪)の4LDK 〇 広々とした、約20.0帖のLDK ○ ご家族との会話が弾む対面式キッチン 〇 食器や食品の収納に便利なパントリー 〇 洗い物の時間を短縮、食洗機付き 〇 雨の日の衣類乾燥に便利な浴室乾燥機 〇 靴やベビーカー、ゴルフバックなどの収納に便利なシューズインクローゼット 〇 来客時に安心なTVモニター付きインターホン ■ライフインフォメーション ━━━━━━━━━━━━━━━・・・・・ 〇 オリンピック馬橋店 約450m 〇 ファミリーマート松戸栄町店 約220m 〇 マツモトキヨシ馬橋店 約1120m 〇 松戸栄郵便局 約310m 〇 高木クリニック 約370m 〇 松戸市立旭町小学校 約1170m 〇 松戸市立旭町中学校 約1380m 〇 栄町第一公園 約160m
| 所在地 | GoogleMaps |
| 価格 | 5,399万円 |
| 交通 | |
| その他費用 | - |
| 間取り | 4LDK |
| 建物面積 | 107.65㎡(約32.56坪) |
| 土地面積 | 170.78㎡(約51.66坪) |
| 築年月 | 2025年11月築(予定) |
| 建物構造 | 木造2階建 |
| 現況 | 未完成 |
| 駐車場 | 有 |
| 土地権利 | 所有権 |
| 地目 | 宅地 |
| 接道状況 | 北西側: 約 5.1m (公道) |
| 建ぺい率 | 60% |
| 容積率 | 200% |
| 用途地域 | 第一種中高層住居専用地域 |
| 都市計画 | 市街化区域 |
| 建築確認番号 | 第25UDI1W建02690号 |
| 備考 | 小学校・中学校までの距離は通学路ではございません。 |
| 引渡時期 | 相談 |
| 取引態様 | 仲介 |
| 更新日 | 2025年11月10日 |
| 次回更新予定 | 2025年11月24日 |
| 物件番号 | F77AGAF7 |
GoogleMaps
| スーパー | オリンピック馬橋店 約450m(徒歩6分) |
| 公園 | 栄町第一公園 約160m(徒歩2分) |
| 病院 | 高木クリニック 約370m(徒歩5分) |
| 小学校 | 松戸市立旭町小学校 約1170m(徒歩15分) |
| 中学校 | 松戸市立旭町中学校 約1380m(徒歩18分) |
| その他利便施設1 | ファミリーマート松戸栄町店 約220m(徒歩3分) |
| その他利便施設2 | マツモトキヨシ馬橋店 約1120m(徒歩14分) |
| その他利便施設3 | 松戸栄郵便局 約310m(徒歩4分) |
0120-984-331
0120-984-331
物件の売却をご検討の方は、 はやめの査定依頼がおすすめです!
買い替えをご検討の方はこちら0120-984-331
