相模原市南区上鶴間本町9丁目
小田急電鉄江ノ島線 東林間駅 徒歩19分
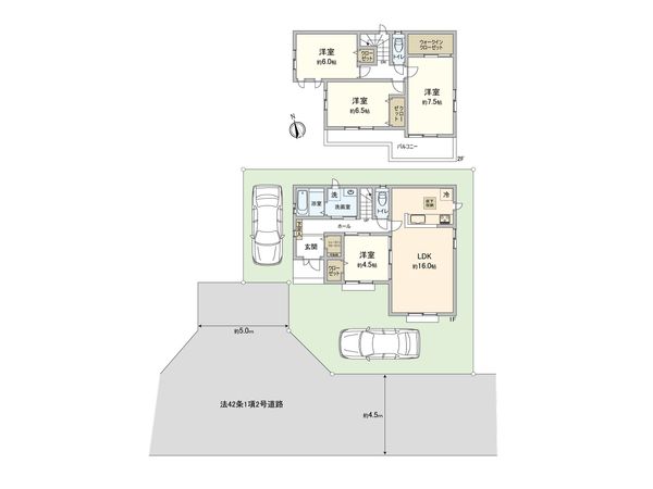
3LDK
建物面積:94.7㎡
土地面積:101.85㎡
2026年05月築(予定)
4,890万円



| 物件種別 | 新築戸建 |
| 所在地 | GoogleMaps |
| 交通 | |
| 間取り | 4LDK |
| 建物面積 | 99.77㎡(約30.18坪) |
| 土地面積 | 120.49㎡(約36.44坪) |
| 築年月 | 2026年03月築(予定) |
返済計画を入力すると毎月のお支払い目安を表示できます
■ おすすめポイント━━━━━━━━━━━━━・・・・・ ○ 小田急江ノ島線「東林間」駅 徒歩19分 ○ 東急田園都市線「つきみ野」駅 徒歩22分 ○ 南西向きのため陽当り良好 ○ 駐車スペース2台分(車種による) ○ 各居室収納付、WIC・SICなど収納豊富な設計 ■ 設備・仕様 ━━━━━━━━━━━━━━━・・・・・ ○ キッチンはお料理しながら会話が弾む対面式、床下収納有 ○ 浴室乾燥機で雨の日でも楽々お洗濯 ○ フラットフロア、浴室等に手摺付きと、バリアフリー仕様 ○ 洋室2室を跨ぐバルコニー ■ 三井のリハウス相模大野センターへお車でご来店いただく場合 ━━━━━━━━━━━━━━━・・・・・ ボーノ相模大野内にある【タイムズ相模原市営相模大野駅西側自動車駐車場】もしくは行幸通り沿いにある【タイムズ相模原市営相模大野立体駐車場】をご利用ください。(入庫されたお時間確認のため、発行された駐車券はお手数ですが店舗までお持ちください) お帰りの際【駐車サービス券】をお渡しいたします。
| 所在地 | GoogleMaps |
| 価格 | 4,890万円 |
| 交通 | |
| その他費用 | - |
| 間取り | 4LDK |
| 建物面積 | 99.77㎡(約30.18坪) |
| 土地面積 | 120.49㎡(約36.44坪) |
| 築年月 | 2026年03月築(予定) |
| 建物構造 | 木造2階建 |
| 現況 | 未完成 |
| 駐車場 | 有 |
| 土地権利 | 所有権 |
| 地目 | 宅地 |
| 接道状況 | - |
| 建ぺい率 | 60% |
| 容積率 | 200% |
| 用途地域 | 第一種中高層住居専用地域 |
| 都市計画 | 市街化区域 |
| 建築確認番号 | 第HPA-25-11119-1号 |
| 備考 | 新規開発道路及びゴミ置場は相模原市に移管予定。 |
| 引渡時期 | 相談 |
| 取引態様 | 仲介 |
| 更新日 | 2025年12月13日 |
| 次回更新予定 | 2025年12月27日 |
| 物件番号 | F80AGB52 |
最新のAI技術を活用した相談サービスです。
お客様一人ひとりのニーズに合わせて最適な情報をご提供します。
リハウスAIチャットの詳しい説明はこちら
GoogleMaps
| スーパー | MEGAドン・キホーテ 上鶴間店 約400m(徒歩5分) |
| 公園 | 上鶴間本町9丁目公園 約340m(徒歩5分) |
| 病院 | 上鶴間内科クリニック 約680m(徒歩9分) |
| 小学校 | 鶴園小学校 約1010m(徒歩13分) |
| 中学校 | 谷口中学校 約1700m(徒歩22分) |
| その他利便施設1 | 東林間駅(小田急 江ノ島線) 約1570m(徒歩20分) |
| その他利便施設2 | つきみ野駅(東急電鉄 田園都市線) 約1720m(徒歩22分) |
| その他利便施設3 | クリエイトエス・ディー相模原上鶴間店 約780m(徒歩10分) |
| その他利便施設4 | ローソン相模原上鶴間本町店 約340m(徒歩5分) |
| その他利便施設5 | 上鶴間郵便局 約1120m(徒歩14分) |
三井不動産リアルティ株式会社
国土交通大臣(15)第777号
0120-944-131
0120-944-131
物件の売却をご検討の方は、 はやめの査定依頼がおすすめです!
買い替えをご検討の方はこちら0120-944-131

