相模原市南区上鶴間1丁目
小田急電鉄江ノ島線 東林間駅 徒歩9分
3LDK
建物面積:87.35㎡
土地面積:92.89㎡
新築
4,990万円



| 物件種別 | 新築戸建 |
| 所在地 | GoogleMaps |
| 交通 | |
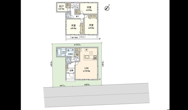
| 間取り | 3SLDK ※S・サービススペースは納戸です |
| 建物面積 | 85.28㎡(約25.79坪) |
| 土地面積 | 88.55㎡(約26.78坪) ※別途私道約20.85㎡有 |
| 築年月 | 2026年03月築(予定) |
返済計画を入力すると毎月のお支払い目安を表示できます
-物件のおすすめポイント- ▼立地・周辺環境 ・小田急線「東林間」駅 徒歩7分 ・小田急江ノ島線 「中央林間」駅 徒歩17分 ・スーパー三和東林間西口店まで430m ・セブン相模原東林間5丁目店まで540m ▼お部屋の特徴 ・ 広々とした約16帖のLDK ・南東向きのため日当たり良好 ・家族とのコミュニケーションが弾む対面式キッチン 折上天井のため開放感がございます ・トイレ2か所あり ・書斎として利用可能な約2.5帖の納戸あり ・パントリー、階段下収納など収納豊富 ・2か所から出入り可能なバルコニー ■ 三井のリハウス相模大野センターへお車でご来店いただく場合 ━━━━━━━━━━━━━━━・・・・・ ・ボーノ相模大野内にある【タイムズ相模原市営相模大野駅西側自動車駐車場】もしくは ・行幸通り沿いにある【タイムズ相模原市営相模大野立体駐車場】をご利用ください。 (入庫されたお時間確認のため、発行された駐車券はお手数ですが店舗までお持ちください) お帰りの際【駐車サービス券】をお渡しいたします。
| 所在地 | GoogleMaps |
| 価格 | 4,990万円 |
| 交通 | |
| その他費用 | - |
| 間取り | 3SLDK ※S・サービススペースは納戸です |
| 建物面積 | 85.28㎡(約25.79坪) |
| 土地面積 | 88.55㎡(約26.78坪) ※別途私道約20.85㎡有 |
| 築年月 | 2026年03月築(予定) |
| 建物構造 | 鉄筋コンクリート造2階建 |
| 現況 | 未完成 |
| 駐車場 | - |
| 土地権利 | 所有権 |
| 地目 | 宅地 |
| 接道状況 | 南東側: 約 4m (私道) |
| 建ぺい率 | 50% |
| 容積率 | 100% |
| 用途地域 | 第一種低層住居専用地域 |
| 都市計画 | 市街化区域 |
| 建築確認番号 | 第HPA―25―10508―1号 |
| 備考 | - |
| 引渡時期 | 相談 |
| 取引態様 | 仲介 |
| 更新日 | 2026年01月15日 |
| 次回更新予定 | 2026年01月29日 |
| 物件番号 | F80AUA11 |
最新のAI技術を活用した相談サービスです。
お客様一人ひとりのニーズに合わせて最適な情報をご提供します。
リハウスAIチャットの詳しい説明はこちら
GoogleMaps
| スーパー | スーパー三和東林間西口店 約430m(徒歩6分) |
| 公園 | 東林間ふれあい広場 約200m(徒歩3分) |
| 病院 | 医療法人奏健 やまもとクリニック 約460m(徒歩6分) |
| 小学校 | 相模原市立上鶴間小学校 約460m(徒歩6分) |
| 中学校 | 相模原市立東林中学校 約560m(徒歩7分) |
| その他利便施設1 | 東林間駅(小田急 江ノ島線) 約540m(徒歩7分) |
| その他利便施設2 | 中央林間駅(小田急 江ノ島線) 約1340m(徒歩17分) |
| その他利便施設3 | セブンイレブン相模原東林間5丁目店 約540m(徒歩7分) |
| その他利便施設4 | 相模原東林間郵便局 約600m(徒歩8分) |
| その他利便施設5 | クリエイトエス・ディー小田急東林間駅前店 約490m(徒歩7分) |
三井不動産リアルティ株式会社
国土交通大臣(15)第777号
0120-944-131
0120-944-131
物件の売却をご検討の方は、 はやめの査定依頼がおすすめです!
買い替えをご検討の方はこちら0120-944-131

