横浜市旭区今宿南町
相模鉄道本線 鶴ケ峰駅 バス10分 今宿小学校入口 停歩7分
3SLDK
建物面積:80.38㎡
土地面積:98.51㎡
新築
3,680万円



| 物件種別 | 新築戸建 |
| 所在地 | GoogleMaps |
| 交通 | |
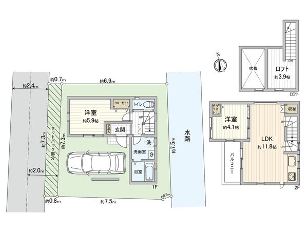
| 間取り | 2LDK |
| 建物面積 | 65.71㎡(約19.87坪) |
| 土地面積 | 60㎡(約18.15坪) ※セットバック約5.91㎡を含む |
| 築年月 | 2026年03月築(予定) |
返済計画を入力すると毎月のお支払い目安を表示できます
■ おすすめポイント ○ 土地面積60平米 建物面積65.71平米の2LDKの新築戸建 ○ 相鉄本線「希望ヶ丘」駅 徒歩5分の好立地 ○ 相鉄本線・相鉄いずみ野線「二俣川」駅 徒歩20分 ○ 全居室2面採光につき、採光・通風に配慮 ○ 第一種低層住居専用地域の閑静な住宅街 ○ 全居室に収納付き ○ あると便利なロフト(約3.9帖)付き ○ 家事時短の住設備が充実 ○ 駐車スペース 1台分(車種による) ○ 教育施設や商業施設が近く、生活利便性良好 ■ 相鉄線~都心直通プロジェクト~ ○ JR直通線(令和元年11月30日開通) 武蔵小杉、目黒、大崎、渋谷、新宿等にアクセス ○ 東急直通線(令和5年3月18日開通) 新横浜、新綱島、日吉等にアクセス 都心へのアクセスがより便利に ■ 担当者より ○ ご見学希望の方はメールフォームまたはフリーコールにて 三井のリハウス二俣川センターまでご連絡ください 皆様からのお問い合わせを心よりお待ちしております
| 所在地 | GoogleMaps |
| 価格 | 3,680万円 |
| 交通 | |
| その他費用 | - |
| 間取り | 2LDK |
| 建物面積 | 65.71㎡(約19.87坪) |
| 土地面積 | 60㎡(約18.15坪) ※セットバック約5.91㎡を含む |
| 築年月 | 2026年03月築(予定) |
| 建物構造 | 木造2階建 |
| 現況 | 未完成 |
| 駐車場 | - |
| 土地権利 | 所有権 |
| 地目 | 宅地 |
| 接道状況 | 北西側: 約 2.4m (公道) |
| 建ぺい率 | 50% |
| 容積率 | 100% |
| 用途地域 | 第一種低層住居専用地域 |
| 都市計画 | 市街化区域 |
| 建築確認番号 | 第25KAK建確01671号 |
| 備考 | ※建物面積に車庫部分10.60平米・備蓄倉庫部分1.59平米含みます。 |
| 引渡時期 | 2026年04月上旬以降 |
| 取引態様 | 仲介 |
| 更新日 | 2026年01月19日 |
| 次回更新予定 | 2026年02月02日 |
| 物件番号 | F82AGA91 |
最新のAI技術を活用した相談サービスです。
お客様一人ひとりのニーズに合わせて最適な情報をご提供します。
リハウスAIチャットの詳しい説明はこちら
GoogleMaps
| スーパー | ロピア希望が丘店 約300m(徒歩4分) |
| 公園 | 東希望が丘第五公園 約260m(徒歩4分) |
| 病院 | 福田医院 約110m(徒歩2分) |
| 小学校 | 横浜市立東希望が丘小学校 約580m(徒歩8分) |
| 中学校 | 横浜市立希望が丘中学校 約570m(徒歩8分) |
| その他利便施設1 | 希望ヶ丘駅(相鉄本線) 約350m(徒歩5分) |
| その他利便施設2 | 二俣川駅(相鉄本線・相鉄いずみ野線) 約1530m(徒歩20分) |
| その他利便施設3 | クリエイトエス・ディー横浜希望が丘店 約240m(徒歩3分) |
| その他利便施設4 | ファミリーマート相鉄希望ヶ丘駅店 約350m(徒歩5分) |
| その他利便施設5 | 希望ケ丘駅前郵便局 約300m(徒歩4分) |
三井不動産リアルティ株式会社
国土交通大臣(15)第777号
0120-993-831
0120-993-831
物件の売却をご検討の方は、 はやめの査定依頼がおすすめです!
買い替えをご検討の方はこちら0120-993-831

