鎌倉市腰越3丁目
江ノ島電鉄 江ノ島駅 徒歩7分
3LDK
建物面積:98.08㎡
土地面積:56.54㎡
2026年07月築(予定)
5,780万円



| 物件種別 | 新築戸建 |
| 所在地 | GoogleMaps |
| 交通 | |
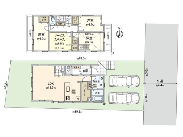
| 間取り | 3SLDK ※S・サービススペースは納戸です |
| 建物面積 | 96.46㎡(約29.17坪) |
| 土地面積 | 123.96㎡(約37.49坪) |
| 築年月 | 2025年11月築 |
返済計画を入力すると毎月のお支払い目安を表示できます
-物件のおすすめポイント- ▼立地 ・江ノ島電鉄「鎌倉高校前」駅 徒歩11分 ・JR東海道本線「藤沢」駅バス21分「腰越中学校入口」停歩5分 ・第一種低層住居専用地域の閑静な住宅街 ・風致地区内の緑豊かな住環境 ▼建物の特徴 ・外壁サイディング張り ・カースペース2台分あり(車種による) ▼お部屋の特徴 ・リビングイン階段採用の3SLDKの間取り ・広々としたLDK約18.5帖 ・季節ものの収納などに便利なロフト付き ・様々な用途で使えるサービススペース ・パントリーやリネン庫などがあり収納豊富 ・2面バルコニー ・全居室2面採光 ・全居室にクローゼットあり ・掃除がしやすい全居室ワックスフリーフローリング仕様 ▼設備 ・家族の様子を見ながら料理ができる対面式キッチン ・浄水器/食洗機 ・シャンプードレッサー ・1・2階トイレ付 ▼周辺環境 ・腰越小学校まで徒歩13分(約990m) ・腰越中学校まで徒歩6分(約480m) ■ ご希望の住まい探しをお手伝いします ━━━━・・・ 物件の詳細・ご相談はお気軽にお問い合わせください。
| 所在地 | GoogleMaps |
| 価格 | 5,780万円 |
| 交通 | |
| その他費用 | - |
| 間取り | 3SLDK ※S・サービススペースは納戸です |
| 建物面積 | 96.46㎡(約29.17坪) |
| 土地面積 | 123.96㎡(約37.49坪) |
| 築年月 | 2025年11月築 |
| 建物構造 | 木造2階建 |
| 現況 | 空家 |
| 駐車場 | 有 |
| 土地権利 | 所有権 |
| 地目 | 宅地 |
| 接道状況 | 東側: 約 4.4m (公道) |
| 建ぺい率 | 40% |
| 容積率 | 80% |
| 用途地域 | 第一種低層住居専用地域 |
| 都市計画 | 市街化区域 |
| 備考 | 第二種風致地区/法22条区域/宅地造成工事規制区域/景観計画区域(丘陵住宅地) |
| 引渡時期 | 相談 |
| 取引態様 | 仲介 |
| 更新日 | 2026年02月02日 |
| 次回更新予定 | 2026年02月16日 |
| 物件番号 | F90AGBB1 |
最新のAI技術を活用した相談サービスです。
お客様一人ひとりのニーズに合わせて最適な情報をご提供します。
リハウスAIチャットの詳しい説明はこちら
GoogleMaps
| スーパー | 業務スーパー津西店 約770m(徒歩10分) |
| 公園 | 腰越かに公園 約130m(徒歩2分) |
| 病院 | 腰越中央医院 約440m(徒歩6分) |
| 病院 | 医療法人社団南浜会 鈴木病院 約620m(徒歩8分) |
| 小学校 | 鎌倉市立腰越小学校 約990m(徒歩13分) |
| 中学校 | 鎌倉市立腰越中学校 約480m(徒歩6分) |
| その他利便施設1 | ヤマザキショップ(Yショップ)丸善店 約570m(徒歩8分) |
| その他利便施設2 | クリエイトS・D 鎌倉津西店 約930m(徒歩12分) |
| その他利便施設3 | 鎌倉津西郵便局 約420m(徒歩6分) |
| その他利便施設4 | 鎌倉市腰越行政センター・腰越図書館 約650m(徒歩9分) |
0120-399-031
0120-399-031
物件の売却をご検討の方は、 はやめの査定依頼がおすすめです!
買い替えをご検討の方はこちら0120-399-031

