横浜市保土ケ谷区仏向町
相模鉄道本線 星川駅 バス5分 栗の沢 停歩5分
4LDK
建物面積:104.34㎡
土地面積:140.43㎡
新築
4,380万円



| 物件種別 | 新築戸建 |
| 所在地 | GoogleMaps |
| 交通 | |
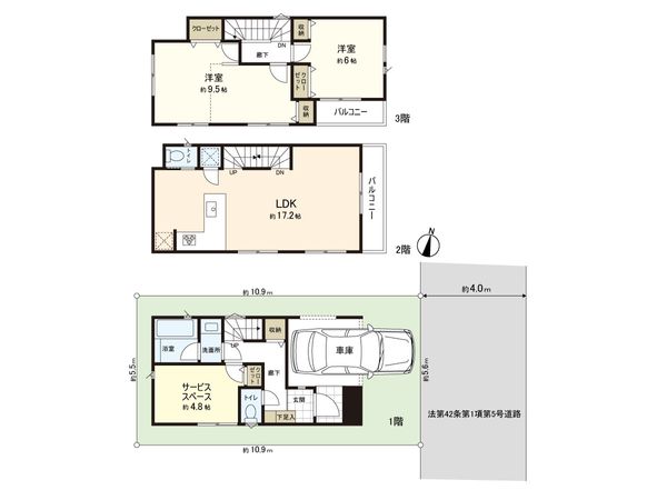
| 間取り | 2SLDK ※S・サービススペースは納戸です |
| 建物面積 | 102.67㎡(約31.05坪) |
| 土地面積 | 61.28㎡(約18.53坪) ※別途私道約11.31㎡有 |
| 築年月 | 2025年11月築(予定) |
返済計画を入力すると毎月のお支払い目安を表示できます
■ おすすめポイント ━━━━━━━━━━━━━━━・・・ ○ 土地面積61.28平米 建物面積102.67平米の2SLDKの新築戸建 ○ 2面バルコニー・全居室2面採光につき、風通し良好 ○ 約17.2帖の広々2階LDK ○ 全居室約6帖以上 ○ 会話が弾む対面式キッチン ○ あると便利な約4.8帖の納戸(サービススペース) ○ 3階の約9.5帖は未来壁で間取り変更も可能(別途費用がかかります) ○ 駐車スペース1台分(車種による) ○ 公園、小・中学校が徒歩4分圏内 子育て環境良好 ○ 生活利便性良好 ■ 担当者より ━━━━━━━━━━━━━━━・・・ 周辺環境や施設のご案内はもちろん、周辺物件も併せてご紹介できます。 また、購入に際しての諸費用、住宅ローン(月々の返済例)等、資金計画のご相談も承っておりますので、ご興味がございましたら下方にございます、「お問合せ」又は「見学予約」よりお問合せ下さい。 お電話でのご相談も受付けておりますので、【三井のリハウス 東戸塚センター】「0120-356-031」までお気軽にお問合せ下さいませ。
| 所在地 | GoogleMaps |
| 価格 | 4,380万円 |
| 交通 | |
| その他費用 | - |
| 間取り | 2SLDK ※S・サービススペースは納戸です |
| 建物面積 | 102.67㎡(約31.05坪) |
| 土地面積 | 61.28㎡(約18.53坪) ※別途私道約11.31㎡有 |
| 築年月 | 2025年11月築(予定) |
| 建物構造 | 木造3階建 |
| 現況 | 未完成 |
| 駐車場 | 有 |
| 土地権利 | 所有権 |
| 地目 | 宅地 |
| 接道状況 | 北東側: 約 4m (私道) |
| 建ぺい率 | 60% |
| 容積率 | 200%(容積率/200%(但し、前面道路幅員により160%に制限されます。)) |
| 用途地域 | 第一種住居地域 |
| 都市計画 | 市街化区域 |
| 建築確認番号 | 第KBI-YKH25-11-1346号 |
| 備考 | ※建物面積に車庫面積10.55平米含む |
| 引渡時期 | 2025年12月下旬以降 |
| 取引態様 | 仲介 |
| 更新日 | 2025年11月13日 |
| 次回更新予定 | 2025年11月27日 |
| 物件番号 | FE2AGA8A |
最新のAI技術を活用した相談サービスです。
お客様一人ひとりのニーズに合わせて最適な情報をご提供します。
GoogleMaps
| スーパー | まいばすけっと権太坂1丁目店 約260m(徒歩4分) |
| スーパー | サミットストア権太坂スクエア店 約450m(徒歩6分) |
| 公園 | 権太坂第一公園 約260m(徒歩4分) |
| 病院 | 川村クリニック 約250m(徒歩4分) |
| 小学校 | 境木小学校 約320m(徒歩4分) |
| 中学校 | 境木中学校 約250m(徒歩4分) |
| その他利便施設1 | ハックドラッグ権太坂スクエア店 約400m(徒歩5分) |
| その他利便施設2 | ローソン権太坂1丁目店 約160m(徒歩2分) |
| その他利便施設3 | 横浜平戸郵便局 約860m(徒歩11分) |
三井不動産リアルティ株式会社
国土交通大臣(15)第777号
0120-356-031
0120-356-031
物件の売却をご検討の方は、 はやめの査定依頼がおすすめです!
買い替えをご検討の方はこちら0120-356-031
