練馬区大泉町2丁目
西武池袋・豊島線 石神井公園駅 バス16分 大泉町2丁目 停歩3分
5LDK
建物面積:104.95㎡
土地面積:116.02㎡
2025年12月築(予定)
5,690万円



| 物件種別 | 新築戸建 |
| 所在地 | GoogleMaps |
| 交通 | 西武池袋・豊島線 大泉学園駅 バス17分 大泉町4丁目 停歩2分 |
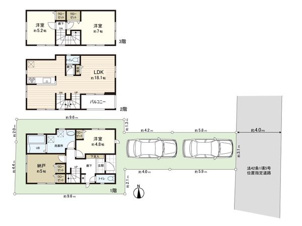
| 間取り | 3SLDK ※S・サービススペースは納戸です |
| 建物面積 | 101.65㎡(約30.74坪) |
| 土地面積 | 95.38㎡(約28.85坪) ※路地状敷地部分約31.8㎡含む ※別途私道約119㎡有 (共有持分 2152/11979) |
| 築年月 | 2025年12月築(予定) |
返済計画を入力すると毎月のお支払い目安を表示できます
■ 交通アクセス ━━━━━━━━━━━━━━・・・・・ 〇 西武池袋線「大泉学園」駅 バス17分 「大泉町4丁目」バス停 徒歩2分 ■ おすすめポイント ━━━━━━━━━━━━━━━・・・・・ ○ 敷地面積 95.38平米(約28.85坪) ○ 建物面積101.65平米(約30.74坪) ○ 豊富な収納スペース(全居室収納) 〇 会話が弾む対面式キッチン(食洗機付き) 〇 LDKは約18帖 ○ トイレ2箇所(1・2F) 〇 駐車スペース2台(車種による制限あり) 〇 スーパーやコンビニ等買い物に便利な立地 〇 小学校・公園が徒歩10分圏内で子育てしやすい環境 ■ 御客様へのメッセージ ━━━━━━━━━━━━━━━・・・・・ この度は物件詳細画面をご覧いただきありがとうございます。 御客様からのお問い合わせを心よりお待ちしております。
| 所在地 | GoogleMaps |
| 価格 | 5,690万円 |
| 交通 | 西武池袋・豊島線 大泉学園駅 バス17分 大泉町4丁目 停歩2分 |
| その他費用 | - |
| 間取り | 3SLDK ※S・サービススペースは納戸です |
| 建物面積 | 101.65㎡(約30.74坪) |
| 土地面積 | 95.38㎡(約28.85坪) ※路地状敷地部分約31.8㎡含む ※別途私道約119㎡有 (共有持分 2152/11979) |
| 築年月 | 2025年12月築(予定) |
| 建物構造 | 木造3階建 |
| 現況 | 未完成 |
| 駐車場 | 有 |
| 土地権利 | 所有権 |
| 地目 | 宅地 |
| 接道状況 | 東側: 約 4m (私道) |
| 建ぺい率 | 60%・50% |
| 容積率 | 200%・100% |
| 用途地域 | 第一種住居地域/第一種低層住居専用地域 |
| 都市計画 | 市街化区域 |
| 建築確認番号 | 第25UDI1W建04300号 |
| 備考 | - |
| 引渡時期 | 2025年12月中旬以降 |
| 取引態様 | 仲介 |
| 更新日 | 2025年11月03日 |
| 次回更新予定 | 2025年11月17日 |
| 物件番号 | FECAGAE1 |
GoogleMaps
| スーパー | 業務スーパー練馬大泉店 約230m(徒歩3分) |
| 公園 | 向下橋公園 約380m(徒歩5分) |
| 小学校 | 区立大泉北小学校 約530m(徒歩7分) |
| 中学校 | 区立大泉北中学校 約870m(徒歩11分) |
| その他利便施設1 | セブンイレブン練馬大泉町4丁目店 約410m(徒歩6分) |
0120-58-1131
0120-58-1131
物件の売却をご検討の方は、 はやめの査定依頼がおすすめです!
買い替えをご検討の方はこちら0120-58-1131
