東大和市清水4丁目
西武多摩湖線 武蔵大和駅 徒歩13分
3LDK
建物面積:83.21㎡
土地面積:83.7㎡
新築
4,190 万円



| 物件種別 | 新築戸建 |
| 所在地 | GoogleMaps |
| 交通 | |
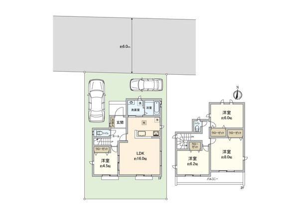
| 間取り | 4LDK |
| 建物面積 | 96.05㎡(約29.05坪) |
| 土地面積 | 120.04㎡(約36.31坪) |
| 築年月 | 2025年08月築 |
返済計画を入力すると毎月のお支払い目安を表示できます
【三井のリハウス久米川センター】 約16.0帖のLDKが一家団欒の中心に、生活利便性と自然の豊かさを享受する邸宅 ■物件名━━━━━━━━━━━━━━━━━・・・・・ 東大和市仲原4丁目 新築戸建 ■所在・交通━━━━━━━━━━━━━━━・・・・・ 西武拝島線「東大和市」駅徒歩18分 西武拝島線 東大和市駅 バス5分 中央二丁目 停歩9分 西武多摩湖線「武蔵大和」駅バス13分、「中央二丁目」停歩約9分 ■おすすめポイント━━━━━━━━━━━━・・・・・ 〇敷地面積120.04平米、建物面積96.05平米 〇南向き陽光にあふれるLDK約16.0帖 〇キッチン・洗面所・浴室と水回りの動線が良好 〇駐車スペース2台分あり※車種に制限あり 〇各居室のクローゼットをはじめ収納機能充実 〇空室につきすぐに内覧・入居可 《子育てに適した住環境》 〇市立第六小学校まで約790m 〇市立第三中学校まで約510m 〇マックスバリュエクスプレス東大和まで約330m 〇セブンイレブン東大和中央店まで約450m 〇ファミリーマート東村山多摩湖町店まで約480m
| 所在地 | GoogleMaps |
| 価格 | 4,190万円 |
| 交通 | |
| その他費用 | - |
| 間取り | 4LDK |
| 建物面積 | 96.05㎡(約29.05坪) |
| 土地面積 | 120.04㎡(約36.31坪) |
| 築年月 | 2025年08月築 |
| 建物構造 | 木造2階建 |
| 現況 | 空家 |
| 駐車場 | 有 |
| 土地権利 | 所有権 |
| 地目 | 宅地 |
| 接道状況 | 北側: 約 6m (公道) |
| 建ぺい率 | 50% |
| 容積率 | 100% |
| 用途地域 | 第一種低層住居専用地域 |
| 都市計画 | 市街化区域 |
| 備考 | - |
| 引渡時期 | 即時 |
| 取引態様 | 仲介 |
| 更新日 | 2025年10月27日 |
| 次回更新予定 | 2025年11月10日 |
| 物件番号 | FM9AGB6A |
GoogleMaps
| スーパー | マックスバリュエクスプレス東大和店 約330m(徒歩5分) |
| 小学校 | 東大和市立第六小学校 約790m(徒歩10分) |
| 中学校 | 東大和市立第三中学校 約510m(徒歩7分) |
| その他利便施設1 | 東大和市駅(西武 拝島線) 約1550m(徒歩20分) |
| その他利便施設2 | セブンイレブン東大和中央店 約450m(徒歩6分) |
0120-00-4131
0120-00-4131
物件の売却をご検討の方は、 はやめの査定依頼がおすすめです!
買い替えをご検討の方はこちら0120-00-4131
