練馬区石神井台1丁目
西武新宿線 上石神井駅 徒歩17分
4LDK
建物面積:105.29㎡
土地面積:82.54㎡
新築
6,780万円



| 物件種別 | 新築戸建 |
| 所在地 | GoogleMaps |
| 交通 | |
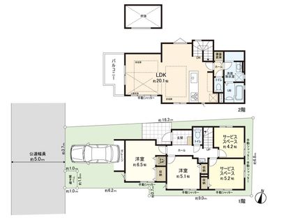
| 間取り | 4LDK |
| 建物面積 | 116.08㎡(約35.11坪) |
| 土地面積 | 70.05㎡(約21.19坪) |
| 築年月 | 2026年02月築(予定) |
返済計画を入力すると毎月のお支払い目安を表示できます
~武蔵関駅徒歩9分 南北両面道路に面した新築戸建~ ~南側遊歩道のため陽当り・眺望良好~ <物件概要> ■ 完成 … 令和8年2月完成予定 ■ 間取り … 4LDK+WIC ■ リビング … 約16.7帖 ■ キッチン … 対面式システムキッチン ■ 全居室にクローゼットあり <おすすめポイント> ■ 全室南北どちらかの道路に面し明るい設計 ■ 南側は石神井川遊歩道沿い(整備中)で、解放的な立地 ■ LDKは約16.7帖とゆったりくつろげる空間 ■ 家事の負担を軽減できる食器洗浄機付キッチン ■ 収納力の高いウォークインクローゼット付 ■ 浴室乾燥機、24時間換気システムで快適 ■ カースペース1台分あり(車種による) <アクセス> ■ 西武新宿線「武蔵関」駅 徒歩9分 ■ バスを使えば、JR中央線「吉祥寺」駅もご利用いただけます。 <担当者より> ■ 資金計画やローンのシミュレーション、その他 不動産購入に関するご相談ございましたら 何なりとお申しつけください。 担当のスタッフが分かりやすく丁寧にご対応致します。
| 所在地 | GoogleMaps |
| 価格 | 6,780万円 |
| 交通 | |
| その他費用 | - |
| 間取り | 4LDK |
| 建物面積 | 116.08㎡(約35.11坪) |
| 土地面積 | 70.05㎡(約21.19坪) |
| 築年月 | 2026年02月築(予定) |
| 建物構造 | 木造3階建 |
| 現況 | 未完成 |
| 駐車場 | - |
| 土地権利 | 所有権 |
| 地目 | 宅地 |
| 接道状況 | - |
| 建ぺい率 | 60% |
| 容積率 | 200% |
| 用途地域 | 第一種中高層住居専用地域 |
| 都市計画 | 市街化区域 |
| 建築確認番号 | 第FBC建確済25―0332号 |
| 備考 | ※前記建物面積は車庫面積11.83平米を含みます。 ※容積率/200%(但し、前面道路幅員により160%に制限されます。) |
| 引渡時期 | 相談 |
| 取引態様 | 仲介 |
| 更新日 | 2025年12月12日 |
| 次回更新予定 | 2025年12月26日 |
| 物件番号 | FP1AGA77 |
最新のAI技術を活用した相談サービスです。
お客様一人ひとりのニーズに合わせて最適な情報をご提供します。
リハウスAIチャットの詳しい説明はこちら
GoogleMaps
| スーパー | サミットストア 石神井台店 約220m(徒歩3分) |
| スーパー | 生鮮市場アキダイ関町本店 約800m(徒歩10分) |
| 公園 | 練馬区立上石神井公園 約250m(徒歩4分) |
| 病院 | 医療法人社団遼山会関町病院 約970m(徒歩13分) |
| 小学校 | 練馬区立石神井台小学校 約650m(徒歩9分) |
| 中学校 | 練馬区立関中学校 約690m(徒歩9分) |
| その他利便施設1 | ファミリーマート石神井台七丁目店 約320m(徒歩4分) |
| その他利便施設2 | セブン-イレブン練馬関町東2丁目店 約370m(徒歩5分) |
| その他利便施設3 | ウェルパーク武蔵関駅前店 約670m(徒歩9分) |
| その他利便施設4 | 武蔵関駅前郵便局 約510m(徒歩7分) |
0120-41-3131
0120-41-3131
物件の売却をご検討の方は、 はやめの査定依頼がおすすめです!
買い替えをご検討の方はこちら0120-41-3131

