板橋区大和町
都営三田線 板橋本町駅 徒歩3分
3SLDK
建物面積:107.99㎡
土地面積:60.37㎡
2026年02月築(予定)
9,480万円



| 物件種別 | 新築戸建 |
| 所在地 | GoogleMaps |
| 交通 | |
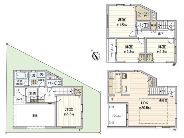
| 間取り | 4LDK |
| 建物面積 | 130.41㎡(約39.44坪) |
| 土地面積 | 78.24㎡(約23.66坪) |
| 築年月 | 2025年11月築 |
予約制内覧会を開催します!
| 開催日 | 12月13日(土)11:00 ~ 16:00 12月14日(日)11:00 ~ 16:00 |
|---|
返済計画を入力すると毎月のお支払い目安を表示できます
三井のリハウスHPをご覧いただきありがとうございます。 板橋区大谷口北町にございます3階建て新築戸建てのご紹介です。 ■おすすめポイント ━━━━━━━━━━━━━━━ ・・・・・ ○3路線利用可能な立地 ○令和7年11月築、建物面積130.41平米 (駐車場面積約13.04平米を含む)、4LDK ○前面道路 北西約8.7m×北東約4mの公道 ■仕様・設備 ━━━━━━━━━━━━━━━ ・・・・・ ○各居室に収納有り ○寝室にウォークインクローゼット有り ○対面式キッチン ○24時間換気システム ○床暖房(LDK部分)
| 所在地 | GoogleMaps |
| 価格 | 9,480万円 |
| 交通 | |
| その他費用 | - |
| 間取り | 4LDK |
| 建物面積 | 130.41㎡(約39.44坪) |
| 土地面積 | 78.24㎡(約23.66坪) |
| 築年月 | 2025年11月築 |
| 建物構造 | 木造3階建 |
| 現況 | 空家 |
| 駐車場 | - |
| 土地権利 | 所有権 |
| 地目 | 宅地 |
| 接道状況 | 北西側: 約 8.7m (公道)、北東側: 約 4m (公道) |
| 建ぺい率 | 80% |
| 容積率 | 300% |
| 用途地域 | 近隣商業地域 |
| 都市計画 | 市街化区域 |
| 備考 | - |
| 引渡時期 | 即時 |
| 取引態様 | 仲介 |
| 更新日 | 2025年12月07日 |
| 次回更新予定 | 2025年12月21日 |
| 物件番号 | FP9ASA01 |
最新のAI技術を活用した相談サービスです。
お客様一人ひとりのニーズに合わせて最適な情報をご提供します。
リハウスAIチャットの詳しい説明はこちら
GoogleMaps
| スーパー | オーケー大谷口店 約450m(徒歩6分) |
| 小学校 | 板橋区立大谷口小学校 約470m(徒歩6分) |
| 中学校 | 板橋区立上板橋第二中学校 約560m(徒歩7分) |
| その他利便施設1 | ファミリーマート板橋大谷口北町店 約190m(徒歩3分) |
| その他利便施設2 | トモズ大谷口店 約110m(徒歩2分) |
0120-150-312
0120-150-312
物件の売却をご検討の方は、 はやめの査定依頼がおすすめです!
買い替えをご検討の方はこちら0120-150-312

