江戸川区鹿骨1丁目
都営新宿線 篠崎駅 徒歩22分
4LDK
建物面積:122.34㎡
土地面積:75㎡
2026年01月築(予定)
6,599万円



| 物件種別 | 新築戸建 |
| 所在地 | GoogleMaps |
| 交通 | 都営新宿線 篠崎駅 徒歩22分 |
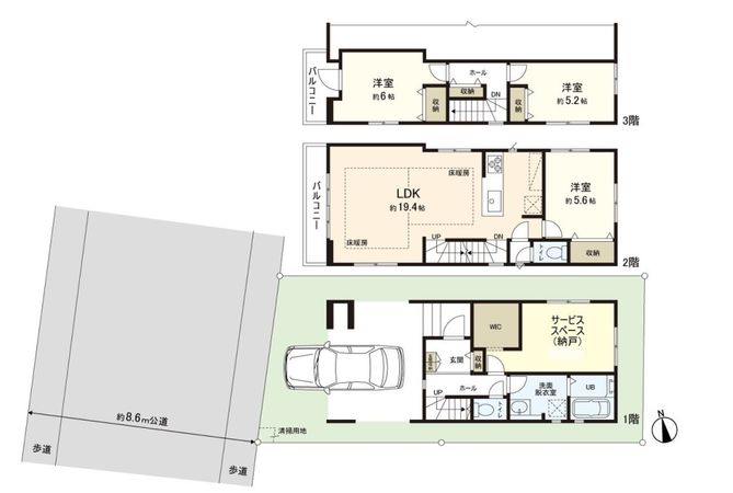
| 間取り | 3SLDK ※S・サービススペースは納戸です |
| 建物面積 | 127.66㎡(約38.61坪) |
| 土地面積 | 85.01㎡(約25.71坪) |
| 築年月 | 2026年01月築(予定) |
返済計画を入力すると毎月のお支払い目安を表示できます
-物件のおすすめポイント- ▼立地 ・都営新宿線「篠崎」駅 徒歩22分 ▼建物の特徴 ・木造3階建の新築戸建です ・建物面積127.66平米3SLDK ・カースペース1台分(車種による)あり ▼設備 ・リビング部分に床暖房あり ・家族との会話が弾む対面キッチン ・1階サービスルームにはウォークインクローゼット付きです ・クローゼット3か所、サービスルームなど収納充実です ▼周辺環境 ・ライフ鹿骨店 徒歩4分(約260m) ・ローソン新堀1丁目店 徒歩3分(約220m) ・ドラッグセイムス江戸川鹿骨店 徒歩9分(約760m) ■ ご希望の住まい探しをお手伝いします ━━━━━・・・ 物件の詳細・ご相談はお気軽にお問い合わせください。
| 所在地 | GoogleMaps |
| 価格 | 6,599万円 |
| 交通 | 都営新宿線 篠崎駅 徒歩22分 |
| その他費用 | - |
| 間取り | 3SLDK ※S・サービススペースは納戸です |
| 建物面積 | 127.66㎡(約38.61坪) |
| 土地面積 | 85.01㎡(約25.71坪) |
| 築年月 | 2026年01月築(予定) |
| 建物構造 | 木造3階建 |
| 現況 | 未完成 |
| 駐車場 | 有 |
| 土地権利 | 所有権 |
| 地目 | 宅地 |
| 接道状況 | 西側: 約 8.6m (公道) |
| 建ぺい率 | 70% |
| 容積率 | 150% |
| 用途地域 | 第一種中高層住居専用地域 |
| 都市計画 | 市街化区域 |
| 建築確認番号 | 第KBIーYKH25―10―1774 |
| 備考 | 建物面積に1階カースペース面積約14.29平米含む 清掃用地持分:0.3平米有 |
| 引渡時期 | 2026年02月中旬以降 |
| 取引態様 | 仲介 |
| 更新日 | 2025年12月08日 |
| 次回更新予定 | 2025年12月22日 |
| 物件番号 | FQ8AGA60 |
最新のAI技術を活用した相談サービスです。
お客様一人ひとりのニーズに合わせて最適な情報をご提供します。
リハウスAIチャットの詳しい説明はこちら
GoogleMaps
| スーパー | ライフ鹿骨店 約260m(徒歩4分) |
| スーパー | まいばすけっと 鹿骨1丁目店 約260m(徒歩4分) |
| 公園 | 新堀1公園 約190m(徒歩3分) |
| 病院 | コウクリニック 約150m(徒歩2分) |
| 小学校 | 江戸川区立鹿骨松本小学校 約890m(徒歩12分) |
| 中学校 | 江戸川区立鹿骨中学校 約760m(徒歩10分) |
| その他利便施設1 | ローソン新堀1丁目店 約220m(徒歩3分) |
| その他利便施設2 | ドラッグセイムス江戸川鹿骨店 約760m(徒歩10分) |
| その他利便施設3 | ドン・キホーテピカソ環七江戸川店 約880m(徒歩11分) |
| その他利便施設4 | 江戸川鹿骨郵便局 約630m(徒歩8分) |
0120-926-531
0120-926-531
物件の売却をご検討の方は、 はやめの査定依頼がおすすめです!
買い替えをご検討の方はこちら0120-926-531

