川越市南大塚1丁目
西武新宿線 南大塚駅 徒歩15分
3LDK
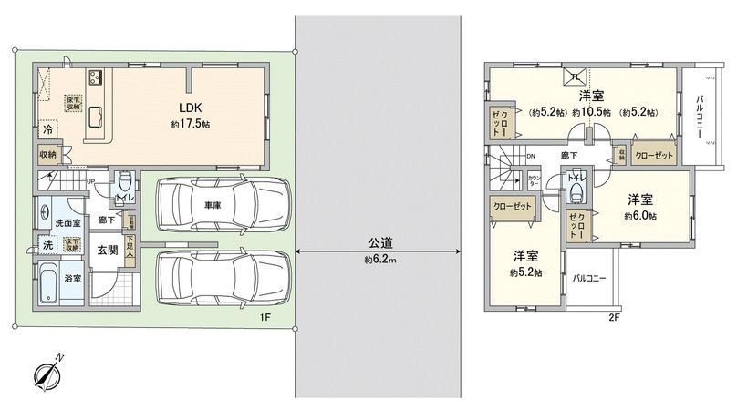
建物面積:84.84㎡
土地面積:102.03㎡
新築
3,898万円



| 物件種別 | 新築戸建 |
| 所在地 | GoogleMaps |
| 交通 | 西武新宿線 南大塚駅 徒歩8分 |
| 間取り | 3LDK |
| 建物面積 | 107.53㎡(約32.52坪) |
| 土地面積 | 100.09㎡(約30.27坪) |
| 築年月 | 2025年10月築 |
返済計画を入力すると毎月のお支払い目安を表示できます
■おすすめポイント━━━━━━━━━━━━━━━・・・・・ ○西武新宿線「南大塚」駅徒歩8分の閑静な住宅街 ○土地面積約100平米、駐車スペース並列2台可(車種による) ○前面約6.2m公道 ○建物面積約107平米の3LDK ○LDKゆとりの約17.5帖 ○長期優良住宅(減税・控除あり) ○4LDKに変更可(間仕切工事要す) ○完成済みにつき、即引渡し可(残金精算後) ■設備・仕様━━━━━━━━━━━━━━━・・・・・ ○会話の弾む対面キッチン、食器洗浄機・水栓一体型浄水器付き ○1坪タイプのユニットバス、浴室暖房換気乾燥機付き ○ハンドシャワー付き洗面化粧台 ○全居室に収納スペース ○全居室フローリング ○トイレ2ヶ所(温水洗浄暖房便座) ○全居室複層ガラス・高断熱サッシ、シャッター雨戸 ○宅配ボックス・TVモニター付きインターフォン ほか
| 所在地 | GoogleMaps |
| 価格 | 3,898万円 |
| 交通 | 西武新宿線 南大塚駅 徒歩8分 |
| その他費用 | - |
| 間取り | 3LDK |
| 建物面積 | 107.53㎡(約32.52坪) |
| 土地面積 | 100.09㎡(約30.27坪) |
| 築年月 | 2025年10月築 |
| 建物構造 | 木造2階建 |
| 現況 | 空家 |
| 駐車場 | 有 |
| 土地権利 | 所有権 |
| 地目 | 宅地 |
| 接道状況 | 北東側: 約 6.2m (公道) |
| 建ぺい率 | 60% |
| 容積率 | 200% |
| 用途地域 | 第一種中高層住居専用地域 |
| 都市計画 | 市街化区域 |
| 備考 | ※住宅性能表示(設計・建設)取得、耐震等級3 ※建物面積に車庫、玄関ポーチ部分約11.06平米を含みます |
| 引渡時期 | 即時 |
| 取引態様 | 仲介 |
| 更新日 | 2025年11月03日 |
| 次回更新予定 | 2025年11月17日 |
| 物件番号 | FR4AGB2A |
GoogleMaps
| スーパー | いなげや川越南大塚駅前店 約600m(徒歩8分) |
| 公園 | 南台ふじみ公園 約450m(徒歩6分) |
| 病院 | 杉本内科クリニック 約680m(徒歩9分) |
| 病院 | ありやまクリニック 約920m(徒歩12分) |
| 小学校 | 大東東小学校 約2060m(徒歩26分) |
| 中学校 | 大東中学校 約1170m(徒歩15分) |
| その他利便施設1 | 西武新宿線「南大塚」駅南口 約600m(徒歩8分) |
| その他利便施設2 | ウェルパーク川越南大塚東店 約250m(徒歩4分) |
| その他利便施設3 | セブンイレブン川越南大塚4丁目店 約200m(徒歩3分) |
| その他利便施設4 | ファミリーマート川越南大塚店 約370m(徒歩5分) |
三井不動産リアルティ株式会社
国土交通大臣(15)第777号
0120-71-3131
0120-71-3131
物件の売却をご検討の方は、 はやめの査定依頼がおすすめです!
買い替えをご検討の方はこちら0120-71-3131
