横浜市都筑区荏田南3丁目
東急田園都市線 市が尾駅 徒歩18分
4LDK
建物面積:114.48㎡
土地面積:166.01㎡
新築
7,490万円



| 物件種別 | 新築戸建 |
| 所在地 | GoogleMaps |
| 交通 | |
| 間取り | 4LDK |
| 建物面積 | 105.98㎡(約32.05坪) |
| 土地面積 | 146.63㎡(約44.35坪) |
| 築年月 | 2025年11月築 |
返済計画を入力すると毎月のお支払い目安を表示できます
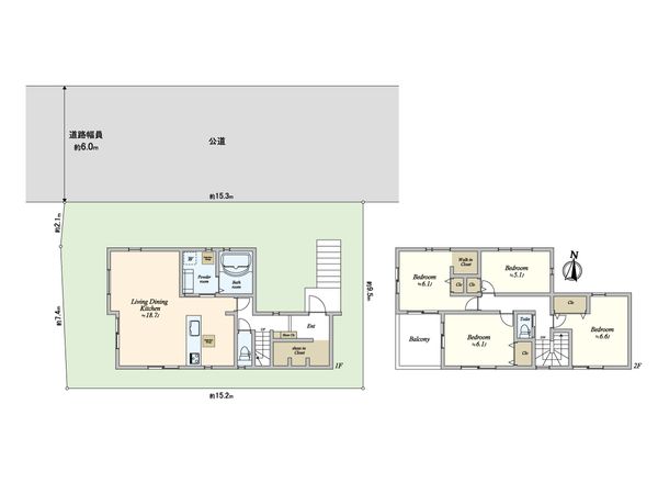
■アクセス ━━━━━━━━━━━━━━━・・・・・ 〇 東急田園都市線『市が尾』駅 徒歩18分 〇 横浜市営地下鉄グリーンライン線『都筑ふれあいの丘』駅 徒歩19分 ■おすすめポイント ━━━━━━━━━━━━・・・・・ 〇 令和7年11月末完成 〇 土地面積:146.63平米 〇 建物面積:105.98平米 〇 間取りは4LDK+カースペース1台有り(車種による) 〇 北側約6m公道に約15.3m接道 〇 約18.7帖のゆとりのLDK 〇 シューズインクローゼット、ウォークインクローゼットあり 〇 2階バルコニーは奥行き約2.2m、約6.2平米あり眺望良好 〇 使い勝手の良い対面システムキッチン 〇 洗面室がキッチンに近く家事動線良好 〇 浴室は浴室換気乾燥機付 〇 キッチンにはビルトイン浄水器・食洗機付キッチン 〇 トイレはINAXのシャワートイレ 〇 テレビモニター付きインターフォン 〇 近隣に公園あり 〇 第一種低層住居専用地域につき、閑静な住宅街
| 所在地 | GoogleMaps |
| 価格 | 7,490万円 |
| 交通 | |
| その他費用 | - |
| 間取り | 4LDK |
| 建物面積 | 105.98㎡(約32.05坪) |
| 土地面積 | 146.63㎡(約44.35坪) |
| 築年月 | 2025年11月築 |
| 建物構造 | 木造2階建 |
| 現況 | 空家 |
| 駐車場 | 有 |
| 土地権利 | 所有権 |
| 地目 | 宅地 |
| 接道状況 | 北側: 約 6m (公道) |
| 建ぺい率 | 40% |
| 容積率 | 80% |
| 用途地域 | 第一種低層住居専用地域 |
| 都市計画 | 市街化区域 |
| 備考 | - |
| 引渡時期 | 相談 |
| 取引態様 | 仲介 |
| 更新日 | 2026年02月05日 |
| 次回更新予定 | 2026年02月19日 |
| 物件番号 | FSEAGA38 |
最新のAI技術を活用した相談サービスです。
お客様一人ひとりのニーズに合わせて最適な情報をご提供します。
リハウスAIチャットの詳しい説明はこちら
GoogleMaps
| スーパー | ハーモス荏田 約1300m(徒歩17分) |
| スーパー | 業務スーパー荏田西店 約480m(徒歩6分) |
| 公園 | 泉田向公園 約180m(徒歩3分) |
| 小学校 | 横浜市立荏田南小学校 約550m(徒歩7分) |
| 中学校 | 横浜市立荏田南中学校 約500m(徒歩7分) |
| その他利便施設1 | ファミリーマート荏田西四丁目店 約630m(徒歩8分) |
| その他利便施設2 | クリエイトエス・ディー荏田南店 約1000m(徒歩13分) |
三井不動産リアルティ株式会社
国土交通大臣(15)第777号
0120-907-431
0120-907-431
物件の売却をご検討の方は、 はやめの査定依頼がおすすめです!
買い替えをご検討の方はこちら0120-907-431

