天王寺区舟橋町 戸建
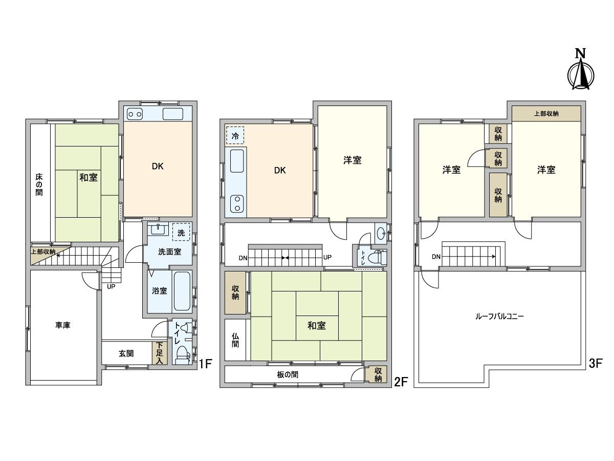
5DK/157.32㎡(約47.58坪)
6,200 万円



物件情報
おすすめポイント
周辺情報
取扱店舗
| 物件種別 | 中古戸建 |
| 所在地 | GoogleMaps |
| 交通 | |
| 間取り | 5DK |
| 建物面積 | 157.32㎡(約47.58坪) |
| 土地面積 | 77.96㎡(約23.58坪) ※別途私道約13.3㎡有 |
| 築年月 | 1973年06月築 |
この物件情報を共有する
毎月のお支払い目安
返済計画を入力すると毎月のお支払い目安を表示できます
- ローン 175,017円
- 管理費+修繕積立金 0円
- その他費用 0円
お支払い目安 175,017円
おすすめポイント
大阪市天王寺区舟橋町 戸建 ■おすすめポイント ○大阪メトロ千日前線「鶴橋」駅 徒歩2分 JR大阪環状線「鶴橋」 徒歩3分 近鉄難波・奈良線「鶴橋」駅 徒歩3分 ○土地面積:77.96平米 ○建物面積:157.32平米 ○南向き道路に面す ○間口6.8mあり ○建て替え用地としてもご検討いただけます
物件情報
| 所在地 | GoogleMaps |
| 価格 | 6,200万円 |
| 交通 | |
| その他費用 | - |
| 間取り | 5DK |
| 建物面積 | 157.32㎡(約47.58坪) |
| 土地面積 | 77.96㎡(約23.58坪) ※別途私道約13.3㎡有 |
| 築年月 | 1973年06月築 |
| 建物構造 | 軽量鉄骨造3階建 |
| 現況 | 居住中 |
| 駐車場 | - |
| 土地権利 | 所有権 |
| 地目 | 宅地 |
| 接道状況 | 南側: 約 4m (私道) |
| 建ぺい率 | 80% |
| 容積率 | 400%(但し、前面道路幅員により240%に制限されます。) |
| 用途地域 | 商業地域 |
| 都市計画 | 市街化区域 |
| 備考 | - |
| 引渡時期 | 相談 |
| 取引態様 | 仲介 |
| 更新日 | 2025年10月23日 |
| 次回更新予定 | 2025年11月06日 |
| 物件番号 | FSLASA07 |
周辺情報
GoogleMaps
| スーパー | コノミヤ鶴橋駅前店 約460m(徒歩6分) |
| スーパー | デイリーカナートイズミヤ玉造店 約600m(徒歩8分) |
| 公園 | 東小橋公園 約550m(徒歩7分) |
| 小学校 | 大阪市立味原小学校 約230m(徒歩3分) |
| その他利便施設1 | 鶴橋駅(OsakaMetro千日前線) 約160m(徒歩2分) |
| その他利便施設2 | 鶴橋駅(JR大阪環状線) 約240m(徒歩3分) |
| その他利便施設3 | 鶴橋駅(近鉄奈良線・大阪線) 約240m(徒歩3分) |
| その他利便施設4 | ファミリーマート鶴橋駅北店 約260m(徒歩4分) |
| その他利便施設5 | マツモトキヨシ鶴橋駅前店 約230m(徒歩3分) |
| その他利便施設6 | 東成鶴橋駅前郵便局 約280m(徒歩4分) |
取扱店舗
三井のリハウス 上本町センター
- 営業時間
- 10:00~18:00
- 定休日
- 毎週火曜日・水曜日
- 住所
- 大阪府大阪市天王寺区上本町6-9-17上六日光ビル10F
三井不動産リアルティ株式会社
国土交通大臣(15)第777号
三井のリハウス 上本町センター
- 営業時間10:00~18:00
- 定休日毎週火曜日・水曜日
0120-9881-77
大阪市天王寺区の物件情報
この物件を見学してみませんか?
この物件についてお問い合わせ
物件・住環境の詳しい情報、購入・ローン相談など、ささいなことでもお気軽にお問い合わせください。三井のリハウス 上本町センター
- 営業時間10:00~18:00
- 定休日毎週火曜日・水曜日
0120-9881-77

物件の売却をご検討の方は、 はやめの査定依頼がおすすめです!
買い替えをご検討の方はこちら見学予約
お問い合わせ
0120-9881-77
- 営業時間 10:00~18:00
- 定休日 毎週火曜日・水曜日
