箕面市森町中2丁目
北大阪急行南北線 箕面萱野駅 バス24分 森町中二丁目 停歩4分
3LDK
建物面積:123.54㎡
土地面積:175.51㎡
2008年03月築
3,580 万円



| 物件種別 | 中古戸建 |
| 所在地 | GoogleMaps |
| 交通 | 北大阪急行南北線 箕面萱野駅 バス23分 森町中三丁目 停歩4分 |
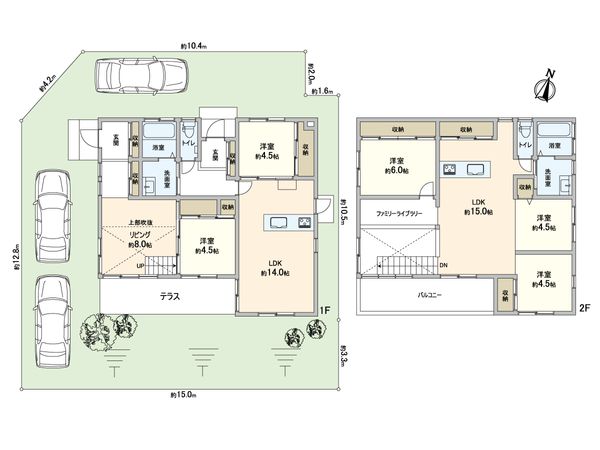
| 間取り | 5LDK |
| 建物面積 | 149.05㎡(約45.08坪) |
| 土地面積 | 229.71㎡(約69.48坪) |
| 築年月 | 2011年02月築 |
返済計画を入力すると毎月のお支払い目安を表示できます
-物件のおすすめポイント- ▼立地 ・北大阪急行南北線「箕面萱野駅」バス23分 「森町中3丁目」停歩4分 ・緑豊かで閑静な住宅街 ・北西、南西の角地 ・陽当り、通風良好 ▼特徴 ・株式会社新名工務店「無印良品の家」 ・木造2階建 ・5LDK+駐車スペース3台分の二世帯住宅 ・玄関2か所に分かれています ・土地面積:229.71平米(約69.48坪) ■ ご希望の住まい探しをお手伝いします ━━━━━・・・ 物件の詳細・ご相談はお気軽にお問い合わせください。
| 所在地 | GoogleMaps |
| 価格 | 3,580万円 |
| 交通 | 北大阪急行南北線 箕面萱野駅 バス23分 森町中三丁目 停歩4分 |
| その他費用 | - |
| 間取り | 5LDK |
| 建物面積 | 149.05㎡(約45.08坪) |
| 土地面積 | 229.71㎡(約69.48坪) |
| 築年月 | 2011年02月築 |
| 建物構造 | 木造2階建 |
| 現況 | 居住中 |
| 駐車場 | - |
| 土地権利 | 所有権 |
| 地目 | 宅地 |
| 接道状況 | 北西側: 約 6.6m (公道)、南西側: 約 6.6m (公道) |
| 建ぺい率 | 50% |
| 容積率 | 100% |
| 用途地域 | 第一種低層住居専用地域 |
| 都市計画 | 市街化区域 |
| 備考 | 宅地造成および特定盛土等規制法、法第22条区域 |
| 引渡時期 | 相談 |
| 取引態様 | 仲介 |
| 更新日 | 2025年10月27日 |
| 次回更新予定 | 2025年11月10日 |
| 物件番号 | FXBASA1B |
GoogleMaps
| 公園 | 森の丘公園 約30m(徒歩1分) |
三井不動産リアルティ株式会社
国土交通大臣(15)第777号
0120-31-5431
0120-31-5431
物件の売却をご検討の方は、 はやめの査定依頼がおすすめです!
買い替えをご検討の方はこちら0120-31-5431
