可動間仕切り有りの大阪府 高槻市の一戸建て購入情報
設備から物件を探したい方へ。大阪府 高槻市の可動間仕切り有りの一戸建てを集めました。
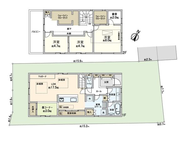
中古戸建



高槻市南平台1丁目・一戸建
4,980万円
高槻市南平台1丁目 / 東海道本線(米原~神戸) 高槻駅 バス9分 南平台東 停歩1分
3LDK / 建物115.02㎡ / 土地145.05㎡ / 2017年11月築
高槻市の物件情報
他の都道府県から探す
人気の価格帯・立地・特徴から探す
マンションライブラリー
マンションライブラリー
全国で分譲されたマンションをご紹介
全国で分譲された7万棟超のマンションを エリアごとにご紹介します。売り出し中・ 貸し出し中の物件情報も掲載しております。

不動産売却で失敗しないためのポイント
不動産売却に関するお問い合わせ
無料査定で価格をチェック!
まずは気軽に無料査定。業界最大級のネットワークを誇る三井のリハウスがご提案いたします。リハウスAI査定
豊富な取引実績をもとにご所有不動産の推定成約価格※を即時にAIで査定します。 ※当社保有データから機械的に算出した参考価格です
