世田谷区等々力8丁目
東急大井町線 等々力駅 徒歩11分
4LDK
建物面積:111.1㎡
土地面積:74.37㎡
2001年03月築
11,980万円



| 物件種別 | 中古戸建 |
| 所在地 | GoogleMaps |
| 交通 | |
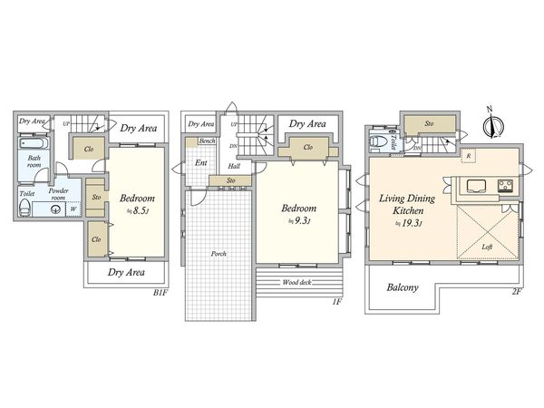
| 間取り | 2LDK |
| 建物面積 | 98.57㎡(約29.81坪) |
| 土地面積 | 76.04㎡(約23坪) |
| 築年月 | 2001年09月築 |
返済計画を入力すると毎月のお支払い目安を表示できます
■ アクセス(3駅利用可能) ○ 東急大井町線「尾山台」駅 徒歩7分 ○ 東急大井町線「等々力」駅 徒歩12分 ○ 東急大井町線「九品仏」駅 徒歩12分 ■ おすすめポイント ○ 建物面積98.57平米(約29.81坪) ○ 土地面積76.04平米(約23.00坪) ○ 約19.3帖の開放的なLDK ○ 開口部が多く明るい室内 ○ クローゼット3か所、ロフト等収納スペース充実 ○ 地下にはドライエリアがあり、天候に左右されずお洗濯が可能 ○ トイレ2か所あり(地下1階・2階) ○ 駐車スペースあり(車種・サイズによる) ■ 室内リフォーム内容(令和7年6月) ○ フローリング上張 ○ フロアタイル張替(玄関) ○ クロス貼替 ○ 洗面化粧台交換 ○ 照明交換 ○ ダウンライト設置 ○ ハウスクリーニング 等
| 所在地 | GoogleMaps |
| 価格 | 11,980万円 |
| 交通 | |
| その他費用 | - |
| 間取り | 2LDK |
| 建物面積 | 98.57㎡(約29.81坪) |
| 土地面積 | 76.04㎡(約23坪) |
| 築年月 | 2001年09月築 |
| 建物構造 | 木造2階 地下1階建 |
| 現況 | 空家 |
| 駐車場 | - |
| 土地権利 | 所有権 |
| 地目 | 宅地 |
| 接道状況 | 南側: 約 4m (私道) |
| 建ぺい率 | 50% |
| 容積率 | 100% |
| 用途地域 | 第一種低層住居専用地域 |
| 都市計画 | 市街化区域 |
| 備考 | - |
| 引渡時期 | 即時 |
| 取引態様 | 仲介 |
| 更新日 | 2025年11月28日 |
| 次回更新予定 | 2025年12月12日 |
| 物件番号 | F08AGAC8 |
最新のAI技術を活用した相談サービスです。
お客様一人ひとりのニーズに合わせて最適な情報をご提供します。
リハウスAIチャットの詳しい説明はこちら
GoogleMaps
| スーパー | スーパーオオゼキ尾山台店 約400m(徒歩5分) |
| 公園 | 世田谷区立ねこじゃらし公園 約390m(徒歩5分) |
| 病院 | 健内科クリニック 約560m(徒歩7分) |
| 小学校 | 等々力小学校 約940m(徒歩12分) |
| 中学校 | 尾山台中学校 約560m(徒歩7分) |
| その他利便施設1 | ファミリーマート等々力四丁目店 約300m(徒歩4分) |
| その他利便施設2 | ココカラファイン尾山台店 約640m(徒歩8分) |
| その他利便施設3 | 尾山台駅前郵便局 約450m(徒歩6分) |
0120-994-431
0120-994-431
物件の売却をご検討の方は、 はやめの査定依頼がおすすめです!
買い替えをご検討の方はこちら0120-994-431

