世田谷区下馬1丁目
東急東横線 祐天寺駅 徒歩9分
3SLDK
建物面積:134.94㎡
土地面積:79.74㎡
新築
19,800万円



| 物件種別 | 中古戸建 |
| 所在地 | GoogleMaps |
| 交通 | |
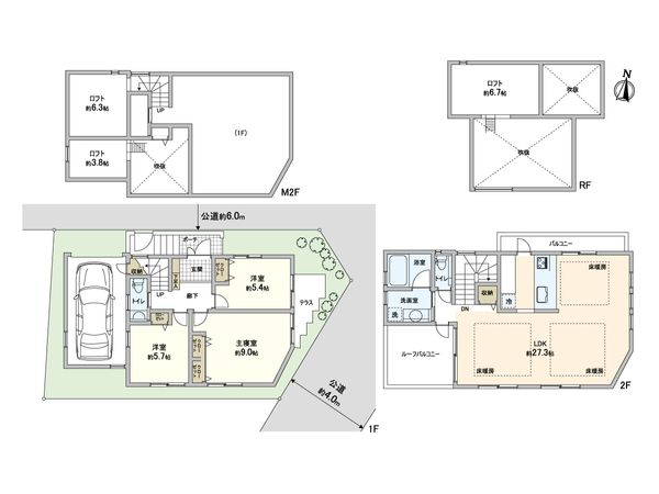
| 間取り | 3LDK |
| 建物面積 | 124.09㎡(約37.53坪) |
| 土地面積 | 109.1㎡(約33坪) |
| 築年月 | 2018年06月築 |
予約制内覧会を開催します!
| 開催日 | 4月16日(木)10:00 ~ 17:00 4月17日(金)10:00 ~ 17:00 4月18日(土)10:00 ~ 17:00 4月19日(日)10:00 ~ 17:00 4月20日(月)10:00 ~ 17:00 |
|---|
■アクセス・・・ ○東急東横線「都立大学」駅徒歩15分 ○東急東横線・東急大井町線「自由が丘」駅徒歩18分 ■おすすめポイント・・・・ 〇第一種低層住居専用地域の閑静な住宅街 ○角地につき陽当り・眺望・通風良好 ○広々とした約27.3帖のリビングダイニングキッチン ○天井高4.4m以上の吹抜の開放感あるリビングダイニング ○各居室収納・ロフト3箇所等豊富な収納スペースあり 〇肩湯機能付システムバス(浴室換気乾燥暖房機能・テレビ付) 〇対面式システムキッチン ○床暖房あり(リビングダイニングキッチン部分) ○トイレ2か所 ○カラーモニター付インターホン 〇電動シャッター付ビルトインガレージ(車種に制限有) ○不在時に便利な宅配ボックス
| 所在地 | GoogleMaps |
| 価格 | 19,800万円 |
| 交通 | |
| その他費用 | - |
| 間取り | 3LDK |
| 建物面積 | 124.09㎡(約37.53坪) |
| 土地面積 | 109.1㎡(約33坪) |
| 築年月 | 2018年06月築 |
| 建物構造 | 木造2階建 |
| 現況 | 空家 |
| 駐車場 | 有 |
| 土地権利 | 所有権 |
| 地目 | 宅地 |
| 接道状況 | 北側: 約 6m (公道)、南東側: 約 4m (公道) |
| 建ぺい率 | 50% |
| 容積率 | 100% |
| 用途地域 | 第一種低層住居専用地域 |
| 都市計画 | 市街化区域 |
| 備考 | - |
| 引渡時期 | 即時 |
| 取引態様 | 仲介 |
| 更新日 | 2026年04月03日 |
| 次回更新予定 | 2026年04月17日 |
| 物件番号 | F08BCA01 |
最新のAI技術を活用した相談サービスです。
お客様一人ひとりのニーズに合わせて最適な情報をご提供します。
リハウスAIチャットの詳しい説明はこちら
GoogleMaps
| スーパー | ライフ目黒八雲店 約610m(徒歩8分) |
| 公園 | 宮前公園 約110m(徒歩2分) |
| 病院 | 深沢1丁目クリニック 約350m(徒歩5分) |
| 小学校 | 東深沢小学校 約690m(徒歩9分) |
| 中学校 | 東深沢中学校 約1110m(徒歩14分) |
| その他利便施設1 | ファミリーマート深沢二丁目店 約310m(徒歩4分) |
| その他利便施設2 | くすりセイジョー深沢店 約550m(徒歩7分) |
| その他利便施設3 | 目黒八雲二郵便局 約460m(徒歩6分) |
0120-994-431
0120-994-431
物件の売却をご検討の方は、 はやめの査定依頼がおすすめです!
買い替えをご検討の方はこちら0120-994-431

