世田谷区深沢3丁目
東急大井町線 尾山台駅 徒歩14分
1K
建物面積:456.46㎡
土地面積:311.8㎡
1987年12月築
31,000万円



| 物件種別 | 中古戸建 |
| 所在地 | GoogleMaps |
| 交通 | |
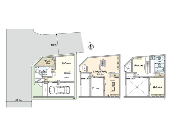
| 間取り | 3LDK |
| 建物面積 | 162.32㎡(約49.1坪) |
| 土地面積 | 100.2㎡(約30.31坪) |
| 築年月 | 2006年06月築 |
■アクセス・・・ ○東急東横線「都立大学」駅徒歩19分 ○東急東横線・東急大井町線「自由が丘」駅徒歩19分 ■おすすめポイント・・・・ 〇第一種低層住居専用地域の閑静な住宅街 ○角地につき陽当り・通風良好 ○広々としたリビングダイニングキッチン ○ウォークインクローゼット等豊富な収納スペースあり 〇対面式アイランドキッチン ○トイレ2か所 〇駐車スペース有(1台・車種による制限有)
| 所在地 | GoogleMaps |
| 価格 | 31,000万円 |
| 交通 | |
| その他費用 | - |
| 間取り | 3LDK |
| 建物面積 | 162.32㎡(約49.1坪) |
| 土地面積 | 100.2㎡(約30.31坪) |
| 築年月 | 2006年06月築 |
| 建物構造 | 鉄筋コンクリート造2階 地下1階建 |
| 現況 | 居住中 |
| 駐車場 | 有 |
| 土地権利 | 所有権 |
| 地目 | 宅地 |
| 接道状況 | 北側: 約 6m (公道)、西側: 約 5.9m (公道) |
| 建ぺい率 | 50% |
| 容積率 | 100% |
| 用途地域 | 第一種低層住居専用地域 |
| 都市計画 | 市街化区域 |
| 備考 | - |
| 引渡時期 | 2027年06月下旬以降 |
| 取引態様 | 仲介 |
| 更新日 | 2026年04月20日 |
| 次回更新予定 | 2026年05月04日 |
| 物件番号 | F08BTA1D |
最新のAI技術を活用した相談サービスです。
お客様一人ひとりのニーズに合わせて最適な情報をご提供します。
リハウスAIチャットの詳しい説明はこちら
GoogleMaps
| スーパー | 西友深沢目黒通り店 約430m(徒歩6分) |
| スーパー | ライフ目黒八雲店 約670m(徒歩9分) |
| 病院 | 唐沢内科医院 約170m(徒歩3分) |
| 小学校 | 世田谷区立東深沢小学校 約550m(徒歩7分) |
| 中学校 | 世田谷区立東深沢中学校 約880m(徒歩11分) |
| その他利便施設1 | ファミリーマート深沢二丁目店 約330m(徒歩5分) |
| その他利便施設2 | セブンイレブン世田谷深沢店 約360m(徒歩5分) |
| その他利便施設3 | くすりセイジョー深沢店 約290m(徒歩4分) |
| その他利便施設4 | クリエイトエス・ディー目黒八雲店 約500m(徒歩7分) |
| その他利便施設5 | 世田谷深沢一郵便局 約460m(徒歩6分) |
0120-994-431
0120-994-431
物件の売却をご検討の方は、 はやめの査定依頼がおすすめです!
買い替えをご検討の方はこちら0120-994-431

