世田谷区代沢1丁目
京王電鉄井の頭線 池ノ上駅 徒歩9分
4LDK
建物面積:138.3㎡
土地面積:106.8㎡
2003年02月築
25,500万円



| 物件種別 | 中古戸建 |
| 所在地 | GoogleMaps |
| 交通 | |
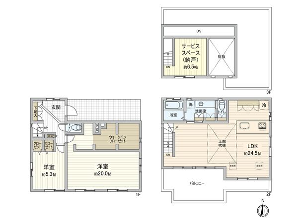
| 間取り | 2SLDK ※S・サービススペースは納戸です |
| 建物面積 | 129.06㎡(約39.04坪) |
| 土地面積 | 161.4㎡(約48.82坪) |
| 築年月 | 2007年01月築 |
■ アクセス・・・・・ ○ 京王井の頭線「東松原」駅 徒歩3分 ○ 京王井の頭線「明大前」駅 徒歩10分 ■ 物件概要・・・・・ ○ 第一種低層住居専用地域内の閑静な住宅街 ○ 旭化成施工の高品質ヘーベルハウス ○ 2LDK+S+WIC+カースペース(1台分サイズ制限有り) ○ 南東角地 ○ 南東側道路 約4.5m(公道) ○ 小・中学校が徒歩10分圏内にあり、子育て環境良好 ■ 設備・仕様・・・・・ ○ 床暖房(リビング部分) ○ ウォークインクローゼット(約8帖)
| 所在地 | GoogleMaps |
| 価格 | 25,500万円 |
| 交通 | |
| その他費用 | - |
| 間取り | 2SLDK ※S・サービススペースは納戸です |
| 建物面積 | 129.06㎡(約39.04坪) |
| 土地面積 | 161.4㎡(約48.82坪) |
| 築年月 | 2007年01月築 |
| 建物構造 | 軽量鉄骨造3階建 |
| 現況 | 居住中 |
| 駐車場 | - |
| 土地権利 | 所有権 |
| 地目 | 宅地 |
| 接道状況 | 南側: 約 4.5m (公道)、東側: 約 4.5m (公道) |
| 建ぺい率 | 60% |
| 容積率 | 150% |
| 用途地域 | 第一種低層住居専用地域 |
| 都市計画 | 市街化区域 |
| 備考 | - |
| 引渡時期 | 相談 |
| 取引態様 | 仲介 |
| 更新日 | 2026年04月20日 |
| 次回更新予定 | 2026年05月04日 |
| 物件番号 | F10BTA08 |
最新のAI技術を活用した相談サービスです。
お客様一人ひとりのニーズに合わせて最適な情報をご提供します。
リハウスAIチャットの詳しい説明はこちら
GoogleMaps
| 小学校 | 世田谷区立松原小学校 約520m(徒歩7分) |
| 中学校 | 世田谷区立梅丘中学校 約800m(徒歩10分) |
| その他利便施設1 | 東松原駅(京王電鉄井の頭線) 約220m(徒歩3分) |
| その他利便施設2 | 明大前駅(京王線・井の頭線) 約780m(徒歩10分) |
| その他利便施設3 | セブンイレブン世田谷羽根木店 約310m(徒歩4分) |
| その他利便施設4 | セブンイレブン東松原駅前店 約240m(徒歩3分) |
| その他利便施設5 | ココカラファイン東松原店 約300m(徒歩4分) |
| その他利便施設6 | 東松原駅前郵便局 約340m(徒歩5分) |
0120-924-031
0120-924-031
物件の売却をご検討の方は、 はやめの査定依頼がおすすめです!
買い替えをご検討の方はこちら0120-924-031

