国立市西2丁目
中央本線 国立駅 徒歩17分
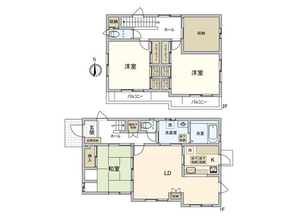
3SLDK
建物面積:118.45㎡
土地面積:87.07㎡
2019年02月築
7,980万円



| 物件種別 | 中古戸建 |
| 所在地 | GoogleMaps |
| 交通 | |
| 間取り | 3LDK |
| 建物面積 | 104.74㎡(約31.68坪) |
| 土地面積 | 169.96㎡(約51.41坪) |
| 築年月 | 1999年01月築 |
■ アクセス ○ JR中央本線「国立」駅 徒歩22分 ○ JR南武線「矢川」駅 徒歩8分 ■ おすすめポイント ○ ミサワホーム旧施工の注文住宅 ○ 北西角地 ○ 土地面積:169.96平米 ○ 建物面積:104.74平米 ○ 大型ウォークインクローゼット有り ○ 各居室にも豊富な収納スペース有り ○ 南向きの続きバルコニーは2部屋から行き来できます ■ ご自宅の『売却』も三井のリハウスにお任せください ・「売却が先か購入が先か」買替えたいけど、何から始めたら良いのか分からない。 ・所有不動産の相場を把握しておきたい。 ・自宅の住宅ローンが残っているので、無理のない資金計画を相談したい。 お住まいの購入から売却まで、お客様のご事情に合わせてトータルサポートいたします。 まずはフリーコールにて、ご所有不動産の概要をお申し付けください。 『無料査定のお申込みは』 フリーコール 0120-323-085
| 所在地 | GoogleMaps |
| 価格 | 7,980万円 |
| 交通 | |
| その他費用 | - |
| 間取り | 3LDK |
| 建物面積 | 104.74㎡(約31.68坪) |
| 土地面積 | 169.96㎡(約51.41坪) |
| 築年月 | 1999年01月築 |
| 建物構造 | 木造2階建 |
| 現況 | 居住中 |
| 駐車場 | 有 |
| 土地権利 | 所有権 |
| 地目 | 宅地 |
| 接道状況 | 北側: 約 5m (公道)、西側: 約 4m (公道) |
| 建ぺい率 | 50% |
| 容積率 | 100% |
| 用途地域 | 第一種低層住居専用地域 |
| 都市計画 | 市街化区域 |
| 備考 | - |
| 引渡時期 | 相談 |
| 取引態様 | 仲介 |
| 更新日 | 2026年04月16日 |
| 次回更新予定 | 2026年04月30日 |
| 物件番号 | F25BAA03 |
最新のAI技術を活用した相談サービスです。
お客様一人ひとりのニーズに合わせて最適な情報をご提供します。
リハウスAIチャットの詳しい説明はこちら
GoogleMaps
| スーパー | フーズ マーケット さえき 国立さくら通り店 約400m(徒歩5分) |
| スーパー | ina21国立矢川駅前店 約650m(徒歩9分) |
| 公園 | 谷保第六公園 約450m(徒歩6分) |
| 公園 | 都営国立西三丁目遊園 約50m(徒歩1分) |
| 小学校 | 国立第二小学校 約700m(徒歩9分) |
| 中学校 | 国立第二中学校 約260m(徒歩4分) |
| その他利便施設1 | 国立市立西保育園 約160m(徒歩2分) |
| その他利便施設2 | ウェルパーク薬局国立矢川店 約550m(徒歩7分) |
| その他利便施設3 | ローソン 国立さくら通店 約280m(徒歩4分) |
0120-323-085
リノベーション工事の可能範囲については、本物件の管理組合規約等により一定の制限が加わる場合がございます。詳細については、工事内容の確定後に判明する部分もありますので、この点については事前にお含みおきください。
リノベーションに関するお問い合わせ0120-323-085
物件の売却をご検討の方は、 はやめの査定依頼がおすすめです!
買い替えをご検討の方はこちら0120-323-085

