府中市本町2丁目 戸建
3,999万円



| 物件種別 | 中古戸建 |
| 所在地 | GoogleMaps |
| 交通 | |
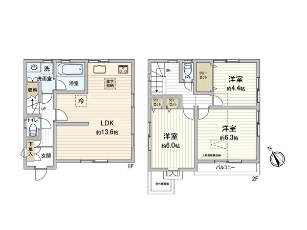
| 間取り | 3LDK |
| 建物面積 | 72.8㎡(約22.02坪) |
| 土地面積 | 67.94㎡(約20.55坪) |
| 築年月 | 2000年01月築 |
この物件情報を共有する
毎月のお支払い目安
返済計画を入力すると毎月のお支払い目安を表示できます
- ローン112,886円
- 管理費+修繕積立金0円
- その他費用0円
おすすめポイント
設備
- 屋根裏収納
- 浴室乾燥機
-物件のおすすめポイント- ▼立地 ・3路線3駅利用可能で便利な立地 - JR南武線・武蔵野線「府中本町」駅 徒歩6分 - 京王線「分倍河原」駅 徒歩11分 - 京王線「府中」駅 徒歩15分 ▼建物の特徴 ・カースペース1台分あり(車種による) ・道路と高低差の少ない平坦地 ▼お部屋の特徴 ・全居室2面採光で風の通る南西向き3LDK ・フローリング仕様で、落ち着いた雰囲気の内装 ・約13.6帖のLDKは3面採光で明るく開放的 ▼設備 ・浄水器付3口コンロシステムキッチン ・追焚機能が付いたユニットバス ・雨の日のお洗濯に便利な浴室換気乾燥機 ・1、2階トイレ(温水洗浄便座付) ・屋根裏収納があり、季節物をすっきり収納 ▼リフォーム内容(2025年10月完了予定) ・システムキッチン ・ユニットバス ・洗面化粧台、洗濯用水栓 ・トイレ(2箇所) ・フローリング張(LDK・洋室全室・廊下) ・フロアタイル張(玄関・洗面室・トイレ1、2F) ・壁・天井クロス張 ・照明器具、スイッチコンセント、ハウスクリーニング 【府中市・稲城市エリアへお住みかえをご検討中のお客様】 ※府中市・稲城市エリア以外の不動産に関する売却のご相談も承ります。 ■ご自宅の『売却』も三井のリハウスにお任せください 。 ・「売却が先か購入が先か」買替えたいけど、何から始めたら良いのか分からない。 ・所有不動産の相場を把握しておきたい。 ・自宅の住宅ローンが残っているので、無理のない資金計画を相談したい。 お住まいの購入から売却まで、お客様のご事情に合わせてトータルサポートいたします。 まずはフリーコールにて、ご所有不動産の概要をお申し付けください。 『無料査定のお申込みは』 フリーコール 0120-554-979 詳しくは担当までお気軽にお問い合わせください。
リノベーション&リフォーム情報
台所(キッチン)交換 | バスルーム交換 |
トイレ交換 | 洗面化粧台交換 |
給湯器交換 | 扉交換 |
水回り(キッチン、浴室、トイレ、洗面所、給湯器)(2025年10月)
内装(建具)(2025年10月)
フローリング張(LDK・洋室全室・廊下)、フロアタイル張(玄関・洗面室・トイレ1、2F)、壁・天井クロス張、照明器具、スイッチコンセント、ハウスクリーニング(2025年10月)
物件情報
| 所在地 | GoogleMaps |
| 価格 | 3,999万円 |
| 交通 | |
| その他費用 | - |
| 間取り | 3LDK |
| 建物面積 | 72.8㎡(約22.02坪) |
| 土地面積 | 67.94㎡(約20.55坪) |
| 築年月 | 2000年01月築 |
| 建物構造 | 木造2階建 |
| 現況 | 空家 |
| 駐車場 | 有 |
| 土地権利 | 所有権 |
| 地目 | 宅地 |
| 接道状況 | 南側: 約 4m (公道) |
| 建ぺい率 | 60% |
| 容積率 | 200%(前面道路幅員により160%) |
| 用途地域 | 第一種中高層住居専用地域 |
| 都市計画 | 市街化区域 |
| 備考 | 土地面積には路地上敷地部分約18平米含まれております。 |
| 引渡時期 | 相談 |
| 取引態様 | 仲介 |
| 更新日 | 2025年11月24日 |
| 次回更新予定 | 2025年12月08日 |
| 物件番号 | F28AGC24 |
この物件のことを
AIに聞いてみませんか?
最新のAI技術を活用した相談サービスです。
お客様一人ひとりのニーズに合わせて最適な情報をご提供します。
リハウスAIチャットの詳しい説明はこちら

周辺情報
GoogleMaps
| スーパー | サミットストアミナノ分倍河原店 約630m(徒歩8分) |
| 病院 | わかさクリニック府中 約460m(徒歩6分) |
| 小学校 | 府中市立府中第三小学校 約380m(徒歩5分) |
| 中学校 | 府中市立府中第三中学校 約760m(徒歩10分) |
| その他利便施設1 | ファミリーマート府中本町店 約220m(徒歩3分) |
| その他利便施設2 | マツモトキヨシMINANO分倍河原店 約580m(徒歩8分) |
| その他利便施設3 | MINANO 約590m(徒歩8分) |
| その他利便施設4 | 府中本町二郵便局 約410m(徒歩6分) |
| その他利便施設5 | 府中市役所 約710m(徒歩9分) |
| その他利便施設6 | 大國魂神社 約510m(徒歩7分) |
取扱店舗
三井のリハウス 府中センター
- 営業時間10:00~18:00
- 定休日毎週水曜日
0120-554-979
あなたへのおすすめ
府中市の物件情報
この物件のリノベーションに関する問い合わせはこちらから。
リノベーション工事の可能範囲については、本物件の管理組合規約等により一定の制限が加わる場合がございます。詳細については、工事内容の確定後に判明する部分もありますので、この点については事前にお含みおきください。
リノベーションに関するお問い合わせこの物件を見学してみませんか?
この物件についてお問い合わせ
物件・住環境の詳しい情報、購入・ローン相談など、ささいなことでもお気軽にお問い合わせください。三井のリハウス 府中センター
- 営業時間10:00~18:00
- 定休日毎週水曜日
0120-554-979

物件の売却をご検討の方は、 はやめの査定依頼がおすすめです!
買い替えをご検討の方はこちら見学予約
お問い合わせ
0120-554-979
- 営業時間 10:00~18:00
- 定休日 毎週水曜日









