府中市分梅町1丁目
京王電鉄京王線 分倍河原駅 徒歩5分
2SLDK
建物面積:94.29㎡
土地面積:82.78㎡
2026年02月築(予定)
8,980万円



| 物件種別 | 中古戸建 |
| 所在地 | GoogleMaps |
| 交通 | |
| 間取り | 2LDK |
| 建物面積 | 132.44㎡(約40.06坪) |
| 土地面積 | 166.55㎡(約50.38坪) |
| 築年月 | 2020年01月築 |
返済計画を入力すると毎月のお支払い目安を表示できます
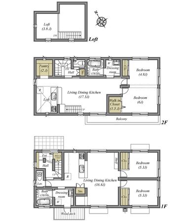
■ おすすめポイント ━━━━・・・・ ○ 令和2年1月築の注文住宅 ○ 土地面積166.55平米(約50.38坪) ○ 建物面積132.44平米 ○ 2LDK+2LDKの二世帯住宅 ○ 東南側が公園で陽当たり良好です ○ 駐車スペース3台有り(車種による) ○ 住友ゴム工業(株)制震ダンパー「MIRAIE」設置 ■ アクセス(2駅利用可能) ━━━━━・・・・ ○ 京王線「多磨霊園」駅徒歩4分 〇 京王線「東府中」駅徒歩10分 ■ 設備・仕様 ━━━━━━・・・ ○ 床下暖房システム(てきおん) ○ IHシステムキッチン ○ 浄水器一体型水栓 ○ シャンプドレッサー付き洗面化粧台 ○ 浴室換気乾燥暖房機 ○ タンクレスシャワートイレ ○ 手洗いカウンター付 ○ パントリー(2階) ○ ロフト(2階) ○ ウォークインクローゼット(2階) 【府中市・稲城市エリアへお住みかえをご検討中のお客様】 ※府中市・稲城市エリア以外の不動産に関する売却のご相談も承ります。 ■ご自宅の『売却』も三井のリハウスにお任せください 。 ・「売却が先か購入が先か」買替えたいけど、何から始めたら良いのか分からない。 ・所有不動産の相場を把握しておきたい。 ・自宅の住宅ローンが残っているので、無理のない資金計画を相談したい。 お住まいの購入から売却まで、お客様のご事情に合わせてトータルサポートいたします。 まずはフリーコールにて、ご所有不動産の概要をお申し付けください。 『無料査定のお申込みは』 フリーコール 0120-554-979 詳しくは担当までお気軽にお問い合わせください。
| 所在地 | GoogleMaps |
| 価格 | 8,980万円 |
| 交通 | |
| その他費用 | - |
| 間取り | 2LDK |
| 建物面積 | 132.44㎡(約40.06坪) |
| 土地面積 | 166.55㎡(約50.38坪) |
| 築年月 | 2020年01月築 |
| 建物構造 | 木造2階建 |
| 現況 | 居住中 |
| 駐車場 | 有 |
| 土地権利 | 所有権 |
| 地目 | 宅地 |
| 接道状況 | 北西側: 約 4m (公道) |
| 建ぺい率 | 40% |
| 容積率 | 80% |
| 用途地域 | 第一種低層住居専用地域 |
| 都市計画 | 市街化区域 |
| 備考 | - |
| 引渡時期 | 相談 |
| 取引態様 | 仲介 |
| 更新日 | 2025年12月06日 |
| 次回更新予定 | 2025年12月20日 |
| 物件番号 | F28AWA09 |
最新のAI技術を活用した相談サービスです。
お客様一人ひとりのニーズに合わせて最適な情報をご提供します。
リハウスAIチャットの詳しい説明はこちら
GoogleMaps
| スーパー | サミットストア府中若松店 約840m(徒歩11分) |
| 公園 | 清水が丘三丁目公園 約50m(徒歩1分) |
| 病院 | 武蔵野医院 約70m(徒歩1分) |
| 小学校 | 府中第八小学校 約1190m(徒歩15分) |
| 中学校 | 府中第九中学校 約660m(徒歩9分) |
| その他利便施設1 | ニトリ 府中店 約600m(徒歩8分) |
| その他利便施設2 | ファミリーマート府中清水ケ丘店 約300m(徒歩4分) |
| その他利便施設3 | サンドラッグ東府中店 約670m(徒歩9分) |
| その他利便施設4 | 府中清水が丘郵便局 約850m(徒歩11分) |
0120-554-979
0120-554-979
物件の売却をご検討の方は、 はやめの査定依頼がおすすめです!
買い替えをご検討の方はこちら0120-554-979

