八王子市石川町
八高線 小宮駅 徒歩10分
2LDK
建物面積:87.06㎡
土地面積:149.93㎡
1995年06月築
2,250万円



| 物件種別 | 中古戸建 |
| 所在地 | GoogleMaps |
| 交通 | |
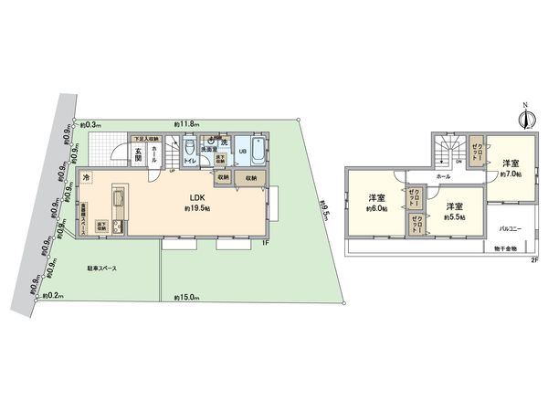
| 間取り | 3LDK |
| 建物面積 | 88.6㎡(約26.8坪) |
| 土地面積 | 123.53㎡(約37.36坪) |
| 築年月 | 2007年11月築 |
予約制内覧会を開催します!
| 開催日 | 1月23日(金)10:00 ~ 17:00 1月24日(土)10:00 ~ 17:00 1月25日(日)10:00 ~ 17:00 1月26日(月)10:00 ~ 17:00 1月27日(火)10:00 ~ 17:00 |
|---|
返済計画を入力すると毎月のお支払い目安を表示できます
-物件のおすすめポイント- ▼立地 ・ 八高線「北八王子」駅 徒歩19分 ・ 中央本線 「八王子」駅 バス17分「石川」停歩4分 ▼建物の特徴 ・ 全居室南向きのため陽当たり良好 ・ 2階南東側バルコニーはゆったりとした空間です ・ 駐車スペース2台分あり(車種による) ・ 2020年8月:屋根塗装実施 ▼お部屋の特徴 ・ 広々とした約19.5帖のリビング ・ ご家族の対話が弾む対面式キッチンです ・ 掃除がしやすい全居室フローリング仕様 ▼周辺環境 ・ セブン-イレブン 八王子石川中入口店 ・・・約130m ・ スーパーアルプス 宇津木台店 ・・・約1070m ・ クリエイトSD 八王子宇津木台店 ・・・約1090m ・ 八王子宇津木郵便局 ・・・約310m ・ 東海大学医学部付属八王子病院 ・・・約1220m ・ 青空公園 ・・・約660m ・ 小宮小学校 ・・・約1290m ・ 石川中学校 ・・・約650m ■ご希望の住まい探しをお手伝いします ━━━━━ ・・・ 物件の詳細・ご相談はお気軽にお問い合わせください。
| 所在地 | GoogleMaps |
| 価格 | 2,250万円 |
| 交通 | |
| その他費用 | - |
| 間取り | 3LDK |
| 建物面積 | 88.6㎡(約26.8坪) |
| 土地面積 | 123.53㎡(約37.36坪) |
| 築年月 | 2007年11月築 |
| 建物構造 | 木造2階建 |
| 現況 | 居住中 |
| 駐車場 | 有 |
| 土地権利 | 所有権 |
| 地目 | 宅地 |
| 接道状況 | 西側: 約 4m (公道) |
| 建ぺい率 | 40% |
| 容積率 | 80% |
| 用途地域 | 第一種低層住居専用地域 |
| 都市計画 | 市街化区域 |
| 備考 | - |
| 引渡時期 | 相談 |
| 取引態様 | 仲介 |
| 更新日 | 2026年01月23日 |
| 次回更新予定 | 2026年02月06日 |
| 物件番号 | F29BAA08 |
最新のAI技術を活用した相談サービスです。
お客様一人ひとりのニーズに合わせて最適な情報をご提供します。
リハウスAIチャットの詳しい説明はこちら
GoogleMaps
| スーパー | スーパーアルプス宇津木台店 約1070m(徒歩14分) |
| 公園 | 青空公園 約660m(徒歩9分) |
| 病院 | 東海大学付属八王子病院 約1220m(徒歩16分) |
| 小学校 | 八王子市立小宮小学校 約1290m(徒歩17分) |
| 中学校 | 八王子市立石川中学校 約650m(徒歩9分) |
| その他利便施設1 | セブンイレブン八王子石川中入口店 約130m(徒歩2分) |
| その他利便施設2 | クリエイトエス・ディー八王子宇津木台店 約1090m(徒歩14分) |
| その他利便施設3 | 八王子宇津木郵便局 約310m(徒歩4分) |
0120-311-541
0120-311-541
物件の売却をご検討の方は、 はやめの査定依頼がおすすめです!
買い替えをご検討の方はこちら0120-311-541

