八王子市めじろ台3丁目
京王電鉄高尾線 めじろ台駅 徒歩5分
4LDK
建物面積:108.81㎡
土地面積:219.19㎡
2026年02月築(予定)
6,980万円



| 物件種別 | 中古戸建 |
| 所在地 | GoogleMaps |
| 交通 | |
| 間取り | 3LDK |
| 建物面積 | 130.42㎡(約39.45坪) |
| 土地面積 | 210.3㎡(約63.61坪) |
| 築年月 | 2024年10月築 |
予約制内覧会を開催します!
| 開催日 | 2月7日(土)11:00 ~ 17:00 2月8日(日)11:00 ~ 17:00 2月9日(月)11:00 ~ 17:00 2月10日(火)11:00 ~ 17:00 2月11日(水)11:00 ~ 17:00 |
|---|
返済計画を入力すると毎月のお支払い目安を表示できます
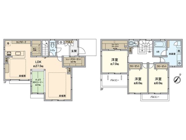
-物件のおすすめポイント- ▼立地 ・JR中央線「西八王子」駅徒歩16分利用可能 ・京王高尾線「山田」駅徒歩12分の好立地 ▼建物の特徴 ・新築未入居物件 ・不在時でも荷物が受け取れる宅配ボックス付 ・駐車スペース2台可(車種による) ▼お部屋の特徴 ・約27.5帖の広々LDKは南東向きで明るくゆっくり寛げる空間 ・主寝室約7帖、洋室2部屋は約6帖ずつ配置 ・ウォークインクローゼットやシューズインクローゼット付で収納豊富 ▼設備 ・床暖房(LD部分)、給湯暖房エコワン、ガス乾燥機設置 ・電動シャッター、浴室換気暖房乾燥機完備 ・食器洗浄乾燥機、タッチレス水栓採用 ・宅配BOX、PHVコンセントなど充実設備 ▼周辺環境 ・セブンイレブン八王子散田1丁目店まで徒歩7分(約540m) ・富士森公園まで徒歩7分(約530m) ■ ご希望の住まい探しをお手伝いします ━━━━━・・・ 物件の詳細・ご相談はお気軽にお問い合わせください
| 所在地 | GoogleMaps |
| 価格 | 6,980万円 |
| 交通 | |
| その他費用 | - |
| 間取り | 3LDK |
| 建物面積 | 130.42㎡(約39.45坪) |
| 土地面積 | 210.3㎡(約63.61坪) |
| 築年月 | 2024年10月築 |
| 建物構造 | 木造2階建 |
| 現況 | 空家 |
| 駐車場 | 有 |
| 土地権利 | 所有権 |
| 地目 | 宅地 |
| 接道状況 | 東側: 約 5.2m (公道) |
| 建ぺい率 | 40% |
| 容積率 | 80% |
| 用途地域 | 第一種低層住居専用地域 |
| 都市計画 | 市街化区域 |
| 備考 | - |
| 引渡時期 | 相談 |
| 取引態様 | 仲介 |
| 更新日 | 2026年02月06日 |
| 次回更新予定 | 2026年02月20日 |
| 物件番号 | F29BGA4F |
最新のAI技術を活用した相談サービスです。
お客様一人ひとりのニーズに合わせて最適な情報をご提供します。
リハウスAIチャットの詳しい説明はこちら
GoogleMaps
| スーパー | スーパーアルプス台町店 約710m(徒歩9分) |
| 公園 | 富士森公園 約530m(徒歩7分) |
| 病院 | 原内科医院 約470m(徒歩6分) |
| 小学校 | 八王子市立山田小学校 約720m(徒歩9分) |
| 中学校 | 八王子市立第七中学校 約180m(徒歩3分) |
| その他利便施設1 | セブンイレブン八王子散田1丁目店 約540m(徒歩7分) |
| その他利便施設2 | クリエイトエス・ディー八王子台町店 約470m(徒歩6分) |
| その他利便施設3 | 八王子緑町郵便局 約680m(徒歩9分) |
0120-311-541
0120-311-541
物件の売却をご検討の方は、 はやめの査定依頼がおすすめです!
買い替えをご検討の方はこちら0120-311-541

