さいたま市西区大字指扇
川越線 西大宮駅 徒歩22分
3LDK
建物面積:89.01㎡
土地面積:100.11㎡
2000年09月築
2,599万円



| 物件種別 | 中古戸建 |
| 所在地 | GoogleMaps |
| 交通 | 川越線 日進駅 徒歩24分 |
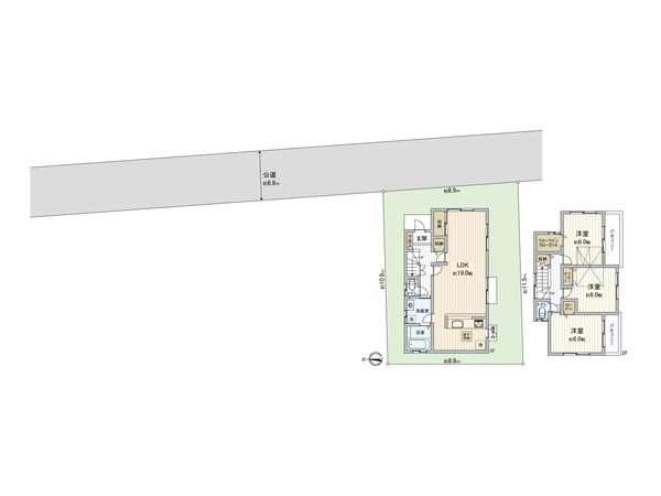
| 間取り | 3LDK |
| 建物面積 | 91.49㎡(約27.67坪) |
| 土地面積 | 100.03㎡(約30.25坪) |
| 築年月 | 2000年12月築 |
返済計画を入力すると毎月のお支払い目安を表示できます
■ おすすめポイント ━━━━━━━━━━━━━━━・・・・・ ○ LDK約19帖の広々した3LDKのお部屋 ○ 豊富な収納(全居室収納、床下収納、ウォークインクローゼット付き) ○ 駐車スペース1台分有り(車種による) ○ リビングが見渡せる対面式キッチン ■ リフォーム内容(2026年2月完了予定) ━━━━━━━━━━━━━━━・・・・・ ○ キッチン・お風呂・トイレ・洗面台交換 ○ 外壁塗装・屋根塗装 ○ クロス貼替 ○ コンロ交換 ○ 室内クリーニング ○ クッションフロア貼替 ○ 白蟻点検
| 所在地 | GoogleMaps |
| 価格 | 2,599万円 |
| 交通 | 川越線 日進駅 徒歩24分 |
| その他費用 | - |
| 間取り | 3LDK |
| 建物面積 | 91.49㎡(約27.67坪) |
| 土地面積 | 100.03㎡(約30.25坪) |
| 築年月 | 2000年12月築 |
| 建物構造 | 木造2階建 |
| 現況 | 空家 |
| 駐車場 | 有 |
| 土地権利 | 所有権 |
| 地目 | 宅地 |
| 接道状況 | 東側: 約 4m (公道) |
| 建ぺい率 | 60% |
| 容積率 | 200%(但し、前面道路幅員により160%に制限されます。) |
| 用途地域 | 準住居地域 |
| 都市計画 | 市街化区域 |
| 備考 | ※高度地区(20m地区)、法22条区域 |
| 引渡時期 | 即時 |
| 取引態様 | 仲介 |
| 更新日 | 2025年12月19日 |
| 次回更新予定 | 2026年01月02日 |
| 物件番号 | F50AGC66 |
最新のAI技術を活用した相談サービスです。
お客様一人ひとりのニーズに合わせて最適な情報をご提供します。
リハウスAIチャットの詳しい説明はこちら
GoogleMaps
| スーパー | ヨークマート日進店 約1620m(徒歩21分) |
| 公園 | 番場公園 約700m(徒歩9分) |
| 病院 | むらたクリニック 約480m(徒歩6分) |
| 小学校 | さいたま市立日進北小学校 約1010m(徒歩13分) |
| 中学校 | さいたま市立宮前中学校 約900m(徒歩12分) |
| その他利便施設1 | ドラッグストアセキ内野本郷店 約440m(徒歩6分) |
0120-031-631
リノベーション工事の可能範囲については、本物件の管理組合規約等により一定の制限が加わる場合がございます。詳細については、工事内容の確定後に判明する部分もありますので、この点については事前にお含みおきください。
リノベーションに関するお問い合わせ0120-031-631
物件の売却をご検討の方は、 はやめの査定依頼がおすすめです!
買い替えをご検討の方はこちら0120-031-631

