さいたま市西区大字指扇
3LDK/77.61㎡(約23.47坪)
1,580万円



物件情報
おすすめポイント
周辺情報
取扱店舗
| 物件種別 | 中古戸建 |
| 所在地 | GoogleMaps |
| 交通 | |
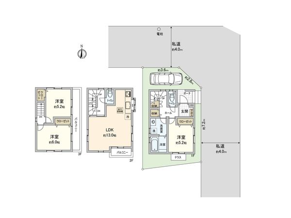
| 間取り | 3LDK |
| 建物面積 | 77.61㎡(約23.47坪) |
| 土地面積 | 53.12㎡(約16.06坪) ※別途私道約59㎡有 (共有持分 1/5) |
| 築年月 | 2008年01月築 |
この物件情報を共有する
毎月のお支払い目安
返済計画を入力すると毎月のお支払い目安を表示できます
- ローン44,601円
- 管理費+修繕積立金0円
- その他費用0円
お支払い目安44,601円
おすすめポイント
設備
- 浴室乾燥機
- TVモニタ付インターホン
■ おすすめポイント ━━━━━━━━━━━━━━━・・・・・ ○ 2駅利用可能 JR川越線「西大宮」駅徒歩25分 JR京浜東北線他「大宮」駅 バス35分「東五味貝戸」停歩5分 ○ 北×東角地に立地 ○ 13.0帖のLDK ○ 南面バルコニーのため陽当たり良好 ○ 全室2面採光 ○ 全居室収納スペース有り ○ 床下収納有り ○ 浴室換気乾燥機 ○ TVモニター付インターホン ○ 駐車スペース1台分有り(車種による) ○ 徒歩10分圏内に生活利便施設有り (小学校・公園・コンビニ・ドラッグストア等)
物件情報
| 所在地 | GoogleMaps |
| 価格 | 1,580万円 |
| 交通 | |
| その他費用 | - |
| 間取り | 3LDK |
| 建物面積 | 77.61㎡(約23.47坪) |
| 土地面積 | 53.12㎡(約16.06坪) ※別途私道約59㎡有 (共有持分 1/5) |
| 築年月 | 2008年01月築 |
| 建物構造 | 木造3階建 |
| 現況 | 居住中 |
| 駐車場 | 有 |
| 土地権利 | 所有権 |
| 地目 | 宅地 |
| 接道状況 | 北側: 約 4m (私道)、東側: 約 4m (私道) |
| 建ぺい率 | 60% |
| 容積率 | 200% |
| 用途地域 | 準工業地域 |
| 都市計画 | 市街化区域 |
| 備考 | ※別途私道約0.21平米有 (共有持分 1/1) ※準防火地域 |
| 引渡時期 | 相談 |
| 取引態様 | 仲介 |
| 更新日 | 2025年11月08日 |
| 次回更新予定 | 2025年11月22日 |
| 物件番号 | F50AUA0C |
周辺情報
GoogleMaps
| スーパー | 業務スーパーさいたま三橋店 約1700m(徒歩22分) |
| 公園 | 指扇道下公園 約210m(徒歩3分) |
| 病院 | みはし医院 約600m(徒歩8分) |
| 小学校 | さいたま市立大宮西小学校 約750m(徒歩10分) |
| 中学校 | さいたま市立大宮西中学校 約1600m(徒歩20分) |
| その他利便施設1 | セイコーマートまんだな店 約650m(徒歩9分) |
| その他利便施設2 | ドラッグストアセキ指扇店 約600m(徒歩8分) |
| その他利便施設3 | さいたま市西区三橋支所 約1500m(徒歩19分) |
取扱店舗
三井のリハウス 大宮センター
- 営業時間10:00~18:00
- 定休日毎週水曜日
0120-031-631
さいたま市西区の物件情報
この物件を見学してみませんか?
この物件についてお問い合わせ
物件・住環境の詳しい情報、購入・ローン相談など、ささいなことでもお気軽にお問い合わせください。三井のリハウス 大宮センター
- 営業時間10:00~18:00
- 定休日毎週水曜日
0120-031-631

物件の売却をご検討の方は、 はやめの査定依頼がおすすめです!
買い替えをご検討の方はこちら見学予約
お問い合わせ
0120-031-631
- 営業時間 10:00~18:00
- 定休日 毎週水曜日

