さいたま市北区奈良町
高崎線 宮原駅 徒歩9分
4LDK
建物面積:120.88㎡
土地面積:85.71㎡
2026年03月築(予定)
3,580万円



| 物件種別 | 中古戸建 |
| 所在地 | GoogleMaps |
| 交通 | 湘南新宿ライン(前橋~小田原) 宮原駅 徒歩17分 |
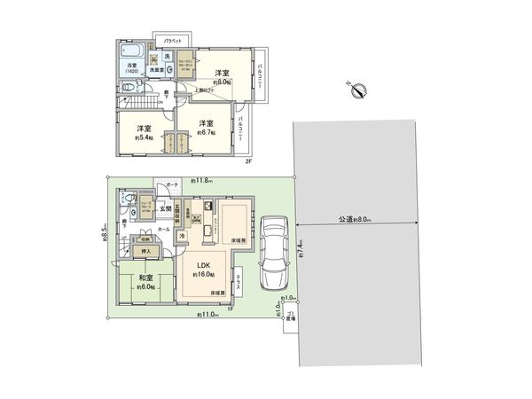
| 間取り | 4LDK |
| 建物面積 | 103.5㎡(約31.3坪) |
| 土地面積 | 100.87㎡(約30.51坪) |
| 築年月 | 2008年04月築 |
返済計画を入力すると毎月のお支払い目安を表示できます
■ おすすめポイント ━━━━━━━━━━━━━━━・・・・・ ○ 高崎線「宮原」駅徒歩17分 〇 木下工務店施工の2階建て住宅 〇 2×4工法 ○ 建物面積103.5平米の4LDK ○ 駐車スペースあり(車種による) ○ 広々としたLDK約16.0帖 〇 2階洋室部分にロフトあり ○ 南面バルコニーにつき陽当たり良好 ■ リフォーム内容(2026年4月完了予定) ━━━━━━━━━━━━━━━・・・・・ ○ クロス貼替 ○ キッチン新規交換 ○ 洗面化粧台交換(1階、2階) ○ トイレ便座交換 ○ 浴室水栓交換 ○ 浴室暖房乾燥機交換 ○ 洗濯機パン交換 ○ 洗濯用水栓交換 ○ ガス給湯器交換 ○ クッションフロア張替(トイレ・洗面所) ○ 障子張替 ○ 畳表替え ○ 巾木交換 ○ インターホン交換 ○ トイレ換気扇交換 ○ ダウンライト交換・新設 ○ 室内クリーニング
| 所在地 | GoogleMaps |
| 価格 | 3,580万円 |
| 交通 | 湘南新宿ライン(前橋~小田原) 宮原駅 徒歩17分 |
| その他費用 | - |
| 間取り | 4LDK |
| 建物面積 | 103.5㎡(約31.3坪) |
| 土地面積 | 100.87㎡(約30.51坪) |
| 築年月 | 2008年04月築 |
| 建物構造 | 木造2階建 |
| 現況 | 空家 |
| 駐車場 | 有 |
| 土地権利 | 所有権 |
| 地目 | 宅地 |
| 接道状況 | 南東側: 約 8m (公道) |
| 建ぺい率 | 60% |
| 容積率 | 200%(高度地区(15m地区)) |
| 用途地域 | 第一種中高層住居専用地域 |
| 都市計画 | 市街化区域 |
| 備考 | ※ゴミ置き場2.0平米(持分1/7有) |
| 引渡時期 | 2026年04月上旬以降 |
| 取引態様 | 仲介 |
| 更新日 | 2026年03月04日 |
| 次回更新予定 | 2026年03月18日 |
| 物件番号 | F50BBA1F |
最新のAI技術を活用した相談サービスです。
お客様一人ひとりのニーズに合わせて最適な情報をご提供します。
リハウスAIチャットの詳しい説明はこちら
GoogleMaps
| スーパー | いなげや大宮宮原店 約560m(徒歩7分) |
| 公園 | 奈良東前公園 約90m(徒歩2分) |
| 小学校 | さいたま市立大宮別所小学校 約960m(徒歩12分) |
| 中学校 | さいたま市立宮原中学校 約520m(徒歩7分) |
| その他利便施設1 | セブンイレブン大宮奈良町店 約350m(徒歩5分) |
| その他利便施設2 | ドラッグストアセキ奈良町店 約200m(徒歩3分) |
| その他利便施設3 | 大宮奈良郵便局 約890m(徒歩12分) |
0120-031-631
0120-031-631
物件の売却をご検討の方は、 はやめの査定依頼がおすすめです!
買い替えをご検討の方はこちら0120-031-631

