さいたま市西区大字指扇
川越線 西大宮駅 徒歩22分
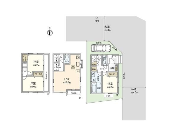
3LDK
建物面積:89.01㎡
土地面積:100.11㎡
2000年09月築
2,180万円



| 物件種別 | 中古戸建 |
| 所在地 | GoogleMaps |
| 交通 | |
| 間取り | 3LDK |
| 建物面積 | 77.61㎡(約23.47坪) |
| 土地面積 | 53.12㎡(約16.06坪) ※別途私道約59㎡有 (共有持分 1/5) |
| 築年月 | 2008年01月築 |
■ おすすめポイント ━━━━━━━━━━━━━━━・・・・・ ○ 2駅利用可能 JR川越線「西大宮」駅徒歩25分 JR京浜東北線他「大宮」駅 バス35分「東五味貝戸」停歩5分 ○ 北×東角地に立地 ○ 13.0帖のLDK ○ 全室2面採光 ○ 全居室収納スペース有り ○ 駐車スペース1台分有り(車種による) ○ 徒歩10分圏内に生活利便施設有り (小学校・公園・コンビニ・ドラッグストア等) ■ リフォーム内容(令和8年5月完了予定) ━━━━━━━━━━━━━━━・・・・・ ○ 全居室クロス貼替 ○ フロアタイル上張り(LDK・洋室・廊下・玄関) ○ キッチン・浴室・洗面化粧台・トイレ交換 ○ 建具交換 ○ 給気口・スイッチコンセント交換 ○ ダウンライト交換 ○ クローゼット交換 ○ 給湯器交換
| 所在地 | GoogleMaps |
| 価格 | 2,180万円 |
| 交通 | |
| その他費用 | - |
| 間取り | 3LDK |
| 建物面積 | 77.61㎡(約23.47坪) |
| 土地面積 | 53.12㎡(約16.06坪) ※別途私道約59㎡有 (共有持分 1/5) |
| 築年月 | 2008年01月築 |
| 建物構造 | 木造3階建 |
| 現況 | 空家 |
| 駐車場 | 有 |
| 土地権利 | 所有権 |
| 地目 | 宅地 |
| 接道状況 | 北側: 約 4m (私道)、東側: 約 4m (私道) |
| 建ぺい率 | 60% |
| 容積率 | 200% |
| 用途地域 | 準工業地域 |
| 都市計画 | 市街化区域 |
| 備考 | ※別途私道約0.21平米有 (共有持分 1/1) ※準防火地域 |
| 引渡時期 | 相談 |
| 取引態様 | 仲介 |
| 更新日 | 2026年03月27日 |
| 次回更新予定 | 2026年04月10日 |
| 物件番号 | F50BCA26 |
最新のAI技術を活用した相談サービスです。
お客様一人ひとりのニーズに合わせて最適な情報をご提供します。
リハウスAIチャットの詳しい説明はこちら
GoogleMaps
| スーパー | 業務スーパーさいたま三橋店 約1700m(徒歩22分) |
| 公園 | 指扇道下公園 約210m(徒歩3分) |
| 病院 | みはし医院 約600m(徒歩8分) |
| 小学校 | さいたま市立大宮西小学校 約750m(徒歩10分) |
| 中学校 | さいたま市立大宮西中学校 約1600m(徒歩20分) |
| その他利便施設1 | セイコーマートまんだな店 約650m(徒歩9分) |
| その他利便施設2 | ドラッグストアセキ指扇店 約600m(徒歩8分) |
| その他利便施設3 | さいたま市西区三橋支所 約1500m(徒歩19分) |
0120-031-631
0120-031-631
物件の売却をご検討の方は、 はやめの査定依頼がおすすめです!
買い替えをご検討の方はこちら0120-031-631

