北本市下石戸6丁目
3SLDK/119.05㎡(約36.01坪)
3,180万円



物件情報
おすすめポイント
周辺情報
取扱店舗
| 物件種別 | 中古戸建 |
| 所在地 | GoogleMaps |
| 交通 | |
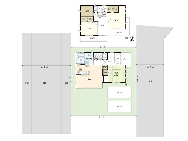
| 間取り | 3SLDK ※S・サービススペースは納戸です |
| 建物面積 | 119.05㎡(約36.01坪) |
| 土地面積 | 191.88㎡(約58.04坪) |
| 築年月 | 2009年07月築 |
この物件情報を共有する
おすすめポイント
特徴
- 前面道路幅員6m以上
- 吹抜け
- 両面道路
-物件のおすすめポイント- ▼建物の特徴 ・セキスイハイム施工の注文住宅 ・軽量鉄骨造2階建て ・オール電化 ・太陽光発電システム ・南西側約10m公道×北東側約6m公道の両面道路 日当たり・通風良好 ・カースペース2台分(車種制限有) ▼お部屋の特徴 ・ゆとりある3SLDK ・1階の廊下に吹抜けあり ・全居室2面採光、南東側に開口部があるため日当たり良好 ▼設備 ・対面式キッチン ・ウォークインクローゼット、納戸等収納豊富 ▼周辺環境 ・埼玉県住宅供給公社旧分譲地 ・区画の整った閑静な住宅街 ■ ご希望の住まい探しをお手伝いします ━━━━━・・・ 物件の詳細・ご相談はお気軽にお問い合わせください。
お客様の安心取引を支える 360°サポート
360°サポートとは物件情報
| 所在地 | GoogleMaps |
| 価格 | 3,180万円 |
| 交通 | |
| その他費用 | - |
| 間取り | 3SLDK ※S・サービススペースは納戸です |
| 建物面積 | 119.05㎡(約36.01坪) |
| 土地面積 | 191.88㎡(約58.04坪) |
| 築年月 | 2009年07月築 |
| 建物構造 | 軽量鉄骨造2階建 |
| 現況 | 空家 |
| 駐車場 | 有 |
| 土地権利 | 所有権 |
| 地目 | 宅地 |
| 接道状況 | 南西側: 約 10m (公道)、北東側: 約 6m (公道) |
| 建ぺい率 | 60% |
| 容積率 | 150% |
| 用途地域 | 第一種中高層住居専用地域 |
| 都市計画 | 市街化区域 |
| 備考 | 法22条区域、法23条区域 |
| 引渡時期 | 相談 |
| 取引態様 | 仲介 |
| 更新日 | 2026年05月23日 |
| 次回更新予定 | 2026年06月06日 |
| 物件番号 | F51ASA03 |
この物件のことを
AIに聞いてみませんか?
最新のAI技術を活用した相談サービスです。
お客様一人ひとりのニーズに合わせて最適な情報をご提供します。
リハウスAIチャットの詳しい説明はこちら

周辺情報
GoogleMaps
| スーパー | ベルク北本二ツ家店 約780m(徒歩10分) |
| スーパー | ヤオコー桶川上日出谷店 約1200m(徒歩15分) |
| 公園 | 南団地中央公園 約80m(徒歩1分) |
| 小学校 | 北本市立南小学校 約1200m(徒歩15分) |
| 中学校 | 北本市立北本中学校 約2600m(徒歩33分) |
| その他利便施設1 | スギドラッグ北本南店 約180m(徒歩3分) |
| その他利便施設2 | ローソン桶川上日出谷殿山店 約500m(徒歩7分) |
| その他利便施設3 | セブンイレブン北本二ツ家1丁目店 約850m(徒歩11分) |
| その他利便施設4 | 北本二ッ家郵便局 約1200m(徒歩15分) |
取扱店舗
三井のリハウス 上尾センター
- 営業時間10:00~18:00
- 定休日毎週火曜日・水曜日
0120-177-321
北本市の物件情報
この物件を見学してみませんか?
この物件についてお問い合わせ
物件・住環境の詳しい情報、購入・ローン相談など、ささいなことでもお気軽にお問い合わせください。三井のリハウス 上尾センター
- 営業時間10:00~18:00
- 定休日毎週火曜日・水曜日
0120-177-321

物件の売却をご検討の方は、 はやめの査定依頼がおすすめです!
買い替えをご検討の方はこちら見学予約
お問い合わせ
0120-177-321
- 営業時間 10:00~18:00
- 定休日 毎週火曜日・水曜日

