板橋区成増4丁目
東武東上線 成増駅 徒歩15分
1K
建物面積:484.7㎡
土地面積:688.44㎡
2022年09月築
54,000万円



| 物件種別 | 中古戸建 |
| 所在地 | GoogleMaps |
| 交通 | |
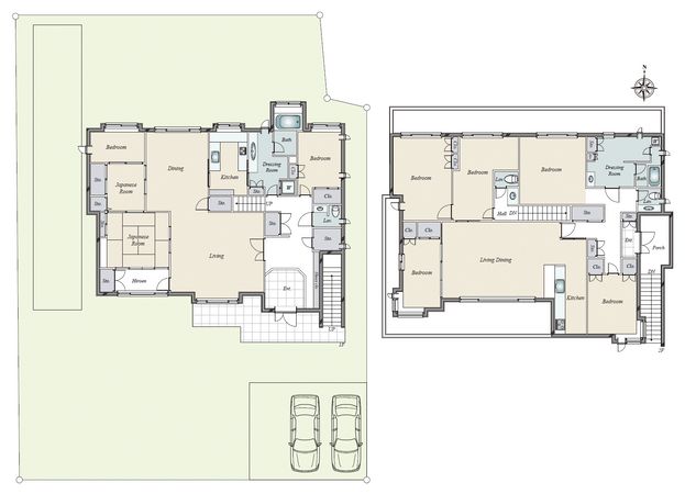
| 間取り | 4LDK+5LDK |
| 建物面積 | 302.05㎡(約91.37坪) |
| 土地面積 | 611.56㎡(約184.99坪) |
| 築年月 | 1993年05月築 |
返済計画を入力すると毎月のお支払い目安を表示できます
-物件のおすすめポイント- ▼立地 ・東武東上線「ときわ台」駅徒歩7分 ・東武東上線「中板橋」駅徒歩14分 ・東武東上線「上板橋」駅徒歩17分 ・放射状に広がる道路が美しい常盤台の住宅街 ▼建物の特徴 ・土地面積611.56平米(約184.99坪) ・建物面積302.05平米(約91.37坪) ・軽量鉄骨造2階建の二世帯住宅 ・1階4LDK・2階5LDKの間取り ・前面道路は南側約8.2mの公道、間口約21.8mで接道 ・ガーデニングや家庭菜園などが楽しめる広いお庭 ・カースペース2台分あり(車種による) ▼周辺環境 ・まいばすけっと板橋常盤台2丁目店 徒歩3分(約180m) ・ローソン前野町店 徒歩3分(約190m) ・板橋区立常盤台小学校 徒歩6分(約470m) ===三井のリハウスでは=== ■「チーム」を組んで、お客様のご要望に対しきめ細やかにサポートします。 三井のリハウスでは高品質で均一したサービスの提供を目指し お客様に対し複数のスタッフがチームを組んで ご満足いただけるよう店舗全体でサポートいたします。 社員一丸となり、専門力を活かした質の高い対応を私たちは約束します。 ■当物件へのお買替えをご検討中のお客様へ。 お買替えには「売却先行」と「購入先行」の2通りの方法があり お客様のご事情や資金内容により、どちらかを選択することになります。 どちらを選ばれる場合にも、資金の手配や引渡しのタイミングなど 十分なプランニングが必要となります。 三井のリハウスではお客様にあったお買替えの方法とプランをご提案し 安心してお買替えができるようお手伝いいたします。
| 所在地 | GoogleMaps |
| 価格 | 54,000万円 |
| 交通 | |
| その他費用 | - |
| 間取り | 4LDK+5LDK |
| 建物面積 | 302.05㎡(約91.37坪) |
| 土地面積 | 611.56㎡(約184.99坪) |
| 築年月 | 1993年05月築 |
| 建物構造 | 軽量鉄骨造2階建 |
| 現況 | 居住中 |
| 駐車場 | 有 |
| 土地権利 | 所有権 |
| 地目 | 宅地 |
| 接道状況 | 南側: 約 8.2m (公道) |
| 建ぺい率 | 50% |
| 容積率 | 100% |
| 用途地域 | 第一種低層住居専用地域 |
| 都市計画 | 市街化区域 |
| 備考 | ※ときわ台しゃれ街協議会活動区域内のため、敷地面積の最低限度が123平米になるほか、各種制限がございます。 |
| 引渡時期 | 相談 |
| 取引態様 | 仲介 |
| 更新日 | 2025年12月22日 |
| 次回更新予定 | 2026年01月05日 |
| 物件番号 | F56AUA03 |
最新のAI技術を活用した相談サービスです。
お客様一人ひとりのニーズに合わせて最適な情報をご提供します。
リハウスAIチャットの詳しい説明はこちら
GoogleMaps
| スーパー | まいばすけっと板橋常盤台2丁目店 約180m(徒歩3分) |
| スーパー | スーパーオオゼキときわ台店 約350m(徒歩5分) |
| 公園 | 板橋区立常盤台北口公園 約130m(徒歩2分) |
| 病院 | 常盤台外科病院 約70m(徒歩1分) |
| 小学校 | 板橋区立常盤台小学校 約470m(徒歩6分) |
| 中学校 | 板橋区立上板橋第一中学校 約2210m(徒歩28分) |
| その他利便施設1 | ローソン前野町店 約190m(徒歩3分) |
| その他利便施設2 | スギ薬局ときわ台店 約370m(徒歩5分) |
| その他利便施設3 | 板橋常盤台郵便局 約120m(徒歩2分) |
| その他利便施設4 | 板橋区立中央図書館 約730m(徒歩10分) |
三井不動産リアルティ株式会社
国土交通大臣(15)第777号
0120-929-231
リノベーション工事の可能範囲については、本物件の管理組合規約等により一定の制限が加わる場合がございます。詳細については、工事内容の確定後に判明する部分もありますので、この点については事前にお含みおきください。
リノベーションに関するお問い合わせ0120-929-231
物件の売却をご検討の方は、 はやめの査定依頼がおすすめです!
買い替えをご検討の方はこちら0120-929-231

