おゆみ野2丁目戸建
4,980万円



| 物件種別 | 中古戸建 |
| 所在地 | GoogleMaps |
| 交通 | 外房線 鎌取駅 徒歩9分 |
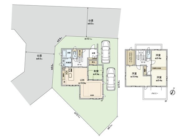
| 間取り | 4LDK |
| 建物面積 | 122.2㎡(約36.96坪) |
| 土地面積 | 192.17㎡(約58.13坪) |
| 築年月 | 2009年10月築 |
この物件情報を共有する
毎月のお支払い目安
返済計画を入力すると毎月のお支払い目安を表示できます
- ローン140,578円
- 管理費+修繕積立金0円
- その他費用0円
おすすめポイント
設備
- 床暖房
- 浴室乾燥機
- TVモニタ付インターホン
- 食器洗乾燥機
特徴
- 前面道路幅員6m以上
-物件のおすすめポイント- ▼立地 ・JR外房線「鎌取」駅徒歩9分 ・北西×南西道路に面した角地 ・整備された区画整理地内 ▼建物の特徴 ・積水ハウス施工 ・平成21年10月築 ・軽量鉄骨造2階建て ・122.2平米の広々4LDK ・スロップシンクのある庭付き ▼お部屋の特徴 ・両面バルコニーにつき通風良好 ・家事動線の良い2WAYキッチン ・床下収納やパントリー等充実したキッチン収納 ・大容量のウォークインクローゼット ・約6.4帖の洋室2部屋は可動式収納で仕切られており 自由に間取りを変えることができます ▼設備 ・玄関タッチレスキー ・床暖房(LD) ・水栓一体型浄水器 ・食器洗浄乾燥機 ・電気式浴室換気乾燥機 ・トイレ2か所あり(温水洗浄機能付) ・駐車スペース2台分あり(車種による) ▼周辺環境 ・小学校まで徒歩10分(約770m) ・中学校まで徒歩6分(約440m) ・徒歩10分圏内にスーパーやコンビニ等の 生活利便施設がそろった快適な住環境です ■ ご希望の住まい探しをお手伝いします 物件の詳細・ご相談はお気軽にお問い合わせください。
リノベーション&リフォーム情報
給湯器交換 |
水回り(給湯器)(2025年6月)
物件情報
| 所在地 | GoogleMaps |
| 価格 | 4,980万円 |
| 交通 | 外房線 鎌取駅 徒歩9分 |
| その他費用 | - |
| 間取り | 4LDK |
| 建物面積 | 122.2㎡(約36.96坪) |
| 土地面積 | 192.17㎡(約58.13坪) |
| 築年月 | 2009年10月築 |
| 建物構造 | 軽量鉄骨造2階建 |
| 現況 | 居住中 |
| 駐車場 | 有 |
| 土地権利 | 所有権 |
| 地目 | 宅地 |
| 接道状況 | 北西側: 約 6m (公道)、南西側: 約 6m (公道) |
| 建ぺい率 | 60% |
| 容積率 | 200% |
| 用途地域 | 第二種住居地域 |
| 都市計画 | 市街化区域 |
| 備考 | - |
| 引渡時期 | 相談 |
| 取引態様 | 仲介 |
| 更新日 | 2025年11月20日 |
| 次回更新予定 | 2025年12月04日 |
| 物件番号 | F67ASA11 |
この物件のことを
AIに聞いてみませんか?
最新のAI技術を活用した相談サービスです。
お客様一人ひとりのニーズに合わせて最適な情報をご提供します。
リハウスAIチャットの詳しい説明はこちら

周辺情報
GoogleMaps
| スーパー | 酒&業務スーパー 鎌取店 約530m(徒歩7分) |
| 公園 | 千葉市おゆみ野かまとり公園 約260m(徒歩4分) |
| 病院 | かない内科 約680m(徒歩9分) |
| 小学校 | 有吉小学校 約770m(徒歩10分) |
| 中学校 | 有吉中学校 約440m(徒歩6分) |
| その他利便施設1 | セブンイレブン 千葉鎌取駅前店 約530m(徒歩7分) |
| その他利便施設2 | イオンスタイル鎌取 約690m(徒歩9分) |
| その他利便施設3 | 千葉市 緑区役所 約720m(徒歩9分) |
| その他利便施設4 | 千葉市 緑図書館 約720m(徒歩9分) |
| その他利便施設5 | DCM 鎌取店 約780m(徒歩10分) |
取扱店舗
- 営業時間
- 10:00~18:00
- 定休日
- 毎週火曜日・水曜日
- 住所
- 千葉県千葉市中央区富士見2-5-12 GRAND CENTRAL CHIBA 2F
三井不動産リアルティ株式会社
国土交通大臣(15)第777号
三井のリハウス 千葉センター
- 営業時間10:00~18:00
- 定休日毎週火曜日・水曜日
0120-993-079
あなたへのおすすめ
千葉市緑区の物件情報
この物件を見学してみませんか?
この物件についてお問い合わせ
物件・住環境の詳しい情報、購入・ローン相談など、ささいなことでもお気軽にお問い合わせください。三井のリハウス 千葉センター
- 営業時間10:00~18:00
- 定休日毎週火曜日・水曜日
0120-993-079

物件の売却をご検討の方は、 はやめの査定依頼がおすすめです!
買い替えをご検討の方はこちら見学予約
お問い合わせ
0120-993-079
- 営業時間 10:00~18:00
- 定休日 毎週火曜日・水曜日







