世田谷区奥沢1丁目
東急大井町線 緑が丘駅 徒歩5分
2SLDK
建物面積:154.77㎡
土地面積:100㎡
2022年04月築
17,500万円



| 物件種別 | 中古戸建 |
| 所在地 | GoogleMaps |
| 交通 | |
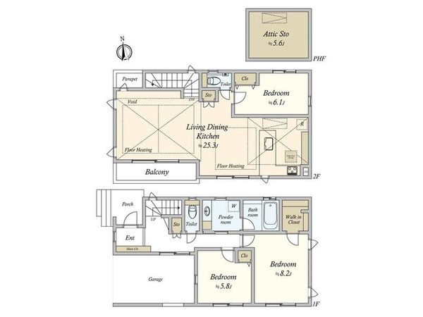
| 間取り | 3LDK |
| 建物面積 | 123.36㎡(約37.31坪) |
| 土地面積 | 92.62㎡(約28.01坪) ※セットバック約0.2㎡を含む |
| 築年月 | 2016年04月築 |
■アクセス ○ 東急大井町線『九品仏』駅徒歩9分 ○ 東急大井町線『尾山台』駅徒歩10分 ■おすすめポイント ○ 北西側道路:幅員約9.8m(公道) 南西側道路:幅員約4.0m(私道) ○ 角地につき解放感あり ○ 吹き抜けがあり、開放的なLDK ○ 約25.3帖のゆったりしたLDK ○ 寒い冬でも足元を暖めてくれるガス床暖房設置(LD) ○1620サイズの広々とした浴室 ○ 窓付きの明るい浴室 ○ ウォークインクローゼットや小屋裏収納等があり収納充実 ○ トイレ2箇所ございます(1・2階) ○ シャッター付ビルトイン車庫付(車両サイズ制限) ■ 室内リフォーム内容(令和8年1月実施) ○ 新規クロス部分貼替 ○ ハウスクリーニング
| 所在地 | GoogleMaps |
| 価格 | 17,500万円 |
| 交通 | |
| その他費用 | - |
| 間取り | 3LDK |
| 建物面積 | 123.36㎡(約37.31坪) |
| 土地面積 | 92.62㎡(約28.01坪) ※セットバック約0.2㎡を含む |
| 築年月 | 2016年04月築 |
| 建物構造 | 木造2階建 |
| 現況 | 空家 |
| 駐車場 | 有 |
| 土地権利 | 所有権 |
| 地目 | 宅地 |
| 接道状況 | 北西側: 約 9.8m (公道)、南西側: 約 4m (私道) |
| 建ぺい率 | 70% |
| 容積率 | 150% |
| 用途地域 | 第二種低層住居専用地域 |
| 都市計画 | 市街化区域 |
| 備考 | - |
| 引渡時期 | 相談 |
| 取引態様 | 仲介 |
| 更新日 | 2026年04月24日 |
| 次回更新予定 | 2026年05月08日 |
| 物件番号 | F6GBGA08 |
最新のAI技術を活用した相談サービスです。
お客様一人ひとりのニーズに合わせて最適な情報をご提供します。
リハウスAIチャットの詳しい説明はこちら
GoogleMaps
| スーパー | まいばすけっと尾山台駅東店 約480m(徒歩6分) |
| 公園 | ぽかぽか広場 約490m(徒歩7分) |
| 病院 | 平井医院 約320m(徒歩4分) |
| 小学校 | 世田谷区立九品仏小学校 約340m(徒歩5分) |
| 中学校 | 世田谷区立八幡中学校 約1200m(徒歩15分) |
| その他利便施設1 | くすりセイジョー九品仏店 約500m(徒歩7分) |
| その他利便施設2 | ローソンLTF奥沢八丁目店 約320m(徒歩4分) |
| その他利便施設3 | 世田谷九品仏郵便局 約440m(徒歩6分) |
三井不動産リアルティ株式会社
国土交通大臣(15)第777号
0120-994-431
0120-994-431
物件の売却をご検討の方は、 はやめの査定依頼がおすすめです!
買い替えをご検討の方はこちら0120-994-431

